
2 / 2
RHV-1
15 - 18
15 - 18
L - N
Warning
Technical parameters Function
adjustable
hysteresis
Supply
Supply terminals:
Supply voltage:
Tolerance of supply voltage:
Input (apparent / loss):
Function
- 7:
- :
Temperature setting
- range 1:
- range 2:
- range 3:
Slight temperature setting:
Hysteresis
Hysteresis setting:
Output
Output contact:
Rated current:
Switching output:
Peak current:
Switched voltage:
Mechanical life:
Electrical life:
Other information
Operation temperature:
Storing temperature:
Electrical strengh:
Operation position:
Protection degree:
Overvoltage cathegory:
Pollution level:
Max. cable size (mm2):
Suggested power-supply cable:
Dimensions:
Weight:
Standards:
L - N
AC 230 V / 50 - 60 Hz
- 15% .. +10%
max. 6 VA / 0.7 W
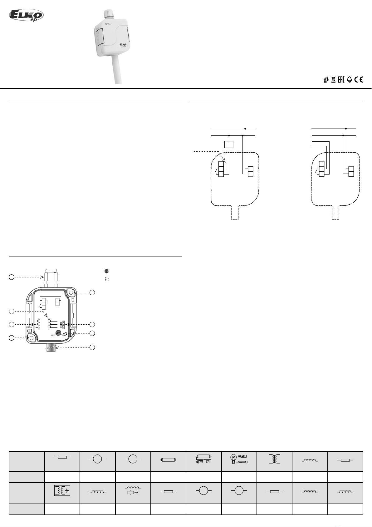
setting by jumper J3
cooling
heating
by jumper J2
-30 °C to 0 °C (-22 °F to 32 °F)
0 °C to +30 °C (32 °F to 86 °F)
+ 30 °C to +60 °C (86 °F to 140 °F)
potentiometer
0.5 / 1.5 / 4 °C (32.9 / 34.7 / 39.2 °F)
by jumper J1
1 x NO- SPST (AgSnO2)
12 A / AC1
3000 VA / AC1, 384 W / DC
30 A / < 3 s
250 V AC / 24 V DC
3 x 107
0.7 x 105
-30 °C to +65 °C (-22 °F to 149 °F)
-30 °C to +70 °C (-22 °F to 158 °F)
4kV (supply-output)
sensor-side down
IP65
III.
2
max. 1x2.5, max. 2x1.5 /
with sleeve max. 1x2.5 (AWG 12)
CYKY 3x 2.5 (CYKY 4x 1.5)
153 x 62 x 34 mm (6˝ x 2.4˝ x 1.3˝)
148 g (5.2 oz.)
EN 60730-2-9, 61010-1
The device is constructed to be connected into 1-phase main and must be installed in
accordance with regulations and norms applicable in a particular country. Installation,
connection and setting can be done only by a person with an adequate electro-technical
qualication which has read and understood this instruction manual and product func-
tions. The device contains protections against over-voltage peaks and disturbing ele-
ments in the supply main. Too ensure correct function of these protection elements it is
necessary to front-end other protective elements of higher degree (A,B,C) and screen-
ing of disturbances of switched devices (contactors, motors, inductive load etc.) as it is
stated in a standard. Before you start with installation, make sure that the device is not
energized and that the main switch is OFF. Do not install the device to the sources of ex-
cessive electromagnetic disturbances. By correct installation, ensure good air circulation
so the maximal allowed operational temperature is not exceeded in case of permanent
operation and higher ambient temperature. While installing the device use screwdriver
width approx. 2 mm. Keep in mind that this device is fully electronic while installing.
Correct function of the device is also depended on transportation, storing and handling.
In case you notice any signs of damage, deformation, malfunction or missing piece, do
not install this device and claim it at the seller. After operational life treat the product as
electronic waste.
actual temperature
level
setup temperature
level