SOFTWARE VERSION 3.0x
code 80086 / Edition 0.5 -01/2001
ISO 9001
1600V / 1800V
CONTROLLER FOR VALVE
USERS’ MANUAL
1
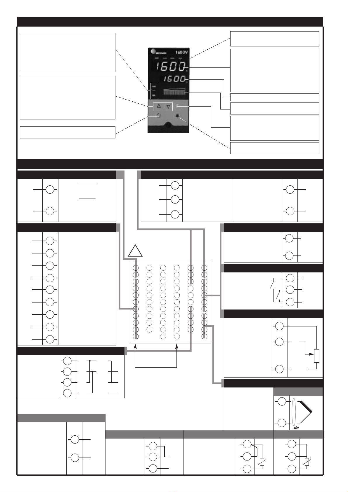
1 • INSTALLATION
• Dimensions and cut-out; panel mounting
CE MARKING:
EMC conformity (electromagnetic compatibility) with EEC Directive
89/336/CEE with reference to the generic Standard EN50082-2 (immunity in industrial
environments) and EN50081-1 (emission in residential environments). BT (low voltage)
conformity respecting the Directive 73/23/CEE modified by the Directive 93/68.
Limitations: the 1800V model conforms to EN55011 standard for radiated emissions in
industrial environment.
MAINTENANCE:
Repairs must be carried out only by trained and specialised
personnel. Remove the power to the instrument before accessing the internal parts.
DO NOT clean the case with solvent (trichlorethylene, petrol, etc.). The use of such
solvents can have adverse effects on the mechanical reliability of the instrument. To
clean the plastic case please use a clean cloth with ethilic alcohol or water.
SERVICE:
SPIRAX-SARCO has a service department.The guarantee excludes defects
caused by usage that does not conform to the instructions.
2 • TECHNICAL SPECIFICATIONS
FUNCTION CABLE TYPE LENGTH
Power supply cable 1 mm21 mt
Relais output cable 1 mm23,5 mt
Digital communication wires 0,35 mm23,5 mt
C.T. connection cable 1,5 mm23,5 mt
TC input 0,8 mm2compensated 5 mt
Pt100 input 1 mm23 mt
The EMC conformity has been tested with the following connections
To ensure a correct
installation, heed the
warnings in the
manual
Panel mounting:
To fix the instrument, insert the brackets provided into the seats on either side of the
case. To mount two or more instruments side by side, respect the cut-out dimensions
shown in the drawing. In order to get the IP65 protection, take the instruments out from
its case and apply the supplied gasket of the front edge of the case itself using some
adhesive. The replace the instruments inside the case.
!
RTD type (scale configurable within
indicated range, with or without decimal point
PTC type (on request)
DIN 43760 (Pt100, JPT100)
990Ω, 25°C
Max line resistance for RTD
20Ω
Safety
detection of short- or open-circuit probe,
LBA alarm, HB alarm
°C / °F selection
faceplate configurable
Linear scale ranges
-1999 to 9999 with configurable decimal point position
Thermocouples
IEC 584-1 (J, K, R, S, T, B, E, N, Ni-Ni18Mo, L NiCr-CuNi)
Cold junction error
0,1° / °C
Control terms
PID, Auto-tune, on-off
pb / dt / di
0.0 ... 999.9% / 0.00 ... 99.99min / 0.00 ... 99.99min
Control actions
Heat / Cool
Control outputs
on / off, pwm, Apri / Chiudi
Cycle time
0.1 ... 200 sec
Main output type
Relay, Logic, Continuous (optional)
Softstart
0.0 ... 500.0 min
Maximum power limit heat / cool
0.0 ... 100.0 %
Fault power setting
-100.0 ... 100.0 %
Automatic blanking
Optional exclusion, displays PV value
Configurable alarms
3 configurable alarms of type: high, low, deviation,
absolute or relative, LBA, HB
Alarm masking
- exclusion during warm up
- latching reset from faceplate or external contact
Type of relay contact
NO (NC), 5A, 250V, cosϕ= 1
Faceplate protection
IP65
Working / Storage temperature range
0...50°C / -20...70°C
Relative humidity
20 ... 85% Ur non condensing
Installation
Panel, plug-in from the front
Weight
400g (1600V); 600g (1800V) in complete version
Main input
TC, RTD (Pt100 - JPT100), PTC,
60mV, Ri ≥1MΩ, 10V, Ri ≥10KΩ, 20mA, Ri = 50Ω
CT scale range
configurable from 0, ... , 100.0A
Transmitter power (optional)
filtered 10 / 24Vdc, max 30mA
short-circuit protection, isolation 1500V
Analogue retransmission signal
(optional)
10V / 20mA, isolation 1500V
Logic inputs (optional)
24V NPN, 4.5mA; 24V PNP, 3.6mA
isolation 1500V
Serial interface (optional)
CL; RS422/485; RS232; isolation 1500V
Baude rate
1200 ... 19200
Protocol
GEFRAN / MODBUS
Logic output for static relay
11Vdc, Rout = 220Ω(6V/20mA)
(option) remote set-point or
Ammeter input
Feed-back input
Valve position from potentiometer
0 ... 10V, 2 ... 10V, Ri ≥1MΩ
0 ... 20mA, 4 ... 20mA, Ri = 5Ω
Potentiometer > 500Ω,
CT 50mAac, 50/60Hz, Ri = 1,5Ω,
isolation 1500V
Power supply (switching type)
(std) 100 ... 240Vac/dc ±10%; 50/60Hz, 12VA max
(opz.) 20...27Vac/dc ±10%; 50/60Hz, 12VA max
Display
2 x 4 digits green of height 10 and 7mm (1600V),
20 and 13mm (1800V)
Keys
5 mechanical keys (*, Man/Auto, INC, DEC, F)
Accuracy
0.2% full scale a 25°C ambient temperature