Electrolux Dishwashing
UK Hood Type WT55
The Electrolux Dishwashing range is designed to meet the most demanding customers requirements for efficiency,
economy, ergonomy and environmental concern and meets WRC requirements. The product range comprises of
glasswashers, undercounter dishwashers, hood type dishwashers, rack type dishwashers, flight type dishwashers and
pot and pan washers.
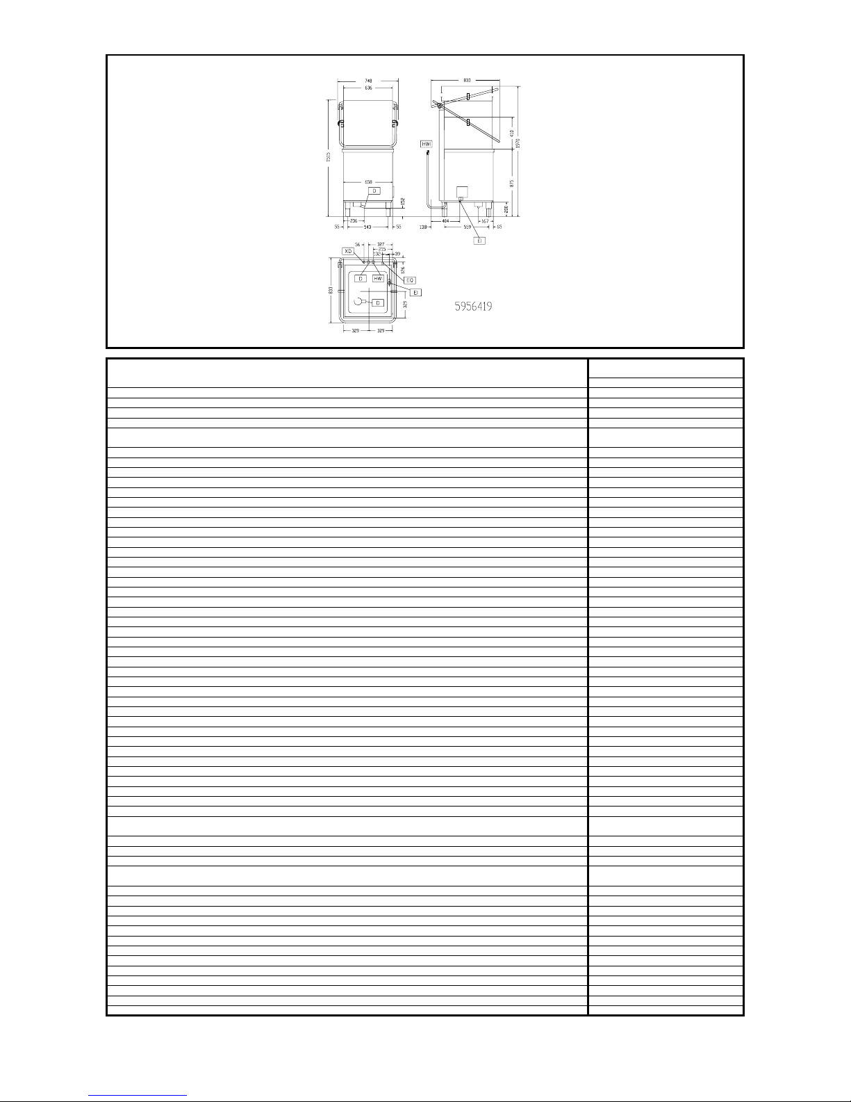
The hood type WT55 dishwasher is suitable for straight through or corner operation and has a capacity of up to 65 racks
per hour. Available as one model only but meets varying operator requirements. Supplied as standard for connection to a
230V single phase electrical supply and a hot water supply, but can be converted on installation to operate from a 415V
three phase electrical supply and the enhanced 9kW boiler heaters enable the dishwasher to be connected to a cold
water supply.
EASY TO INSTALL
• Suitable for straight through or
corner operation.
• Integral class 'A' type air break for
direct connection to mains water
supply.
• WRC listed.
• Integral rinse booster pump.
• Built-in peristaltic pumps for
detergent and rinse aid.
• Built in drain pump.
• Suitable for gravity drain to a point
up to 500mm above floor level.
EASY TO USE
• Automatic operation on closing the
hood plus standby position that
allows the hood to be raised and
lowered without a wash cycle being
initiated.
• Spring balanced hood with safety
switch.
• High capacity 12 litre atmospheric
boiler provides a Guaranteed Rinse
System with water temperature at
84°C for 16 seconds. A thermal lock
device automatically extends the
wash until a temperature of 84°C is
reached for rinsing.
• Built-in pumps for detergent and
rinse aid contributes to a perfect
result and low consumption of
chemicals.
• Operator choice of three different
washing cycles: light soiled items (55
seconds), standard soil (75 seconds)
and stubborn soiled items (300
seconds).
• Simple to use control panel.
• Two automatic programmes plus
continuous for varying levels of soiled
items.
EASY TO CLEAN
• Stainless steel construction.
• WT55 has an 'L' shaped deep
drawn for increased energy savings.
• Wash and rinse arms are easy to
remove for thorough cleaning without
the use of tools.
• Large scrap boxes above the 'L'
shaped wash tank and extra filter in
the tank bottom at the pump inlet.
EASY TO MAINTAIN
• Simple service from the front.
• One model for all customer
requirements is finished in top quality
materials to aid durability.
EASY ON THE ENVIRONMENT
• 98% recyclable by weight
• CFC free packaging.
• Low noise level <70dBA
• Developed and produced in ISO
9001 certified factory.