
3
5472 726 - 04
Vitotron 100 Electric Boiler Installation/Service Instructions for the Installer
Safety Instructions
8. This electric boiler is equipped with a 194°F manual
reset safety high limit device. The reset button is
clearly located in the center of this device.
9. This electric boiler will not operate below a 7 psi
water pressure level.
10. This electric boiler is equipped with a Wilo circulator
pump. After thermostat temperature set point has
been reached the pump will continue to
circulate water for 3 additional minutes as part of a
post purge sequence to push heated water away from
heat exchanger.
11. This electric boiler is equipped with a differential
pressure relief bypass valve. It allows the system
to keep minimal flow of heating water through
the electric boiler and reduce noise in the installation
when equipped with thermostatic zone valves.
12. Do not drain the water from the electric boiler after
the heating season.
13. In summer do not shut off the power supply (120VAC
and 240VAC) and leave the controller in stand-by
(summer mode) between the heating seasons. The
electric boiler is equipped with an exercise timer
control feature that allows the circulating pump to
operate 15 minutes each day and will ensure longer
operation the circulating pump and will help to
eliminate the buildup of debris. (See section “Summer
mode (stand-by mode)”on page 11).
14. The electric boiler is pre-set by the manufacturer to
work with hydronic radiant floor, radiant ceiling,
hot water baseboard and water to air heat
applications. Temperature adjustments can be made
on the control panel to meet these applications
requiring desired water temperatures between 85° -
140°F.
1. Read and strictly follow the installation and operating
instructions to ensure a longevity and reliable electric
boiler operation.
2. This manual provides general installation guidelines.
Your installation must comply with ALL applicable
local codes.
3. 1Always have a qualified electrician perform
electrical wiring. Manufacturer will not be held
responsible for faulty installations which are performed
by unqualified electricians. An efficient electrical
installation which has been completed in accordance
with the binding norms of electric installation.
Electric installation should be equipped with electric
circuit breakers and other solutions which will ensure
disconnecting the electric boiler from the source of
power.
4. All installation work must be performed when the
power and water supply is disconnected from the
main electrical panel.
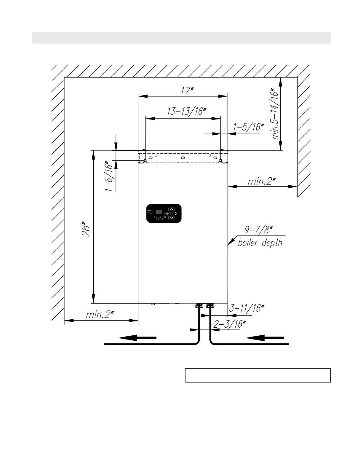
5. This electric boiler must be installed vertically and on
an even wall surface with access to plumbing
connections on bottom.
6. Any associated components (i.e. electric boiler,
water tubing, valves, manifolds etc...) must be
flushed before electric boiler installation.
7. This electric boiler is equipped with a safety relief
valve. Do not install any barrier fitting or valve on the
outlet of the safety valve. Connect and extend
cin. copper piping from relief valve and terminate
at least 6 in. from the floor or floor drain.