
F1345
F1345 without 2.0
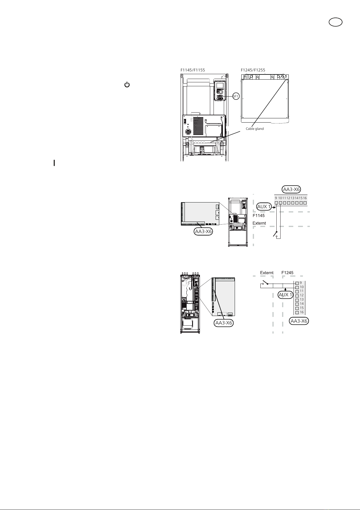
Connection occurs as follows:
1. Set the heat pump's switch (SF1) to " ".
2. Remove the front hatch.
3. Route the cable from the level monitor through
the cable grommet (UB3 ) to the electrical connec-
tion (AA3 ).
4. Strip the insulation from the contacts and instal l
on the terminal block (X6 ). Select one of the inputs
AUX1 (X6:17) , AUX2 (X6:18) and AUX3 (X6:19) .
Connect ground to terminal block X6:GND .
5. Reinstal l the front cover.
6. The heat pump is started again when the switch
(SF1) is set to " " position.
7. Enter menu 5.4. Activate the AUX-input you have
selected to connect NV 10 by selecting "brine
monitor".
UB3
Connection F1345 without 2.0
9
10
11
12
13
14
15
16
B
A
17
18
19
AUX1
X6 External F1345 without
2.0
AA3- X6
AA3- X6
F1345 with 2.0
Connection occurs as follows:
1. Set the heat pump's switch (SF1) to " ".
2. Remove the front hatch.
3. Route the cable from the level monitor through
the cable grommet (UB3 ) to the front edge of the
electrical connection.
4. Strip the insulation from the contacts and instal l
on the terminal block (X6 ). Select one of the inputs
AUX 1-3 on terminal block AA3- X6:9-14 or AUX 4-
5 on terminal block AA10:-x10-19-22.
5. Reinstal l the front cover.
6. The heat pump is started again when the switch
(SF1) is set to " " position.
7. Enter menu 5.4. Activate the AUX-input you have
selected to connect NV 10 by selecting "brine
monitor".
UB3
Connection F1345 with 2.0
9
10
11
12
13
14
B
A
L1
-X3 -X4
1 2 3
-AA101 -AA101
NL2 L3 1 2 345678 9
-X5
1 2 345678 9
-X6
-X7 -X8 -X9
-FC1
101AA-101AA-
-AA101 -AA101 -AA101
1 2 341 2 31 2 31 2 345
-X10
A B A B
-AA3-X7
K1
-AA101
K2 K3
C C NONC
K4
CNONC
QN10 GP16
LNLLLNNNLNLN PEPE
678 9 10 11 12 13 14 15 16 17 18 19 20 2122
12V
A B 13 14
-BE1
-GP16
-BE2
-BE3
AUX 4
AUX 5
1 2 345678 9 10 1112 13 14 15
-AA3
-X6
0-10V
-EP14 -EP15
-BF1
16 17 18 2
-AA3
-X22
-AA3
-AA3
-X20 -X21
1312 3
-X23
-BT1
-BT50
-BT25
-BT6
AUX 1
AUX 2
AUX 3
-BT7
-BT71
2.0
AA101- X10 AA3- X6
External F1345 with 2.0
AA3- X6
AUX1
10
GB
F1345 has dierent electrical connection versions de-
pend ing on when the heat pump was manuf actur ed.
To check which electrical connection appl ies to your
F1345 , check the designation "2.0" visible above the
right hand side of the terminal block as illustrated.