
1
CONTENTS
TECHNICAL DATA . . . . . . . . . . . . . . . . . . . . . . . . . . . . . . . . page 2
Variants . . . . . . . . . . . . . . . . . . . . . . . . . . . . . . . . . . . . . . . . . . . . . . 2
Burner description . . . . . . . . . . . . . . . . . . . . . . . . . . . . . . . . . . . . . . 3
Packaging - Weight . . . . . . . . . . . . . . . . . . . . . . . . . . . . . . . . . . . . . 3
Max. dimensions . . . . . . . . . . . . . . . . . . . . . . . . . . . . . . . . . . . . . . . 3
Standard equipment . . . . . . . . . . . . . . . . . . . . . . . . . . . . . . . . . . . . . 3
Firing rates . . . . . . . . . . . . . . . . . . . . . . . . . . . . . . . . . . . . . . . . . . . . 4
Test boiler. . . . . . . . . . . . . . . . . . . . . . . . . . . . . . . . . . . . . . . . . . . . . 4
INSTALLATION . . . . . . . . . . . . . . . . . . . . . . . . . . . . . . . . . . . . . . . .5
Working position. . . . . . . . . . . . . . . . . . . . . . . . . . . . . . . . . . . . . . . . 5
Boiler plate . . . . . . . . . . . . . . . . . . . . . . . . . . . . . . . . . . . . . . . . . . . . 5
Blast tube length . . . . . . . . . . . . . . . . . . . . . . . . . . . . . . . . . . . . . . . 5
Securing the burner to the boiler . . . . . . . . . . . . . . . . . . . . . . . . . . . 5
Choice of nozzles per il 1° e 2° stadio . . . . . . . . . . . . . . . . . . . . . . . 5
Nozzle assembly . . . . . . . . . . . . . . . . . . . . . . . . . . . . . . . . . . . . . . . 6
Combustion head setting . . . . . . . . . . . . . . . . . . . . . . . . . . . . . . . . . 6
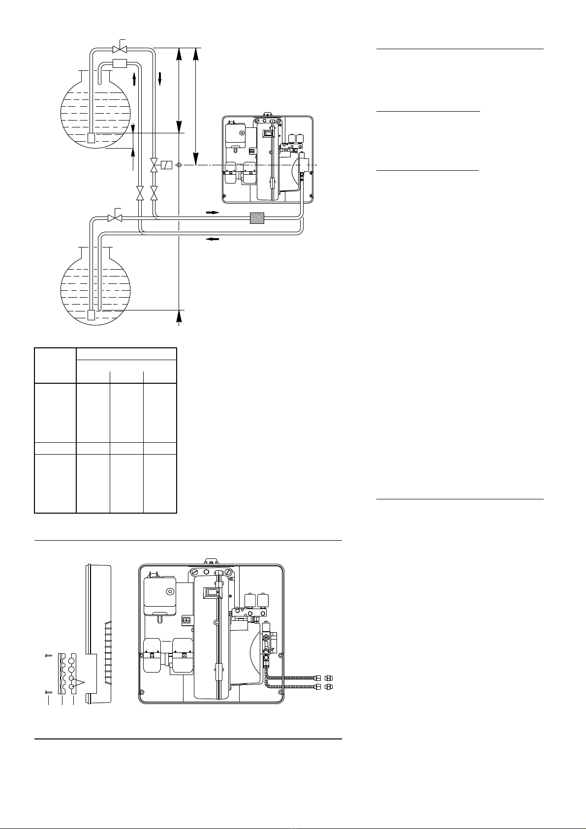
Hydraulic system . . . . . . . . . . . . . . . . . . . . . . . . . . . . . . . . . . . . . . . 7
Pump . . . . . . . . . . . . . . . . . . . . . . . . . . . . . . . . . . . . . . . . . . . . . . . .8
Burner calibration . . . . . . . . . . . . . . . . . . . . . . . . . . . . . . . . . . . . . . . 9
Burner operation. . . . . . . . . . . . . . . . . . . . . . . . . . . . . . . . . . . . . . . 10
Final checks . . . . . . . . . . . . . . . . . . . . . . . . . . . . . . . . . . . . . . . . . . 11
Maintenance. . . . . . . . . . . . . . . . . . . . . . . . . . . . . . . . . . . . . . . . . . 11
Burner start-up cycle diagnostics. . . . . . . . . . . . . . . . . . . . . . . . .13
Resetting the control box and using diagnostics. . . . . . . . . . . . .13
Fault - Probable cause - Suggested remedy . . . . . . . . . . . . . . . . . 14
Status (optional) . . . . . . . . . . . . . . . . . . . . . . . . . . . . . . . . . . . . . . . 15
Accessories . . . . . . . . . . . . . . . . . . . . . . . . . . . . . . . . . . . . . . . . . . 16
APPENDIX. . . . . . . . . . . . . . . . . . . . . . . . . . . . . . . . . . . . . . . . . . .17
Electrical connections. . . . . . . . . . . . . . . . . . . . . . . . . . . . . . . . . . . 17
Electrical panel layout . . . . . . . . . . . . . . . . . . . . . . . . . . . . . . . . . . 18
N.B.
Figures mentioned in the text are identified as follows:
1)(A) =part 1 of figure A, same page as text;
1)(A)p.3 =part 1 of figure A, page number 3.
INFORMATION ABOUT THE INSTRUCTION
MANUAL
INTRODUCTION
The instruction manual supplied with the burner:
- is an integral and essential part of the product and must not be
separated from it; it must therefore be kept carefully for any nec-
essary consultation and must accompany the burner even if it is
transferred to another owner or user, or to another system. If the
manual is lost or damaged, another copy must be requested from
the Technical Assistance Service of the area;
- is designed for use by qualified personnel;
- offers important indications and instructions relating to the instal-
lation safety, start-up, use and maintenance of the burner.
DELIVERY OF THE SYSTEM AND THE INSTRUCTION
MANUAL
When the system is delivered, it is important that:
- The instruction manual is supplied to the user by the system
manufacturer, with the recommendation to keep it in the room
where the heat generator is to be installed.
- The instruction manual shows:
- the serial number of the burner;
- the address and telephone number of the nearest Assistance
Centre;
- The system supplier carefully informs the user about:
- the use of the system,
- any further tests that may be necessary before the system is
started up,
- maintenance and the need to have the system checked at
least once a year by the manufacturer or another specialised techni-
cian.
To ensure a periodic check, recommends the drawing up of
a Maintenance Contract.
..................................................................................
..................................................................................
..................................................................................
..................................................................................
Manufacturer's Declaration
RIELLO S.p.A. declares that the following products comply with the NOx limits specified by German standard
“1. BImSchV 2009”.
Product Type Model
Light oil burners 974 T RL 64 MZ
Legnago, 01.09.2009 Mr. G. Conticini
Burners Division Department
RIELLO S.p.A.