Primex CW6CDC Manual de usuario

User Manual
CW6CDC
CONTROLLER
WWW.PRIMEXCONTROLS.COM
CW6CDC
844-4PRIMEX (844-477-4639)
WATER SYSTEM INTEGRATOR AND CONTROLS PROVIDER

PRIMEX®1 CW6CDC Level Controller User Manual
WWW.PRIMEXCONTROLS.COM
TABLE OF CONTENTS
REVISION B • Firmware Revision B2.02
Introduction......................................................................................................................................2
Warnings .................................................................................................................................................3
Installation & Dimension Data...............................................................................4-5
Electrical Connections ......................................................................................................6
Function Keys / Displays...................................................................................................7
Setting Up Levels and Simulation ...................................................................8-9
Configuration ...........................................................................................................................9-11
Configuration Mode Parameters .................................................................. 12
Run Mode Parameters..................................................................................................... 13
Specifications...............................................................................................................................14
Warranty ............................................................................................................................................ 15
Notes.......................................................................................................................................................... 16
WATER SYSTEM INTEGRATOR AND CONTROLS PROVIDER

PRIMEX®2 CW6CDC Level Controller User Manual
The CW6CDC level controller is a simple, easy-to-use microprocessor-
based controller capable of monitoring any 4-20 mA signal. It has six
programmable relay outputs that can be used for control and alarm.
The transducer input zero and span are fully configurable. A simulation
mode allows the user to test set-points and relay operation.
CW6CDC LEVEL CONTROLLER INTRODUCTION
The standard CW6CDC level controller kit contains (see Figure 2 on
page 5 of this manual):
• one CW6CDC level controller
• two mounting brackets for panel mounting
• a three pin power supply connector block (P1)
• a 18 pin relay output connector block (P2)
• a five pin transducer connector block (P3)
CW6CDC

PRIMEX®3 CW6CDC Level Controller User Manual
Failure to read and understand the information provided in this manual may result in personal
injury or death, damage to the product or product failure. Please read each section in its
entirety and be sure you understand the information provided in the section and related
sections before attempting any of the procedures or operations given.
Failure to follow these precautions could result in serious injury or death.
Keep these instructions with warranty after installation. This product must be
installed in accordance with National Electrical Code, ANSI/NFPA 70 so as to
prevent moisture from entering or accumulating within the controller housing.
See additional specifications on page 14 of this manual.
ELECTRICAL SHOCK HAZARD
Disconnect power before installing or servicing this product.
A qualified service person must install and service this product
according to applicable electrical codes.
EXPLOSION OR FIRE HAZARD
Do not use this product with flammable liquids. Do not install in
hazardous locations as defined by National Electrical Code,
ANSI/NFPA 70.
• Do not install in area with: excessive or conductive dust, corrosive or
flammable gas, moisture or rain, excessive heat, regular impact shocks
or excessive vibration.
• Do not place in water or let water leak onto the controller.
• Do not allow debris to fall inside the unit during installation.
• Double-check all the wiring before turning on the power supply.
• Do not touch live wires.
• Stay as far as possible from high-voltage cables and power equipment.
• Leave a minimum of 10 mm space for ventilation between the top and
bottom edges of the controller and enclosure walls.
WARNINGS

PRIMEX®4 CW6CDC Level Controller User Manual
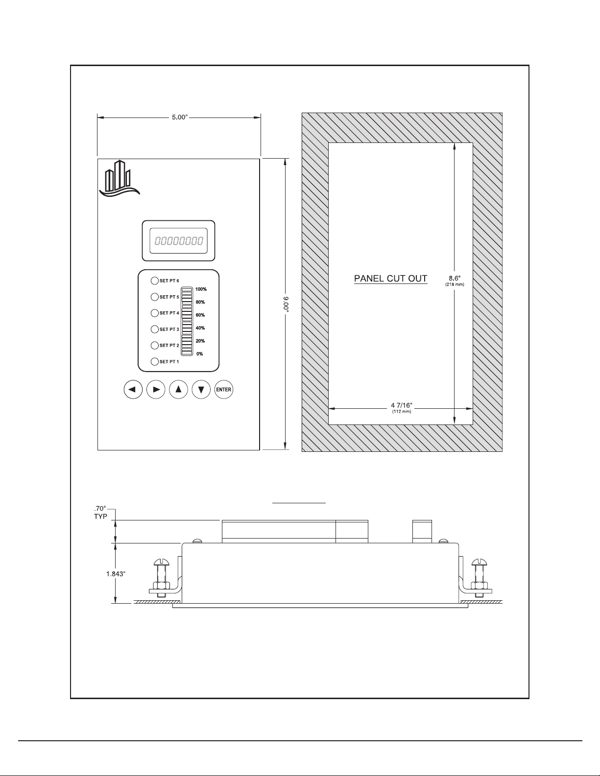
SIDE VIEW
CW6CDC
FIGURE 1 Dimensions and panel cut-out. Dimensions are indicative and may be subject to change without notification.
INSTALLATION & DIMENSIONAL DATA

PRIMEX®5 CW6CDC Level Controller User Manual
FIGURE 2 Standard CW6CDC level controller kit.
INSTALLATION & DIMENSIONAL DATA

PRIMEX®6 CW6CDC Level Controller User Manual
1. POWER (Terminal P1)
Connect power to terminal 1 and 2: the unit requires 24 VDC (+/- 10%).
2. TRANSDUCER (Terminal P3)
For loop powered transducers (2 wire) connect power conductor to terminal
1 and 2. If the cable is protected with an overall shield, connect the shield
to terminal (3). Terminal 4 and 5 must be connected if an output follower is
not required. If no valid input is present, the controller will display SENSOR
and all outputs will be de-energized.
NOTE: To avoid ground loops, the shield of the signal cable must only be
grounded at one end.
3. OUTPUT RELAY CONNECTIONS
The relay outputs are rated up to 10 A (resistive) at 240 VAC, fuse
protection is required individually or as a group.
FIGURE 3 Wiring diagram, back
view - with a submersible pressure
transducer.
ELECTRICAL CONNECTIONS

PRIMEX®7 CW6CDC Level Controller User Manual
LEFT AND RIGHT ARROW KEYS
are used to navigate through the menu items. These
arrow keys can also be used to back out when in editing
and simulation mode.
ENTER KEY
is used for selecting a menu item for editing. This key is
also used after a value has been edited to store in memory.
UP AND DOWN ARROW KEYS
is used to increase or decrease the current value being
edited.
NOTE: The display automatically returns to “level” after 20 seconds of
inactivity, regardless of where it was left.
Pressing once will increment the current value by one unit. Pressing and
holding will begin repeatedly incrementing after a short delay. If the
operator continues to hold the key, the value continues to increment at a
faster rate.
lSET POINTS
6 programmable set
points status LED. Form
C (SPDT)
contacts: rated at
10A at 240 VAC.
CW6CDC
lLEVEL
DISPLAY
Eight character alpha-
numeric LED for
process value display
and program
parameters.
lKEYPAD
Arrow keys are
used to navigate
through the
configuration and
used for adjusting
set points.
lBAR GRAPH
20 segment bar
graph display for
process value.
Each bar
represents 5%
of full scale.
FUNCTION KEYS / DISPLAYS

PRIMEX®8 CW6CDC Level Controller User Manual
SETTING UP LEVELS AND SIMULATION
LEVEL DISPLAY
FLASHING
STORE
SELECT
EDIT
Continued on next page...
FIGURE 4 Example of how to move from the level display screen
through each set-point and to change set-point 2.

PRIMEX®9 CW6CDC Level Controller User Manual
LEVEL DISPLAY
The adjustable ON and OFF function allows for an individual hysteresis or
differential setting of each set-point. For an emptying application, the ON set-
point must be greater than the OFF set-point. For a filling application, the ON
set-point must be less than the OFF set-point (Refer to FIGUIRE 5).
NOTE: For proper operation of the CW6CDC controller, the ON and OFF
set-points must not be set to the same value.
FIGURE 5
...Continued from previous page
FLASHING
Tabla de contenidos
Otros manuales de Controladores de Primex























