
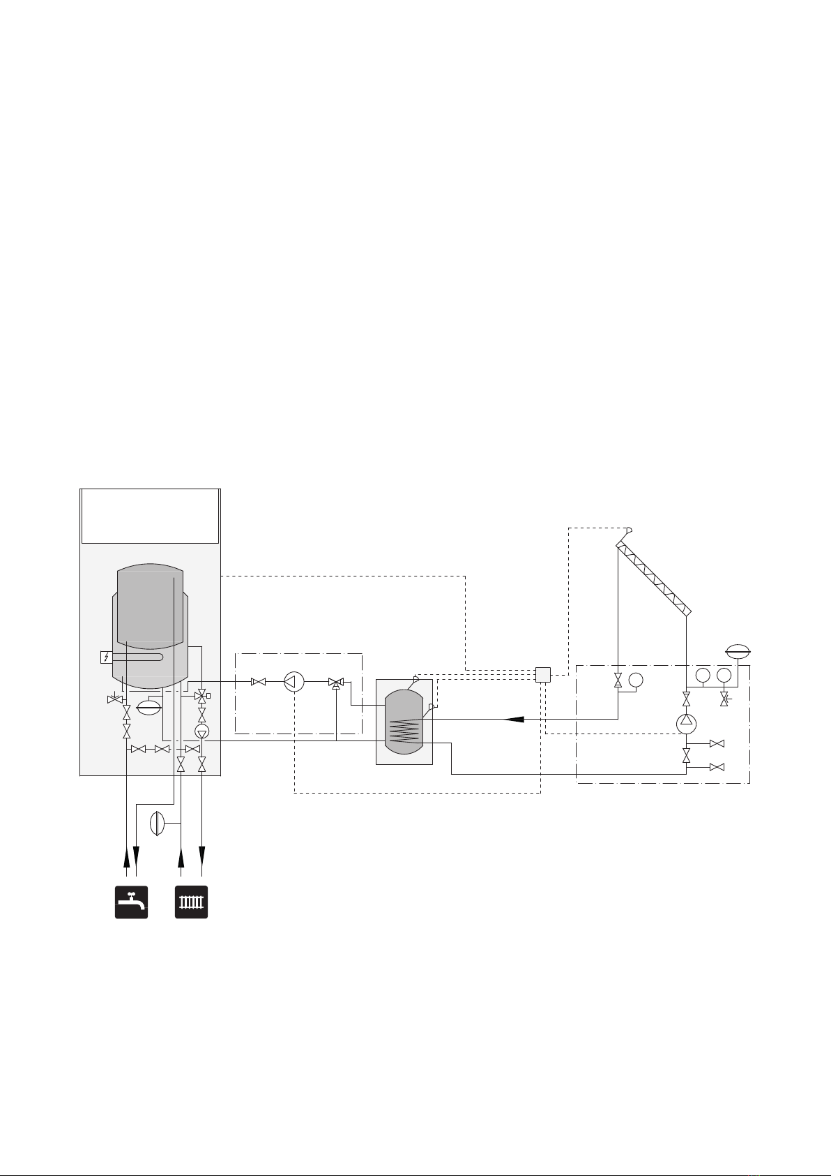
Röranslutningar
F370/F470 finns i två utföranden, ett med O-ringsanslut-
ningar och ett med klämringsanslutningar. Inkopplingen
av SOLAR 41 skiljer sig åt beroende på vilken variant av
F370/F470 som SOLAR 41 ska anslutas till.
F370/F470 med O-ringsanslutningar
Vid nyinstallation, gå direkt till punkt 6.
1. Ställ värmepumpens strömställare i läge ”0” och tag
bort frontluckan.
2. Stäng av avstängningsventilen för framledning i ra-
diatorkretsen (QM31).
3. Stäng av avstängningsventilen för returledning i ra-
diatorkretsen (QM32).
4. Släpp ut trycket i pannan genom att öppna säker-
hetsventilen (FL2) försiktigt. (Ratten vrids moturs för
att öppna.)
5. Töm pannan genom (FL2), ställ avluftningsventilen
(QM20) i öppet läge för lufttillförsel.
6. Plocka bort befintlig koppling och plugg vid anslut-
ning för dockning (XL8). Byt befintliga O-ringar mot
medföljande O-ringar. Montera dit medföljande
dockningsrör (figur B) och befintlig koppling med
medföljande klämring.
7. Plocka bort befintligt rör och kapa det enligt bild.
Montera medföljande stödhylsa i
röret och byt O-ring vid anslutning-
en till expansionskärlet. Anslut se-
dan medföljande O-ringskoppling
med O-ringar. Montera därefter
medföljande T-rörskoppling och
det kapade röret (se figur A).
8. Anslut inkommande rör från acku-
mulatortanken till dockningsrör
(figur B) i anslutning XL8 och retur-
ledningen till den lediga anslutning-
en i T-rörskopplingen (figur A).
LEK
LEK
PBD sv
BP5
QM20
GP1XL3FL2FL1CM1QM31XL1XL4XL2 QM32
WM2
QN11 MA1QM11 FL6
EB1
FA1
AA1
FD1
AA3
AA2
UB1
UB2
AA4
SF1
UR1GQ10EP1 GQ2
EB10QN1 CA1 HZ1
XL32 XL31
QM10
WM1
WP3
WP2 WP1
PF3
PF1
SOLAR 41 | SE4