
ENGLISH ITALIANOFRANÇAISDEUTSCH
8
LXTFF01M-IOM-1511
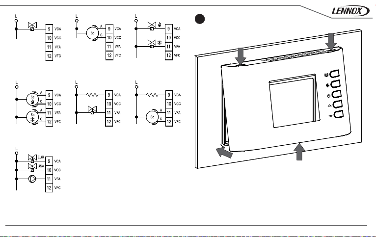
GENERALITÀ
Questo dispositivo è un termostato digitale per il controllo
della temperatura in ambienti riscaldati o raffrescati da fan-coil
(ventilconvettori).
Esso controlla in maniera automatica le tre velocità di un ventilatore e
l’apertura o chiusura delle valvole in modo da regolare la temperatura
nella maniera più confortevole. La rilevazione della temperatura
ambiente può essere effettuata dalla sonda interna oppure remota
(opzionale).
DESCRIZIONE DEI COMANDI
I comandi del termostato disponibili per l’utente sono cinque pulsanti.
- Pulsante “ “ (On/Off)
Per l’accensione e lo spegnimento del termostato; quando
il dispositivo è spento, il display non visualizza più nessuna
temperatura, mentre alcuni simboli possono rimanere accesi per
indicare lo stato di uscita attiva.
Se il termostato è configurato per realizzare la funzione “Economy“
(P17), il pulsante “ “ permette di attivare / disattivare lo stato di
“Economy“ secondo il seguente schema:
automatica. In particolare 1 indica la velocità più
bassa, 2 quella media e 3 quella più alta. Il termostato, quindi,
se impostato su una delle tre velocità sopraindicate, attiverà il
ventilatore quando necessario sempre alla stessa velocità. Nel caso
in cui sia impostata la velocità automatica il termostato attiverà il
ventilatore in modo automatico ad una velocità tanto più alta quanto
più elevata è la necessità di calore o fresco dell’ambiente.
- Pulsante “ “ (Menù)
Questo pulsante cambia la visualizzazione del display: premuto una
volta permette di visualizzare la temperatura di setpoint impostata.
Se il termostato è configurato per visualizzare la temperatura
dell’acqua di mandata, essa sarà visualizzata premendo un’ulteriore
volta il pulsante.
Nel cambiare la visualizzazione il termostato informa qual è la
temperatura indicata quando essa è diversa dalla temperatura
ambiente, accendendo le seguenti icone:
Temperatura setpoint
Temperatura dell’acqua di mandata
Se si preme ripetutamente il pulsante la visualizzazione cicla
tra le diverse temperature. Dopo alcuni secondi di inattività la
visualizzazione ritorna sulla temperatura ambiente.
- Pulsante ““ e ““
Questi pulsanti permettono di impostare la temperatura
ambiente desiderata e i parametri di configurazione. Nel normale
funzionamento, se vengono premuti i pulsanti ““ o ““, la
visualizzazione del display si sposta sulla temperatura di setpoint
mostrando il nuovo valore che si sta impostando.
Anche in questo caso, dopo alcuni secondi di inattività la
visualizzazione ritorna sulla temperatura ambiente.
in cui 1, 2 e 3 sono le 3 velocità fisse e AUTO è la
velocità
- Pulsante “ “ (Velocità)
Questo pulsante modifica l’impostazione della velocità del
ventilatore desiderata.
Ad ogni pressione del pulsante “ “ si modifica la velocità del
ventilatore secondo il seguente ciclo:
Veloci
Questo pulsante modifica l
’
impostazione della velocità del
OFFON
cui 1
2 e 3 sono le 3 velocità
sse e AUT
è la
v
l
it