
Technical documentation Technical documentation
EOLO SUPERIOR PLUS
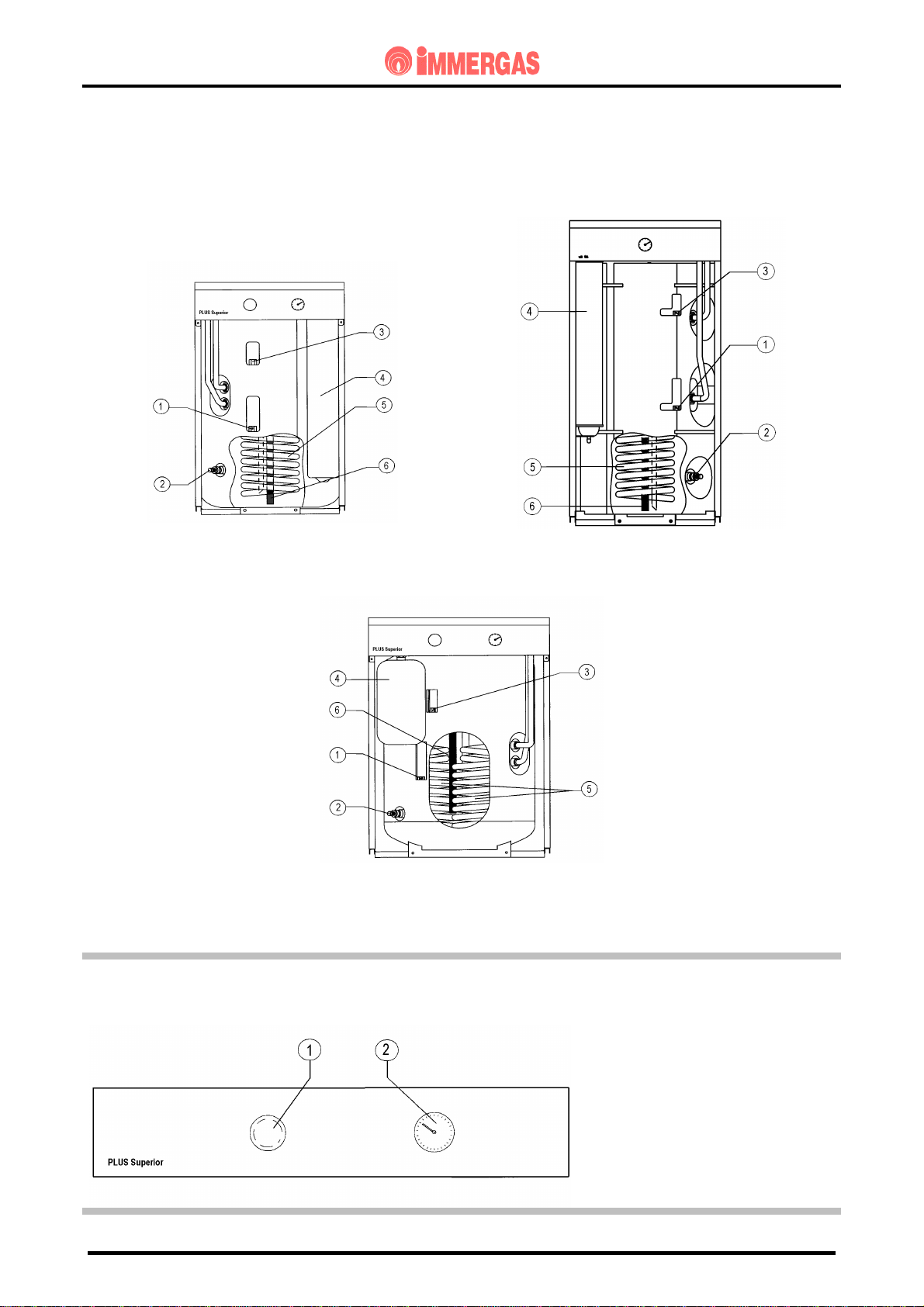
- STORAGE TANK UNIT (optional)
The PLUS storage tank units ( 80 l, 105 l and 120
l) consist of a coil storage tank unit insulated with
polystyrene supplied complete with covering and
instrument panel.
The storage tank is made entirely of AISI 316 L
stainless steel and consists of an outer jacket
enclosed in the top part by a flange secured by 12
screws.
Inside is a coil (two in the case of the 120 l model)
consisting of a concentric-spiral shaped stainless-
steel pipe that develops in the bottom part of the
storage tank and through the walls of which the
heat exchange occurs between the hot water of the
primary circuit and the water in the storage tank.
This ensures the water in the storage tank is always
at a constant temperature and, in the case of a water
request, results in the instantaneous production of
hot water.
If necessary, the coil can be removed from the
storage tank after taking off the upper inspection
flange.
The storage tank unit is complete with a series of
devices that not only ensure proper operation, but
also protect its integrity:
Anode (6)
This is fitted in the storage tank and protects this
against the effects of galvanic currents.
It is screwed onto the upper flange.
Polyphosphate metering unit (optional)
Prevents limestone deposits on the coil walls.
The kit is fitted at the cold domestic water inlet.
Safety valve unit (14)
This assembly is located in the top part of the storage
unit near the cold domestic water inlet.
Besides an 8-bar valve (“7” d.h.w. circ.) which
prevents safety pressure being exceeded inside the
storage tank, it comprises:
- a flow limiting device - 12 l/min (80 l and 105 l
versions only)
- an one way valve (“8” d.h.w. circ.) to prevent the
increase in pressure resulting from d.h.w heating
causing a return towards the cold water system.
ON-OFF thermostat kit (12) (optional)
Adapts operation of the storage tank unit to systems
with ON-OFF type temperature control.
It consists of a thermostat, the bulb of which is fitted
in place of the NTC sensor which is electrically
connected to the terminal board of the storage tank
instrument panel.
Adjustment is made from the control panel after
having removed the special plate (13).
Re-circulation kit (11) (optional)
Permits connecting the pipes of any d.h.w. re-
circulation system.
It consists of a pipe that is fitted in the storage tank
after removing the anode (7) and the relevant cap.
When the kit is installed, the anode (7) must be
screwed onto the end of the pipe.
D.h.w. drainage valve (10)
This is a brass cap complete with hose connection
located (screwed) onto the outer wall of the
storage tank by means of which the water inside
the tank can be drained off.
NTC Storage tank sensor (NB) (4)
Enables the modulation board to determine the
temperature of the water in the storage tank.
It is fitted in a bulb holder in contact with the outer
wall of the storage tank.
D.h.w. expansion vessel (9)
Compensates changes in volume caused by the heating
of the water in the storage tank.
The 80 l and 105 l versions have a capacity of 4 l,
while the 120 l version holds 5 l.
PLUS 80 l UNIT