Electrolux Dishwashing
Wine Line Undercounter
Internet: http://www.electrolux.com/foodservice
IBE0102011-02-25Subject to change without notice
Convertible to 230 V / 3 / 50 Hz;
230 V / 1+N / 50 Hz
Supply voltage 400 V, 3N, 50
Net weight - kg. 68
Noise level - dBA <65
total power 6.85
Rinse pump 0.26
drain pump 0.034
Power - kW
Boiler elements - kW 6
Boiler capacity - lt. 12
water consumption - lt./cycle 3.8
temperature during rinse - °C 84
duration - sec. 16
Hot rinse cycle
electrical elements - kW 2
power pump - kW 0.736
tank capacity - lt. 23
temperature -°C 50-55
Washing cycle
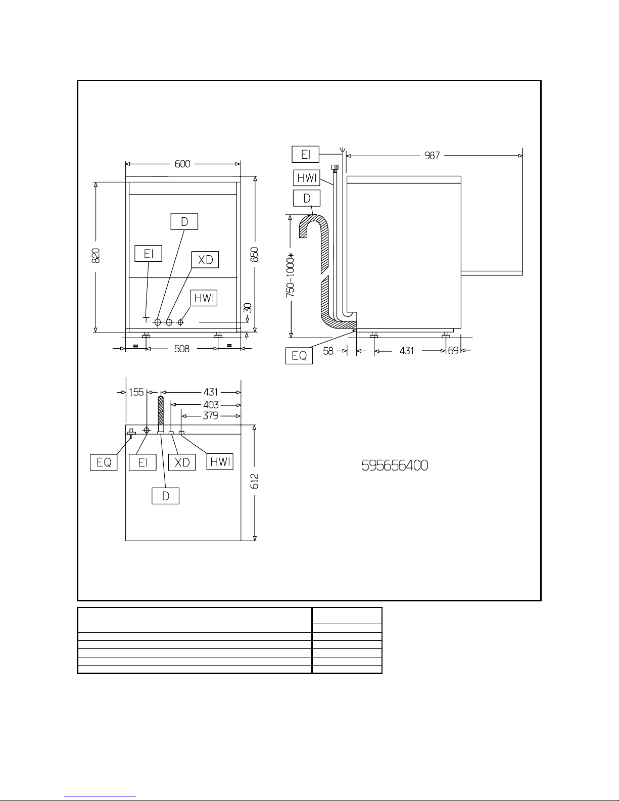
height 335
depth 500
width 500
Cell dimensions - mm
height 850
depth 612
width 600
External dimensions - mm
Basket capacity/h 40
Dishes capacity/h 720
Duration cycles - sec. 90/113/173
N° of cycles 3
Rinse aid dispenser ●
Detergent dispenser ●
Rinse Booster Pump ●
Drain pump ●
Thermometer ●
hardness - °f 7-14
temperature - °C 50
Water supply
TECHNICAL DATA
EUCAIWL
502040
• The fully automatic self-cleaning
cycle avoids the risk of bacteria
proliferation.
• The boiler drain facilitates the
evacuation of stagnant water after
long periods of inactivity to ensure
a higher level of hygiene.
• High efficiency air gap (class A)
in water inlet circuit to avoid water
being siphoned back into the
network as a result of a sudden
drop in main pressures.
• Front and side panels, door,
wash tank, tank filter and
wash/rinse arms made in heavy
duty anti-corrosive AISI 304
stainless steel to guarantee
appliance durability.
• 304L stainless steel atmospheric
boiler with higher welding
protection improves the resistance
against corrosion from chlorinated
water.
• PVC water supply hose with
metal connections resistant to
high water pressure.
• Completely closed on the
reverse by a cover plate while the
IPX4 water protection prevents
external infiltrations.
FLEXIBILITY AND ERGONOMICS
• The incorporated Soft Start
feature offers additional protection
to delicate items such as
glassware and crockery and
increases wash pump reliability.
• Simple control panel with digital
display allows on-site
personalization of washing and
rinsing cycle times and
temperatures as well as precise
rinse aid and detergent quantities
depending on the customers
needs.
• Three phase electrical
connection, convertible on-site.
• All machines are pre-arranged to
accept external dispensers.
• Counterbalanced door with
springs to lighten the load when
opening and closing.
• The wash tank filters can be
removed without extracting the
washing and rinsing arms.
• Pre-arrangement for HACCP
system implementation and
Energy Management device.
EASY ON THE ENVIRONMENT
• 98% recyclable by weight.
• CFC free packaging.
• In compliance with H
requirements.
• Low noise level.
• Developed and produced in ISO
9001 and ISO 14001 certified
factory.
* Duration cycles: declared actual cycle
duration times can extend when water
supply temperature is lower than
indicated.