Operating and Installation Instructions
FX 20 V Downflow Fan Heater 453321.66.70gb 09/03/A
1. Warnings
You are requested to read carefully all the information in
these instructions. Keep these instructions carefully and if
applicable pass them on to the final owner.
− The appliance is only to be used for the heating of
dwellings or similar spaces. It is only suitable for domestic
use or similar purposes within enclosed spaces.
− Repairs to the appliance are only to be carried out by a
competent electrician.
− In the event of a fault disconnect the electricity supply to
the appliance (turn off or remove the fuse).
− By covering the heater could cause a heat build up and
possibly lead to material igniting. You must observe the
minimum clearances.
− The surfaces, especially the air-outlet grille, become hot
during operation. For this reason ensure that small
children cannot touch these surfaces.
− No objects should be inserted through the openings of
the appliance.
− It is particularly important that the appropriate safety
− regulations for bathrooms, showers, swimming pools
etc. are fulfilled.
− The heater is to be installed in such a way that it cannot
be touched from a person in the bath or shower and that
the switch cannot be operated.
− The fixed installation must be provided with a switching
device having a contact separation of 3 mm in all poles
(e.g. overload release).
− No materials can be used in the room where the
appliance is installed whose fumes or the material itself
could give rise to ignition, explosion or thermal
decomposition due to the high temperatures.
2. Description
Heating capacity : 2 kW, 1 kW (depending on pre-setting)
Supply voltage : 1/N/~230V, 50 Hz
Construction class II: double insulated
System of protection: IP 22
Dimensions (W x H x D) : 229 x 109 x 242 mm
Weight : 1.4 kg
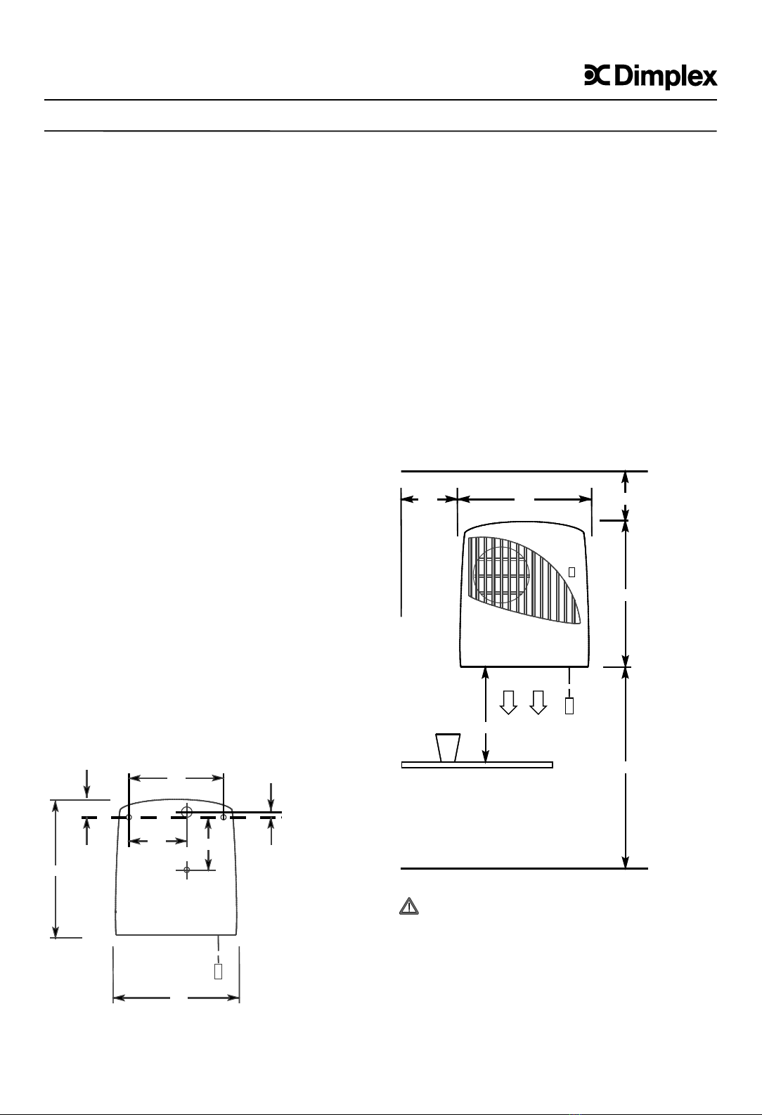
3. Minimum clearances, installation
The sketch below shows the drilling dimensions and the
dimensions for the cable entry.
229
188
116 100
12
242
30
• The minimum clearances given in the mounting sketch
are to be observed.
• The heater must not be located immediately below a
fixed socket outlet.
• Do not place easily combustible objects, such as
curtains or heat sensitive plastics, in the direct airflow
from the unit.
• The fan heater should only be mounted on a vertical
wall as shown in the sketch below.
• Furthermore there must be a clearance of at least 350
mm from the front of the heater.
To fix the heater, remove the two screws securing the top
cover and remove the cover from the heater.
− Mark the position of the keyhole slots on the wall, drill
and plug for the two suitable screws (see sketch for
position).
− Partially insert the two screws, then hang the appliance
on these screws and mark the position of the lower
positioned screw.
− Remove the appliance, drill and plug the third screw.
− Remount the appliance on the wall and insert the supply
cable. Ensure that the appliance is horizontal and fix in
position by tightening the three screws.
1800
300
250
600
242
229
4. Electrical connection
Take care! The appliance must be installed by a
competent electrician.
The appliance may be connected directly to a fixed wiring or
to a flexible supply cable H05VV-F 2 x 1.0 mm² from a wall
connecting box.
The heater must not be located immediately above the wall
connecting box.
GB