
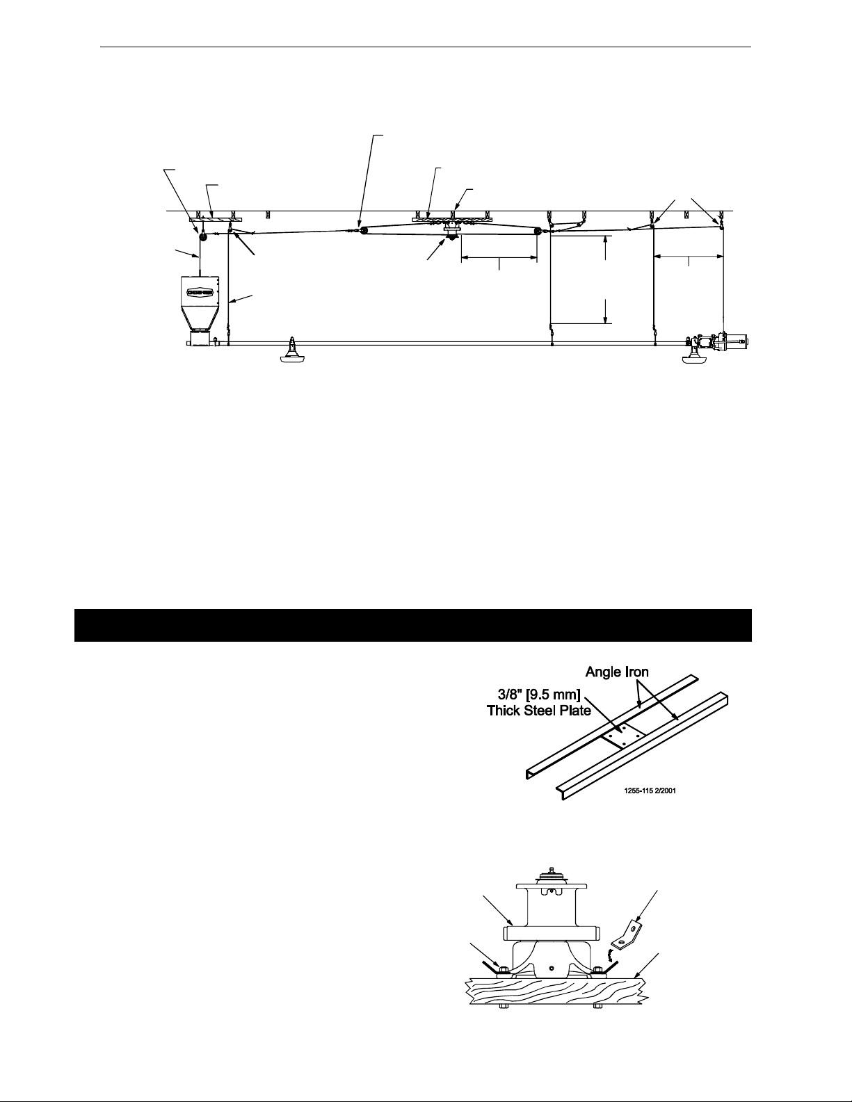
2
Model H2™ Plus Feeding Systems
Chore-Time Warranty
LIMITED WARRANTY
CTB, Inc. (“Chore-Time”) warrants each new CHORE-TIME Product manufactured by Chore-Time to be free from
defects in material or workmanship under normal usage and conditions, for One (1) year from the date of installation
by the original purchaser (“Warranty”). Chore-Time provides for an extension of the aforementioned Warranty
period (“Extended Warranty Period”) with respect to certain Product parts. If such a defect is determined by Chore-
Time to exist within the applicable period, Chore-Time will, at its option, (a) repair the Product or Component Part
free of charge, F.O.B. the factory of manufacture or (b) replace the Product or Component Part free of charge, F.O.B.
the factory of manufacture. This Warranty is not transferable, and applies only to the original purchaser of the
Product.
CONDITIONS AND LIMITATIONS
THIS WARRANTY CONSTITUTES CHORE-TIME’S ENTIRE AND SOLE WARRANTY AND CHORE-TIME
EXPRESSLY DISCLAIMS ANY AND ALL OTHER WARRANTIES, INCLUDING, BUT NOT LIMITED TO,
EXPRESS AND IMPLIED WARRANTIES, INCLUDING, WITHOUT LIMITATION, WARRANTIES AS TO
MERCHANTABILITY OR FITNESS FOR PARTICULAR PURPOSES. CHORE-TIME shall not be liable for any
direct, indirect, incidental, consequential or special damages which any purchaser may suffer or claim to suffer as a
result of any defect in the Product. Consequential or Special Damages as used herein include, but are not limited to,
lost or damaged products or goods, costs of transportation, lost sales, lost orders, lost income, increased overhead,
labor and incidental costs, and operational inefficiencies. Some jurisdictions prohibit limitations on implied
warranties and/or the exclusion or limitation of such damages, so these limitations and exclusions may not apply to
you. This warranty gives the original purchaser specific legal rights. You may also have other rights based upon your
specific jurisdiction.
Compliance with federal, state and local rules which apply to the location, installation and use of the Product are the
responsibility of the original purchaser, and CHORE-TIME shall not be liable for any damages which may result
from non-compliance with such rules.
The following circumstances shall render this Warranty void:
· Modifications made to the Product not specifically delineated in the Product manual.
· Product not installed and/or operated in accordance with the instructions published by the CHORE-TIME.
· All components of the Product are not original equipment supplied by CHORE-TIME.
· Product was not purchased from and/or installed by a CHORE-TIME authorized distributor or certified
representative.
· Product experienced malfunction or failure resulting from misuse, abuse, mismanagement, negligence,
alteration, accident, or lack of proper maintenance, or from lightning strikes, electrical power surges or
interruption of electricity.
· Product experienced corrosion, material deterioration and/or equipment malfunction caused by or consistent
with the application of chemicals, minerals, sediments or other foreign elements.
· Product was used for any purpose other than for the care of poultry and livestock.
·
The Warranty and Extended Warranty may only be modified in
writing by an officer of CHORE-TIME. CHORE-TIME shall have
no obligation or responsibility for any representations or warranties
made by or on behalf of any distributor, dealer, agent or certified
representative.