
Installation Guide
RDM-2DC Dual DC Dimmer Module 1920W, 0-10 VDC (x2)
For full warranty information, refer to the AMX Instruction Manual(s) associated with your Product(s).
7/08
©2008 AMX. All rights reserved. AMX and the AMX logo are registered trademarks of AMX.
AMX reserves the right to alter specifications without notice at any time.
3000 RESEARCH DRIVE, RICHARDSON, TX 75082 • 800.222.0193 • fax 469.624.7153 • technical support 800.932.6993 • www.amx.com
93-606-61 REV: A
The RDM-2DC Dual DC Module (FG606-61) is a 1920 W module used for the
dimming of fluorescent ballast loads. It uses a 0 to 10 VDC current sinking for
use with four-wire ballasts. It is designed for use with the RDA series of
enclosures, in an AMX Lighting™ modular digital dimming system. The module’s
120 and 277 VAC ratings are CE, UL, and C-UL approved.
RDM-2DC UL and C-UL Ratings
• 120 VAC, 50/60 Hz, 1920 W
• 277 VAC, 50/60 Hz, 1920 W
• Control Out: 50 mA, 12 VDC sinking
Suggested Dimmed Loads
• Four-wire dimmable ballasts, like Advance Transformer Mark VII™ or the
Energy Savings SuperDim™ series
Specifications
• Dimensions (HW): 10" x 2.75" (25.4 cm x 6.99 cm)
• Non-phase dependant
• Use wires rated at 75°C (167°F)
• Torque terminals to 20 in-lbs. (2.3 N/M)
• Max. wire size: 10 AWG (4 mm²)
• Wire stripping length: 0.28" (7 mm)
• Weight: 2.6 lbs. (1.180 kg)
• BTU/hr: 150
• Control current: 125 mA @ 12 VDC per control port
Caution: Pre-Installation Notes
• All Class 1 wiring must be connected to proper terminals.
• All control wiring must be connected to proper terminals.
• Disconnect power while installing or connecting the unit.
• Keep top and bottom air vents clear at all times.
• Use low-voltage wires with a 300 volt rating or greater.
• Use field installed copper conductors.
• All electrical ratings are for continuous duty.
• For indoor use only.
• Test loads for shorts before connecting.
• This module may require extra power from the AXlink connection or an
external power supply connected to the control card.
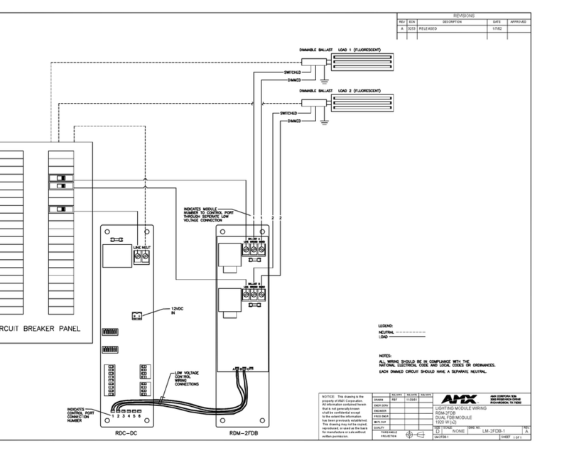
Connecting the RDM-2DC to the AMX Lighting Master
Lighting Application Drawings
Warning: Failure to ground the ballast may cause ballast failure
FIG. 1 RDM-2DC
Low-voltage control
wiring: 4-pin
Relay
+ out (LV)
- out (LV)
Line in
Load out High
Low-voltage
voltage
connector to AMX
Lighting master
controller
Mounting
points
+ out (LV)
- out (LV)
Line in
Load
High
Low
voltage
Relay
voltage
Fuses
out
FIG. 2 Connecting the RDM-2DC and AMX Lighting Master
FIG. 3 RDM-2DC application wiring
Pin 4 (GND)
Pin 3 (RLY)
Pin 2 (DIM)
Pin 1 (+12 V)
RDM-2DC 4-pin module connector
1 (+)
2 (DIM)
3 (-)
GND
4-pin plug from RDM series module
Note: The 4-pin plugs from the module connector to the 4-pin
connector on the master (black plug cover facing up).
Ballast
Florescent
Neutral
Line in (HOT)
Load
Neutral
+
-
Circuit breaker
panel
Ballast
The fuses protect the dimming
circuit from a low impedance load.
• The fuse will blow if it were
incorrectly wired
• Catastrophic ballast failure
• Reversing switched and
dimmed circuits
• Reversing dimmed and
line circuits.
The dimmed output must be
connected to a high impedance
load.