VTS Medical Systems VOLCANO Manual de usuario

VTS PLANT SP Z.O.O.
Al. Grunwaldzka 472 A
80-309 Gdańsk, Poland
POTENCJOMETR 0-10 V Z TERMOSTATEM 0-30 OC/ POTENTIOMETER 0-10V WITH THERMOSTAT 5-30 OC/ ПОТЕНЦИОМЕТР 0-10В С ТЕРМОСТАТОМ 5-30 OC/
DANE TECHNICZNE
TECHNICAL DATA
Технчиеская информация
Zakres zastosowań
Uniwersalny zadajnik dla nagrzewnic
VOLCANO i kurtyn DR oraz WING
Range of applications
Universal controller for VOLCANO heaters
and DR and WING curtains
Сфера применения
Универсальный контроллер для
воздушно-отопительных
агрегатов VOLCANO, DR и
воздушных завес WING
Zasilanie
230V AC ±10% / 50Hz
Power supply
230V AC ±10% / 50Hz
Параметры питания
230ВAC ±10% / 50Гц
Obsługa
Pokrętło potencjometru wyjścia
analogowego Pokrętło potencjometru
termostatu
Trzypozycyjny przełącznik funkcji:
A-obsługa wyjścia
analogowego,
0-wyłączenie wyjścia,
A+T-obsługa wyjścia
analogowego
w funkcji termostatu
Support
Analog output potentiometer knob
Thermostat potentiometer knob
Three-position function switch:
A –analog output support,
0-output deactivation,
A+T-support for analog output
in the thermostat function
Управление
Вращающаяся ручка аналогового
выхода потенциометра
Вращающаяся ручка управления
термостатом
Трехпозиционный
переключатель:
A –Выдача
аналогового сигнала
(работает),
0 –Выключен,
A+T- Поддержка
работы в режиме
управления
термостатом
Wyjściowy sygnał
sterujący
Analogowy 0-10V
Output steering signal
Analog 0-10V
Выходной управляющий
сигнал
Аналоговый 0-10В
Obciążenie wyjścia
10mA analog
Output load
10mA analog
Выходной управляющий
сигнал
Сила тока выходного сигнала
Zakres regulacji wyjścia
0…100%
Output regulation range
0…100%
Диапазон регулирования
0…100%
0…100%
Zakres regulacji
termostatu
5→30oC
Thermostat regulation
range
5→30oC
Диапазон регулирования
термостата
5→30oC
5→30oC
Wyposazenie
dodatkowe
Możliwość podłączenia zewnętrznego
czujnika NTC β3435K
Additional equipment
Possibility to connect external NTC β3435K
sensor
Дополнительное
оборудования
Возможность подключение
внешнего датчика температуры
типа NTC p3435K
Zakres temperatury
pracy
0…60oC
Working temperature
range
0…60oC
Диапазон рабочих
температур
0…60oC
0…60oC
Klasa ochrony
IP 30 (wyłącznie do użytku
wewnętrznego)
Protection class
IP 30 (only for internal use)
Класс защиты от
проникновения
IP 30 (Только для использования
внутри помещений)
Montaź
Naśnienny/powierzchniowy
Instalation
Wall/surface
Место установка
Стена/повехность
Materiał obudowy
ABS
Housing material
ABS
Материал корпуса
ABS
ABS

OPIS PRZYŁACZY/ DESCRIPTION AND CONECTION/ ОПИСАНИЕ И СОЕДИНЕНИЯ/
Urządzenie służy do ręcznego oraz automatycznego sterowania
prędkością obrotową wentylatorów w urządzeniach grzewczych, takich
jak nagrzewnice i kurtyny powietrzne, wyposażonych z odpowiedni
kontroler, przystosowany do tego typu sygnału sterującego. Jest zasilane
napięciem 230V AC, dlatego obudowa musi być zamknięta
i zabezpieczona.
The device is used for manual and automatic control of rotational
speed of fans in heating devices, such as heaters and air curtain,
equipped with a suitable controller, adapted to this type of control
signal. It is powered by 230V AC, therefore the housing must be
closed and secured.
Устройство используется для ручного и автоматического
управление скоростью вращения вентиляторов воздушно-
отопительных агрегатов и воздушных завес, оснащенных
соответствующим регулятором и адаптированных для
управления указанным типом управляющего
сигнала. Электроснабжение устройства существляется от сети
переменного тока, напряжением 230 В, в силу чего корпус
должен быть закрыт и защищен.
1. Montaż urządzenia/ Instalation of the device/ Установка устройства/
Przed przystąpieniem do montażu urządzenia należy zdemontować
podstawę obudowy. Przewody zasilające, sygnałowe oraz zewnętrznego
czujnika NTC (opcja) należy przeprowadzić przez otwór w środkowej
części podstawy urządzenia powstały poprzez wyłamanie odpowiedniego
elementu wzdłuż perforacji a następnie zamocować podstawę za pomocą
wkrętów do podłoża lub instalacyjnej puszki podtynkowej Ø60 (1).
Przewody o żyle drutowej należy odizolować na długości 10 mm
a przewody o żyle wielodrutowej (linka) zakończyć końcówką tulejkową
o długości 10 mm. Przewody wsunąć w odpowiednie złącza
samozaciskowe aż do momentu zablokowania zacisku bez uprzedniego
demontowania płytki elektroniki z obudowy urządzenia. Po podłączeniu
przewodów urządzenie należy umieścić w zamontowanej podstawie
i zatrzasnąć w uchwytach (2)
Before installing the device, the housing base must be removed.
Power supply and signal cables of the NTC sensor (optional) should
be led through hole in the middle part of the device base formed
by breaking an appropriate element along the perforation and
then fasten the base with screws to the floor of installation box
060 (1). Cables with a wire conductor should be insulated on
a length of 10 mm and cables with a multi-wire conductor (strand)
should be terminated with a 10 mm sleeve end. Insert cables into
the appropriate joints until the terminal is clamped without first
removing the electronics board from the device’s housing. After
connecting the cables, the device should be placed in the mounted
base and spanned into holders (2).
Перед установкой устройства необходимо снять основание
корпуса. Кабели электропитания и внешнего датчика
температуры NTC (опционного) должны быть введены через
отверстие в средней части основания прибора. Отверстие
формируется в основании путем выдавливания соотвествующего
пластикого элемента вдоль линии перфорации. После чего
основание корпуса устройства крепится к площадке монтажной
коробки 060 с помощью винтов(1). Кабели с проложенными
проводами должны быть изолированы по длине на 10 мм, так же
многожильные кабели должны должны быть изолированы по
длине на 10 мм. Вставьте кабели в соответствующие соединения
до тех пор, пока клемма не будет зажата без предварительного
извлечения платы электроники из корпуса устройства. После
подсоединения кабелей устройство следует поместить
в смонтированное основание и закрепить в держателях (2).
2)
1)

2. Demontaż urządzenia/ Disassambly of the device/ Разборка устройства
W celu zdemontowania urządzenia należy nacisnąć wypusty zatrzasków
zlokalizowane na dole obudowy po czym odchylić pokrywę i wysunąć ją
z uchwytów. W przypadku konieczności zdemontowania przewodów,
należy za pomocą płaskiego wkrętaka przycisnąć przycisk zwalniający
zacisk złącza i wysunąć odblokowaną końcówkę przewodu bez
uprzedniego demontażu płytki elektroniki z obudowy urządzenia. (3)
In order to disassemble the device, press latches located at the
bottom of the housing, then open the cover and pull it out from
holders. If it is necessary to dismantle the cables, use a flat
screwdriver to press the connector clamp and pull out the
unlocked cable end without first removing the electronics board
from the device’s housing. (3)
Чтобы разобрать устройство, нажмите на защелки,
расположенные в нижней части корпуса, затем откройте крышку
и вытащите ее из держателей. Если необходимо отсоединить
кабели, то используйте плоскую отвертку для того чтобы нажать
на зажим разъема и вытянуть от туда конец кабеля без
извлечения электрической платы из корпуса устройства. (3)
3. Tryby pracy/ Working mode/ Рабочий режим
Celem wyboru trybu pracy należy ustawić przełącznik suwakowy
zlokalizowany w górnej części obudowy w jednej z trzech pozycji:
A -obsługa wyjścia analogowego,
0 -wyłączenie wyjścia,
A+T -obsługa wyjścia analogowego
w funkcji termostatu
In order to select the working mode, set the slide switch located in
the upper part of the housing in one of three positions:
A –analog output support,
0 –output deactivation,
A+T - support for analog output in the thermostat
function
Для выбора режима работы установите переключатель,
расположенный в верхней части корпуса, в одно из трех положений:
A –выдача аналогового сигнала (работает),
0 –выключен,
A+T –поддержка работы в режиме управления
термостатом.
UWAGA: URZĄDZENIE ZASILANE NAPIĘCIEM 230V AC, DLATEGO ZARÓWNO MONTAŻ JAK I DEMONTAŻ MOŻE BYĆ PRZEPROWADZANY WYŁĄCZNIE POPRZEZ OSOBY POSIADAJĄCE
ODPOWIEDNIE UPRAWNIENIA!/ NOTE: THE DEVICE IS POWERED BY 230V AC, SO BOTH ASSEMBLY AND DISASSEMBLY MAY BE CARRIED OUT ONLY THROUGH PERSONS WITH ADEQUATE
CERTIFICATES!/ВНИМАНИЕ: ЭЛЕКТРОСНАБЖЕНИЕ УСТРОЙСТВА ОСУЩЕСТВЛЯЕТСЯ ОТ СЕТИ ПЕРЕМЕННОГО ТОКА, НАПРЯЖЕНИЕМ 230 В. МОНТАЖ И ДЕМОНТАЖ УСТРОЙСТВА
МОЖЕТ ОСУЩЕСТВЛЯТЬСЯ ТОЛЬКО ПЕРСОНАЛОМ, ИМЕЮЩИМ СООТВЕТСВТУЮЩИЕ ДОПУСКИ И РАЗРЕШЕНИЯ.
3)
4)

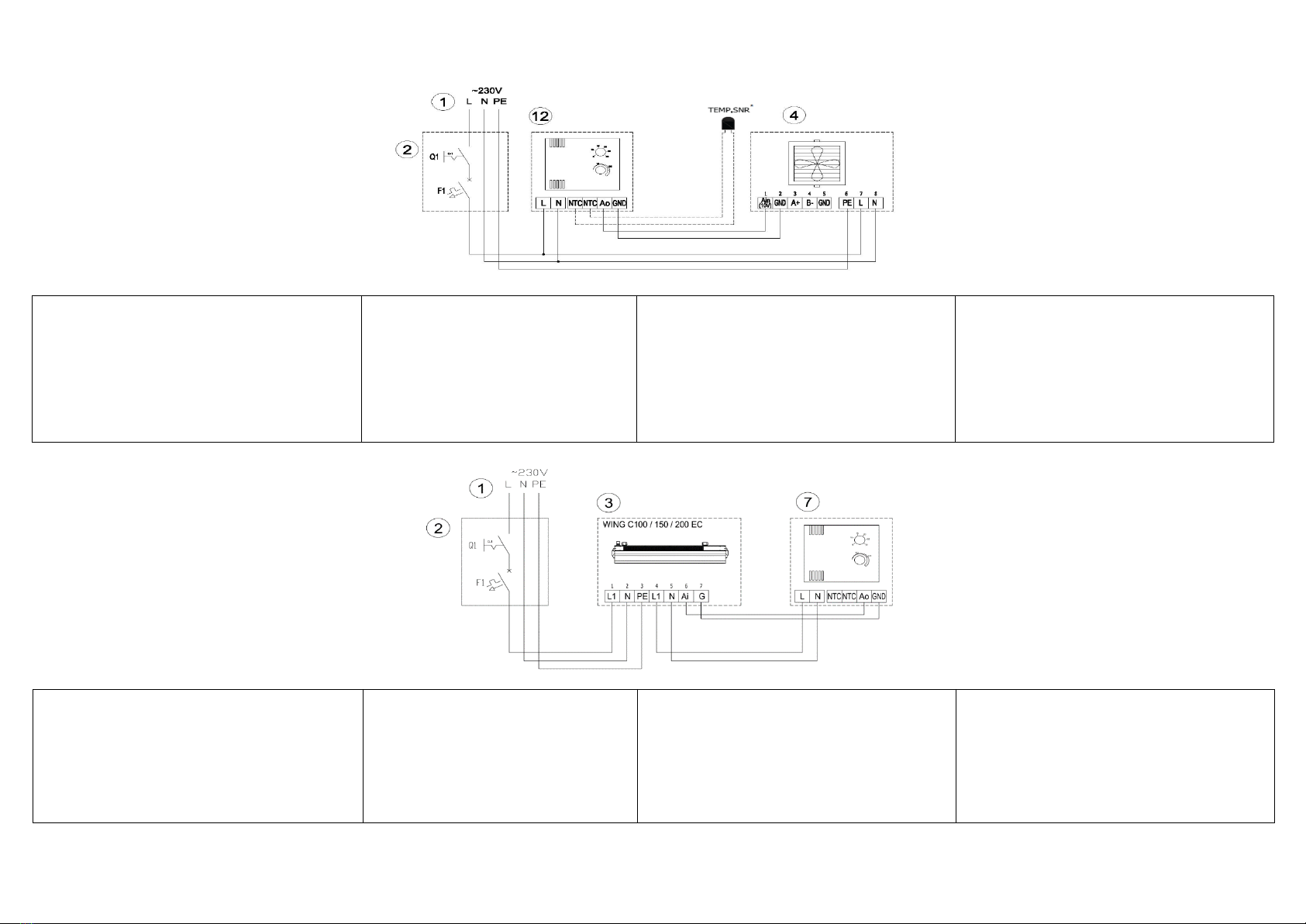
4. Schematy elektryczne/ Electrical diagrams/ Электрические схемы/
1 –zasilanie 230VAC 50 Hz*
2 –wyłącznik główny, bezpieczniki*
4 –nagrzewnica VOLCANO EC
12 –potencjometr z termostatem VR EC
* w skład urządzenia nie wchodzą: wyłącznik główny urządzenia,
bezpieczniki, kabel zasilający oraz czujniki temperatury
UWAGA! Rysunki elementów automatyki przedstawiają jedynie
wizualizacje przykładowych produktów.
1 –power supply 230VAC 50 Hz*
2 –main switch, fuses*
4 –air heater VOLCANO EC
12 –potentiometer with thermostat VR EC
* The device does not include: the main switch, fuses and
feeder cable and temperature sensors
CAUTION! The automatic elements drawings are only
a visualization of sample product
1 –Напряжение питания 230В AC 50 Гц*
2 –Главный выключатель, предохранители*
4 –Воздушно-отопительный агрегат VOLCANO EC
12 –потенциометр с термостатом VR EC
* В комплект поставки не включены : главный выключатель,
редохранители, кабели питания, выносные датчики
температуры
Внимание! Изображения элементов автоматики являются
только визуализацией аналогичного оборудования
1 –Stromversorgung 230VAC 50 Hz*
2 –Hauptschalter, Sicherungen*
4 –Erhitzer VOLCANO EC
12 –Potentiometer mit Thermostat VR EC
* Im Lieferumfang des Gerätes sind folgende Teile nicht enthalten:
Hauptschalter des Gerätes Sicherungen, Anschlusskabel und
Temperatursensor
ACHTUNG! Die Abbildungen der Leittechnik stellen lediglich eine
Visualisierung exemplarischer Produkte dar.
1 –zasilanie 230VAC 50 Hz*
2 –wyłącznik główny, bezpieczniki*
3 –kurtyna powietrzna Wing EC
7 –potencjometr z termostatem VR EC
* w skład urządzenia nie wchodzą: wyłącznik główny urządzenia,
bezpieczniki, kabel zasilający
UWAGA! Rysunki elementów automatyki przedstawiają jedynie
wizualizacje przykładowych produktów.
1 –power supply 230VAC 50 Hz*
2 –main switch, fuses*
3 –air curtain Wing EC
7 –potentiometer with thermostat VR EC
* The device does not include: the main switch, fuses and
feeder cable and temperature sensors
CAUTION! The automatic elements drawings are only
a visualization of sample product
1 –Напряжение питания 230В AC 50 Гц*
2 –Главный выключатель, предохранители*
3 –воздушная завеса WingEC
7 –потенциометр с термостатом VR EC
* В комплект поставки не включены : главный выключатель,
предохранители, кабели питания,
Внимание! Изображения элементов автоматики являются
только визуализацией аналогичного оборудования
1 –Stromversorgung 230VAC 50 Hz*
2 –Hauptschalter, Sicherungen*
3 –Luftschleier Wing EC
7 –Potentiometer mit Thermostat VR EC
* Im Lieferumfang des Gerätes sind folgende Teile nicht enthalten:
Hauptschalter des Gerätes Sicherungen, Anschlusskabel
ACHTUNG! Die Abbildungen der Leittechnik stellen lediglich eine
Visualisierung exemplarischer Produkte dar.

1 –zasilanie 230VAC 50 Hz*
2 –wyłącznik główny, bezpieczniki*
3 –kurtyna powietrzna Wing EC
7 –potencjometr z termostatem VR EC
* w skład urządzenia nie wchodzą: wyłącznik główny urządzenia,
bezpieczniki, kabel zasilający
UWAGA! Rysunki elementów automatyki przedstawiają jedynie
wizualizacje przykładowych produktów.
1 –power supply 230VAC 50 Hz*
2 –main switch, fuses*
3 –air curtain Wing EC
7 –potentiometer with thermostat VR EC
* The device does not include: the main switch, fuses and
feeder cable and temperature sensors
CAUTION! The automatic elements drawings are only
a visualization of sample product
1 –Напряжение питания 230В AC 50 Гц*
2 –Главный выключатель, предохранители*
3 –воздушная завеса WingEC
7 –потенциометр с термостатом VR EC
* В комплект поставки не включены : главный выключатель,
предохранители, кабели питания,
Внимание! Изображения элементов автоматики являются
только визуализацией аналогичного оборудования
1 –Stromversorgung 230VAC 50 Hz*
2 –Hauptschalter, Sicherungen*
3 –Luftschleier Wing EC
7 –Potentiometer mit Thermostat VR EC
* Im Lieferumfang des Gerätes sind folgende Teile nicht enthalten:
Hauptschalter des Gerätes Sicherungen, Anschlusskabel
ACHTUNG! Die Abbildungen der Leittechnik stellen lediglich eine
Visualisierung exemplarischer Produkte dar.
Otros manuales de Controladores de VTS Medical Systems



















