
Page 1 of 11
TDK-Lambda
DBM20
INSTRUCTION MANUAL
PA640-04-01B
D
20
nstruction
anual
BEFORE USING THE PRODUCT
Be sure to read this instruction manual thoroughly before using this product. Pay attention to all cautions and warnings before using this product. Incorrect usage
may lead to an electrical shock, damage to the unit or a fire hazard.
DANGER
Never use this product in locations where flammable gas or ignitable substances are present.
DANGER
Ne jamais utiliser ce produit en présence de substances inflammables ou explosives.
INSTALLATION WARNING
When installing, ensure that work is done in accordance with the instruction manual. When installation is improper, there is risk of electric shock and fire.
Installation shall be done by service personnel with necessary and appropriate technical training and experience. There is a risk of electric shock and fire.
Do not cover the product with cloth paper or etc. Do not place anything flammable around. This might cause damage, electric shock or fire.
WARNING ON USE
Do not touch this product or its internal components while circuit in operation, or shortly after shutdown. You may receive a burn.
While this product is operating, keep your hands and face away from it as you may be injured by an unexpected situation.
There are cases where high residual voltage remains inside the product. Therefore, do not touch even if they are not in operation as you may get injured due to
high voltage and high temperature. You may also get electric shock or burn.
Do not make unauthorized changes to this product nor remove the cover as you may get an electric shock or may damage the product. We will not be held
responsible after the product has been modified, changed or disassembled.
Do not use this product under unusual condition such as emission of smoke or abnormal smell and sound etc. Please stop using it immediately and turn off the
product. It may lead to fire and electric shock. In such cases, please contact us. Do not attempt to repair, as it is dangerous for the user.
Do not operate and store these products in environments where condensation occurs due to moisture and humidity. It may lead to fire or electric shock.
Do not drop or apply shock to this product. It may cause failure. Do not operate these products when mechanical stress is applied.
PRECAUTIONS D’USAGE
Ne pas toucher ce produit ou l’un de ses composants internes pendant qu’il est sous tension, ou peu après la mise hors tension. Vous pourriez vous brûler.
Ne pas modifier ce produit sans autorisation ni retirer son capot, vous pourriez recevoir une décharge électrique
ou endommager le produit. Nous ne saurions être tenus responsables après que le produit ait été modifié, changé
ou démonté.
Ne pas utiliser ce produit dans des conditions anormales comme la présence de fumées ou d’odeurs inhabituelles ou de bruits suspects etc. Merci d’arrêter
l’utilisation immédiatement et d’éteindre le produit. Il pourrait se produire un feu ou un choc électrique. Dans de tels cas, merci de nous contacter. Ne pas
essayer de réparer le produit, c’est dangereux pour l’utilisateur.
Ne pas utilizer oustocker le produit dans un environnement exposé à la condensation ou à l’humidité Cela peut provoquer un feu ou un choc électrique.
CAUTION ON MOUNTING
Follow connections to input/output terminals indicated in the instruction manual before switching on.
Input/output wires are to be short and thick as possible.
Do not use this product in special environment with strong electromagnetic field, corrosive gas or conductive substances and direct sunlight, or places where
product is exposed to water or rain.
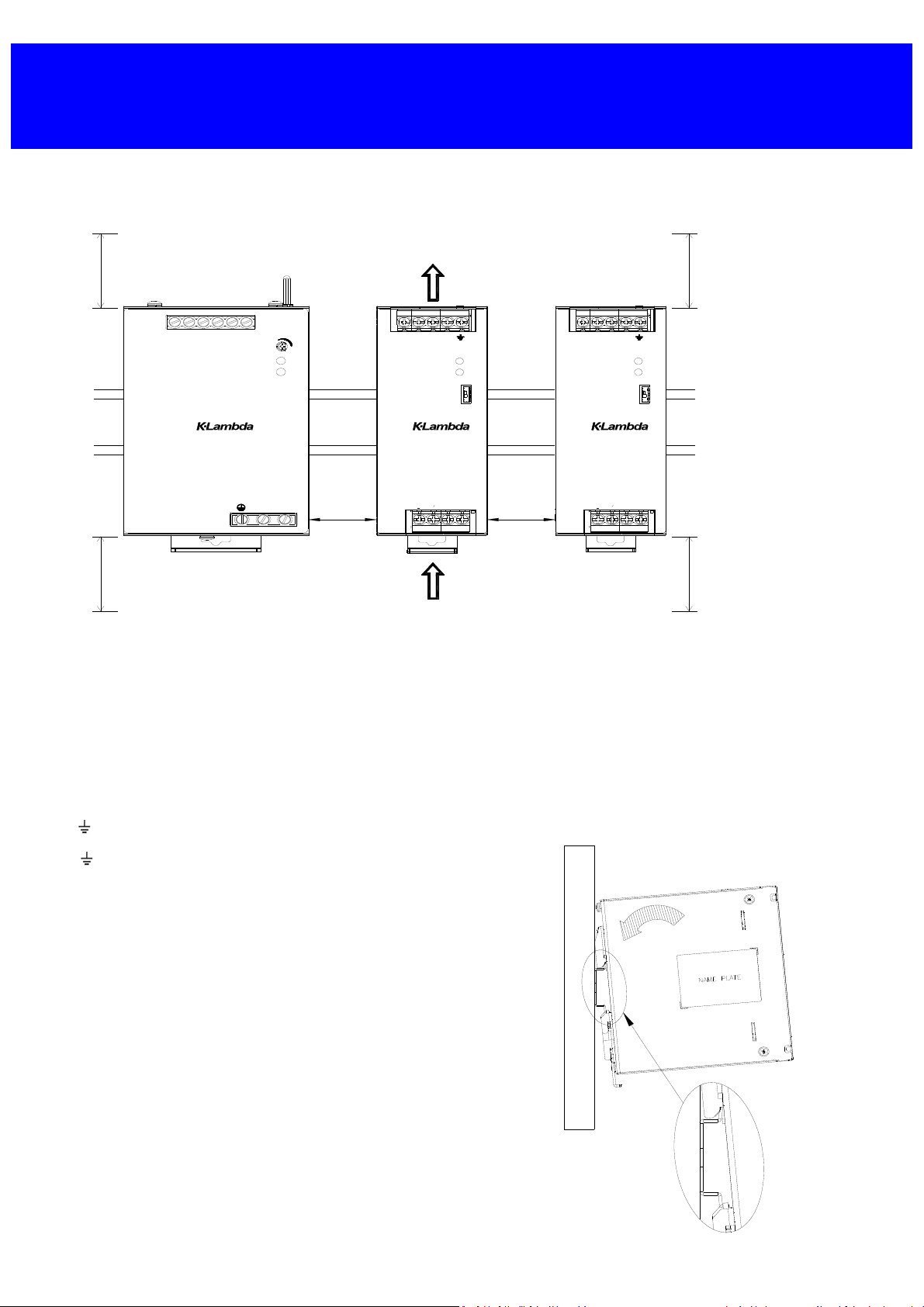
Mount this product properly in accordance with the instruction manual, mounting direction and shall be properly ventilated.
Please turn off the input power when doing wiring to connect to the input/output of the product.
When installing in environment where conductive foreign, dust and liquid may be present, please consider penetration and take actions to prevent the above
foreign material from entering the buffer module by installing filter. In order to prevent trouble or malfunction.
CAUTION ON USE
Product individual notes are shown in the instruction manual. If there is any difference with common notes, individual notes shall have priority.
Before using this product, be sure to read the catalog and instruction manual. There is risk of electric shock or damage to the product or fire due to improper
use.
Input voltage, Buffer current, Buffer power, ambient temperature and ambient humidity should be kept within specifications, otherwise the product will be
damaged, or cause electric shock or fire.
If the built-in fuse is blown, do not use the product even after replacing the fuse, as there is risk of abnormality inside. Kindly request repair to our company.
This product with built-in protection circuit, depending on usage conditions, built-in protection circuit may not work. It is recommended to provide a separate
protection circuit (element, fuse, etc.), insert fuse at the input to prevent smoke, fire during abnormal operation.
This product is made for general purpose electronic equipment use and is not designed for applications requiring high safety (such as extremely high reliability
and safety requirements. Even though high reliability and safety are not required, this product should not be used directly for applications that have serious risk
for life and physical safety). Take sufficient consideration in fail-safe design (such as providing protective circuit or protective device inside the system).
When used in environments with strong electromagnetic field, there is possibility of product malfunction.