
Dimensions
HazardousVoltage.
Will cause death or severe
injury.
Turn power off supplying
device before installing.
Item: Cat. No. PC5777, PC5778, PC5660, and
PC5661 Plug in Adapters
For Use With: SIEMENS®JD, LD, JF, & LF
Frame Circuit Breakers, Molded Case Switches,
& Motor Circuit Interrupters. Types listed below.
Page 1 of 3
Pc. No. 61423A02
NOTE: These instructions outline the recommended in-
stallation procedure. The term circuit breaker used in
these instructions, also includes molded case switches
andmotor circuit interrupters.
1. Turnpower off supplying device before installing kit.
A complete installation requires two plug-in adapter as-
semblies. Each assembly consists of a mounting block,
tulipconnectorsandattachmenthardware. Thecomplete
assembly is attached to an optional switchboard mount-
ing plate (see table) or to other mounting means to suit
customerrequirements.
NOTE: Type CJD6, SCJD6, CLD6, and SCLD6 Current
LimitingCircuitBreakersrequireuseofaspecialendshield
assemblyfortheload side terminals. These shieldsmust
beorderedusingCatalog Number CLTCJL2for 2-Pole or
CLTCJL3for3-Pole.
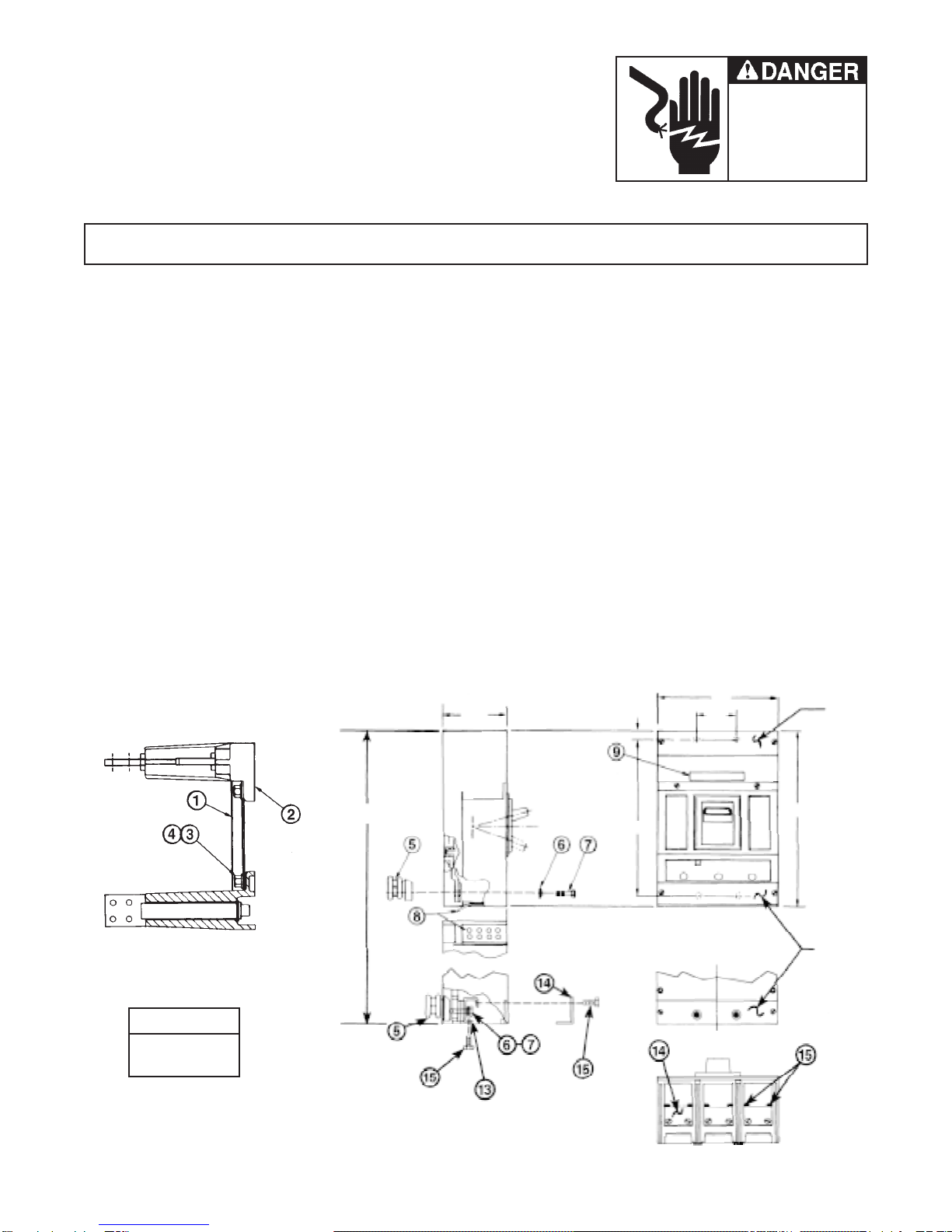
MOUNTING PREPARATION:(Fig.1 & 2)
2. If the switchboard plate (PL5796 or PL5697) is to be
used, provide mounting holes as shown in Fig. 1.
SAFETY INSTRUCTIONS
Siemens Energy & Automation, Inc.
Bellefontaine, OH 43311 U.S.A.
InstallationInstructions
.375[9.53]Dia.(4Holes)
Mounting Holes
For Plug-In Adapters
.344x.75
[8.73x19.0]
4Slots
Mounting Holes
For Switchboard
Mounting Pan Locations
of Terminal Studs
.375[9.53]Dia.
(4 Holes)
Mounting Holes
For Plug-In
Adapters
2.25
1.88
6.00
(1)
.50 1.75 2.50
1.125
2.50 2.50
1.75
1.75
1.25
1.25
1.18
[29.9]
R Typ.
1.125
Typ.
Breaker
Outline
Drilling Switchboard
Mounting Plate
Figure 1
Drilling and Cutouts
for Adapter Block
Figure 2
BREAKER TYPE A B C D MTG.PLATE
CAT. NO.
CJD6(-A),CLD6(-A),
CJD6(-A)ETI, 13.11 12.11 9.86 15.61 PL5797
CLD6(-A)ETI [333.0] [307.6] [250.4] [396.5]
All OtherTypes 6.25 5.25 3.00 8.75 PL5796
[158.8] [133.4] [76.2] [222.3]
CIRCUIT BREAKER NO.OF
TYPE POLES
JXD2(-A),JXD6(-A),JXD6(-A)ETI,HJXD6(-A),
HHJXD6,SJD6(-A),SHJD6(-A),JFC,JFF
LXD6(-A),LXD6(-A)ETI,HLXD6(-A),
HHLXD6(-A),SLD6(-A),SHLD6(-A),LFC,LFF
CJD6(-A),CJD6(-A)ETI,
SCJD6(-A),JDFP(-A)
CLD6(-A),CLD6(-A)ETI,
SCLD6(-A),LDFP(-A)
PLUG-IN
ADAPTER
CAT.NO.
SWITCH-
BOARD
MTG. PLATE
CAT. NO.
2 PC5777
3 PC5778
2 PC5660
3 PC5661
2 PC5777
3 PC5778
2 PC5660
3 PC5661
PL5796
PL5797
Inches
[Millimeters]
[152.4]
[57.2][47.7]
[63.5] [63.5]
[28.58]
[44.5]
[44.5]
[31.8] [31.8]
[28.58]
[63.5]
[44.5]
[12.7]
END
SHIELD
ASSEMBLY
CLTCJL2
CLTCJL3
CLTCJL2
CLTCJL3