
2
Operating instructions
Safety-monitoring module AES 2285
EN
1.6 Warning about misuse
In case of inadequate or improper use or manipulations of
the safety-monitoring module, personal hazards or damages
to machinery or plant components cannot be excluded.
The relevant requirements of the standards ISO 14119
and ISO 13850 must be observed.
1.7 Exclusion of liability
We shall accept no liability for damages and malfunctions resulting from
defective mounting or failure to comply with this operating instructions
manual. The manufacturer shall accept no liability for damages result-
ing from the use of unauthorised spare parts or accessories.
For safety reasons, invasive work on the device as well as arbitrary re-
pairs, conversions and modifications to the device are strictly forbidden;
the manufacturer shall accept no liability for damages resulting from
such invasive work, arbitrary repairs, conversions and/or modifications
to the device.
The safety-monitoring module must only be used when the enclosure is
closed, i.e. with the front cover fitted.
2. Product description
2.1 Ordering code
This operating instructions manual applies to the following types:
AES 2285
Only if the information described in this operating instructions
manual are realised correctly, the safety function and therefore
the compliance with the Machinery Directive is maintained.
2.2 Special versions
For special versions, which are not listed in the order code below 2.1,
these specifications apply accordingly, provided that they correspond to
the standard version.
2.3 Destination and use
The safety-monitoring module for integration in safety circuits is
designed for fitting in control cabinets. It is used for the safe evaluation
of the signals of positive break position switches for safety functions
or magnetic safety sensors on sliding, hinged and removable safety
guards as well as emergency stop control devices. Up to 6 safety
guards can be monitored by means of the AES 2285 safety-monitoring
module.
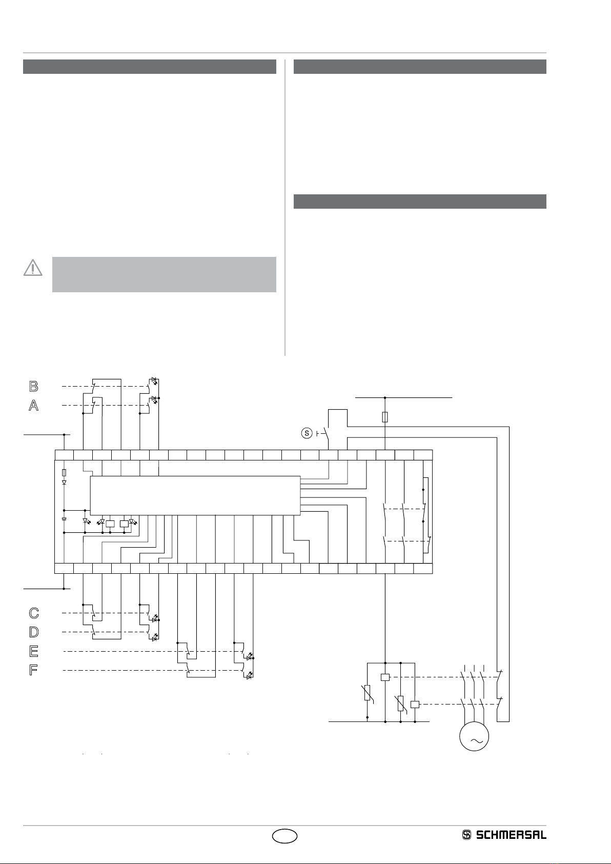
Design
The safety-monitoring module has a multichannel structure. It includes
safety relays with monitored positive action contacts. The NO contacts
of the relays, which are wired in series, build the enabling contacts.
6 signalling outputs signal the position of the corresponding safety guard.
The entire concept of the control system, in which the
safety component is integrated, must be validated to the
relevant standards.
2.4 Technical data
General data:
Standards: IEC 60204-1, IEC 60947-5-1, IEC 60947-5-3,
ISO 13849-1, IEC 61508,
BG-GS-ET-14, BG-GS-ET-20
Climate resistance: EN 60068-2-78
Mounting: snaps onto standard DIN rail to EN 60715
Terminal designations: IEC 60947-1
Material of the housings: Plastic, glass-fibre reinforced
thermoplastic, ventilated
Material of the contacts: AgCdO, self-cleaning, positive drive
Weight: 300 g
Start conditions: Automatic or start button
Feedback circuit (Y/N): yes
Pull-in delay for automatic start: typ. 120 ms
Pull-in delay with reset button: typ. 30 ms
Drop-out delay in case of emergency stop: typ. 20 ms / max. 35 ms
Drop-out delay on "supply failure": On request
Mechanical data:
Connection type: Screw connection
Cable section: min. 0.25 mm² / max. 2.5 mm²
Connecting cable: rigid or flexible
Tightening torque for the terminals: 0.6 Nm
With removable terminals (Y/N): yes
Mechanical life: 10 million operations
Electrical life: Derating curve available on request
Resistance to shock: 10 g / 11 ms
Resistance to vibrations
to EN 60068-2-6: 10 ... 55 Hz,
amplitude 0.35 mm
Ambient conditions:
Ambient temperature: – 25 °C … +45 °C
Storage and transport temperature: –40 °C … +85 °C
Protection class: Enclosure: IP40
Terminals: IP20
Clearance: IP54
Degree of pollution: 2
EMC rating: to EMC Directive
Electrical data:
Contact resistance in new state: max. 100 mΩ
Power consumption: max. 3.6 W / 6.6 VA
Rated operating voltage Ue:24 VDC –15%/+20%,
residual ripple max. 10%
Rated operating current Ie:0.125 A
Rated insulation voltage Ui:250 V
Rated impulse withstand voltage Uimp:4 kV
Thermal test current Ithe:6 A
Fuse rating for the operating voltage: F1: internal electronic trip,
tripping current > 1 A; reset after
disconnection of the supply voltage
Monitored inputs:
Cross-wire detection (Y/N): Yes
Wire breakage detection (Y/N): Yes
Earth leakage detection (Y/N): Yes
Number of NO contacts: 1 … 6
Number of NC contacts: 1 … 6
Cable length: 1,500 m with 1.5 mm²,
2,500 m with 2.5 mm²
Conduction resistance: max. 40 Ω
Outputs:
Number of safety contacts: 2
Number of auxiliary contacts: 1
Number of signalling outputs: 6