
Montage de la baignoire PLAY avec panneau plastique frontal
RAVAK a.s., Obecnická 285, 261 01 Pøíbram, ÈR tel.: 318 427 111, fax: 318 427 269
FR
Pour compléter la baignoire avec panneau, utilisez toutes les pièces du jeu de montage de base de la
baignoire, en ajoutant les accessoires du panneau dans les jeux PANEL et PANELKIT.
Pour installer la baignoire, appliquez entièrement les dispositions du point A du mode d'emploi
AMENAGEMENT DE CONSTRUCTION ainsi que du point B, complétées par les consignes suivantes:
Retournez la baignoire et placez aux angles les parties du carton de l'emballage avec polystyrène afin
de ne pas endommager le bord de la baignoire .
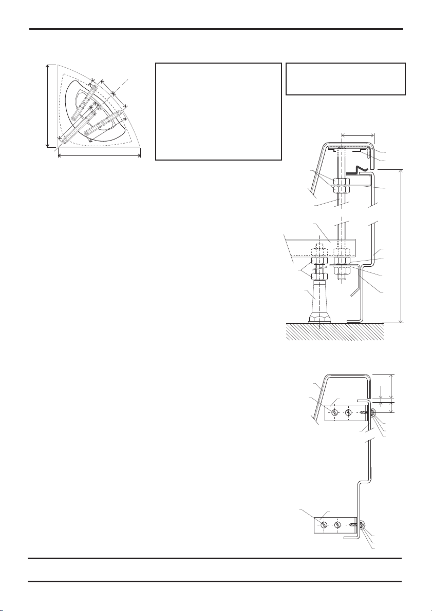
La baignoire avec panneau a 3 supports en tôle. Vissez, dans les ouvertures du bord des supports, près
du côté biseauté, les tiges filetées de 550 mm de longueur. De l'autre côté du support de 850 mm,
montez la tige filetée de 550 mm de longueur. Montez définitivement les pieds indépendants avec une
vis de 125 mm avant de fixer les supports. ATTENTION! Les supports métalliques sont universels et
peuvent avoir plus d'ouvertures. Pour les fixer à la baignoire, n'utilisez que les ouvertures Ø 6 mm près du
fond renforcé, les ouvertures Ø 12,5 mm pour les pieds et les tiges filetées d'après le dessin.
De l'autre côté des tiges filetées posez, entre deux écrous , la poignée du panneau . Ne
serrez pas à fond les écrous, laissez un peu de jeu pour la pose et le réglage.
Posez les supports équipés sur le fond renforcé de la baignoire et mettez-les en place. Dessinez la
position des supports sur le fond de la baignoire.
A l'aide du niveau à eau ou des équerres, mesurez la distance exacte de l'axe de l'ouverture du bord
dans le support et du contour de la baignoire et déplacez le support afin que le centre de l'ouverture de la
tige filetée longue se trouve à 40-45 mm du bord de la baignoire et la poignée du panneau à
environ 3 mm du bord extérieur de la baignoire.
Dessinez, sur le fond de la baignoire, les contours des ouvertures Ø 6 mm dans le support métallique.
Déposez les supports et forez, à l'aide du foret joint de Ø 3 mm, les ouvertures de fixation. ATTENTION ne
forez que dans la partie renforcée du fond de la baignoire, à l'aide d'une butée et à 10 mm de profondeur,
afin de ne pas endommager le plastique du fond de la baignoire.
Posez de nouveau les supports et vissez-les à l'aide des vis . Nous vous recommandons de mastiquer
les bords des supports en contact avec la baignoire.
Réglez la position de la tige filetée avec la poignée , reportez au crayon la position de l'appui sur
la baignoire. Appliquez, à l'endroit marqué, une quantité suffisante de mastic dans le rebord de la
baignoire sous l'appui . Resserrez les écrous sur le support avec une légère précontrainte de
façon à ne pas déformer le bord supérieur de la baignoire.
Régler la poignée du panneau en hauteur, afin que le panneau inséré se trouve immédiatement
sous le bord de l'arête de la baignoire et copie par la forme le contour extérieur. Pour stabiliser la partie
inférieur du panneau, placer, sous le support, la poignée avec la cale et fixez par l'écrou
(.
Placez la baignoire à l'endroit définitif et réglez, à l'aide d'un niveau à eau, sa position horizontale.
ATTENTION: pour la baignoire avec panneau, mesurez une distance de 577 mm du sol à l'arête de la
baignoire.
Insérez le panneau dans les poignées sur la baignoire et équilibrez. Dessinez la forme du panneau sur
le sol et sur les cloisons latérales. Vérifiez la fonction des appuis dans la partie inférieure du panneau.
Après avoir enlevé le panneau, adaptez la position de l'appui , vérifiez et fixez la position des pieds
ainsi que des poignées du panneau .
Dessinez sur les cloisons le bord supérieur de la baignoire et vissez les attaches du rebord de la
baignoire d'après le Mode de montage sur la baignoire, point 16.
Pour fixer le panneau aux cloisons, on utilisera deux poignées pour le bord gauche et deux pour le
bord droit de la baignoire. Appliquez, à l'endroit choisi, la poignée au contour dessiné du panneau.
Déplacez la poignée du panneau vers le dessous de la baignoire d'une épaisseur du panneau, c'est-à-dire
3 ou 4 mm du contour du panneau; dessinez sur la cloison les centres des ouvertures ovales de fixation.
Dans les centres marqués, forez des ouvertures de Ø 8 mm, insérez les chevilles et vissez les
poignées du panneau à l'aide des vis . Marquez les axes des poignées sur le contour du panneau
sur la cloison.
Montez, sur la baignoire, l'ensemble d'écoulement. Afin de faciliter l'insonorisation, nous vous
recommandons de coller, sur les parois de la baignoire adhérentes aux cloisons, une bande de mousse
d'environ 10x6 mm.
Remettez la baignoire à sa place définitive et accrochez les attaches plastiques conformément au
Mode de montage de la baignoire. Insérez le panneau frontal dans les poignées et équilibrez. Dans les
emplacements des poignées latérales , marquez sur le panneau les centres d'ouvertures des fixations
(au centre de la tôle à trous).
A l'aide du foret Ø 3 mm, forez le panneau en même temps que la tôle à trous. ATTENTION de ne pas
endommager le panneau plastique avec le mandrin de la perceuse. ! Fixez le panneau avec le goujon
et la cale plastique , placez le cache plastique sur la tête de la vis. .
Au besoin, il est possible de mastiquer les fentes entre le panneau et le carrelage, éventuellement
même les fentes horizontales. Après avoir appliqué le mastic entre la baignoire et le carrelage ou,
éventuellement, après la pose des baguettes de baignoire, nous vous recommandons de faire couler,
dans la baignoire, environ 100 litres d'eau et les laisser ainsi jusqu'au lendemain jusqu'au durcissement
du mastic.
1.
2.
101 1
4
3. 101 102 104
4.
5.
101 104
6.
7. 7
8. 104 103
103 102
9. 104
105 106 102
dessin n° 2)
10.
11.
105
12. 105
6 104
13.
9
14. 107
107
108
107 109
15.
16.
51
107
17.
110
52 53 Dessin n° 3
18.
Méthode de montage
dessin 1n°
102
101
1, 2
51
104
SILIKON
103
102
106
105
6
5
dessin 2n°
13÷
4060
110
53
52
51
107
108, 109
108, 109 107
110
53
52
Rebord de la
baignoire
dessin 3n°
101. Tige filetée M12x550mm
102. Ecrou M12
103. Appui de la tige filetée n°17
104. Poignée du panneau n°15
105. Poignée du panneau n°10
106. Cale Ø 13
107. Panneau latérale
108. Cheville Ø 8
109. Vis pour chevilles Ø 4x40
110. Goujon Ø 3,5x13
52. Cale plastique Ø 4
53. Cache plastique Ø 4
70°
JEU DE MONTAGE - PANEL
51. Panneau Play 160x160 1 unité
2 unités
10 unités
2 unités
2 unités
2 unités
2 unités
4 unités
8 unités
8 unités
4 unités
4 unités
4 unités
JEU DE MONTAGE PANELKIT
1600
1600
800
850150
45
450450
40 - 45
575 - 577