
LIBRETTO ISTRUZIONI - INSTRUCTION MANUAL
5
6.6-Uscita CH2 monostabile/ bistabile-CH2 output monostable / bistable:
il ricevitore viene fornito con le uscite CH1 e CH2 impostate come monostabili per portare l’uscita CH2 come bistabile seguire la seguente
procedura-the receiver as defaut with the outputs CH1 and CH2 set as to bring the monostable bistable output CH2, as the following
procedure
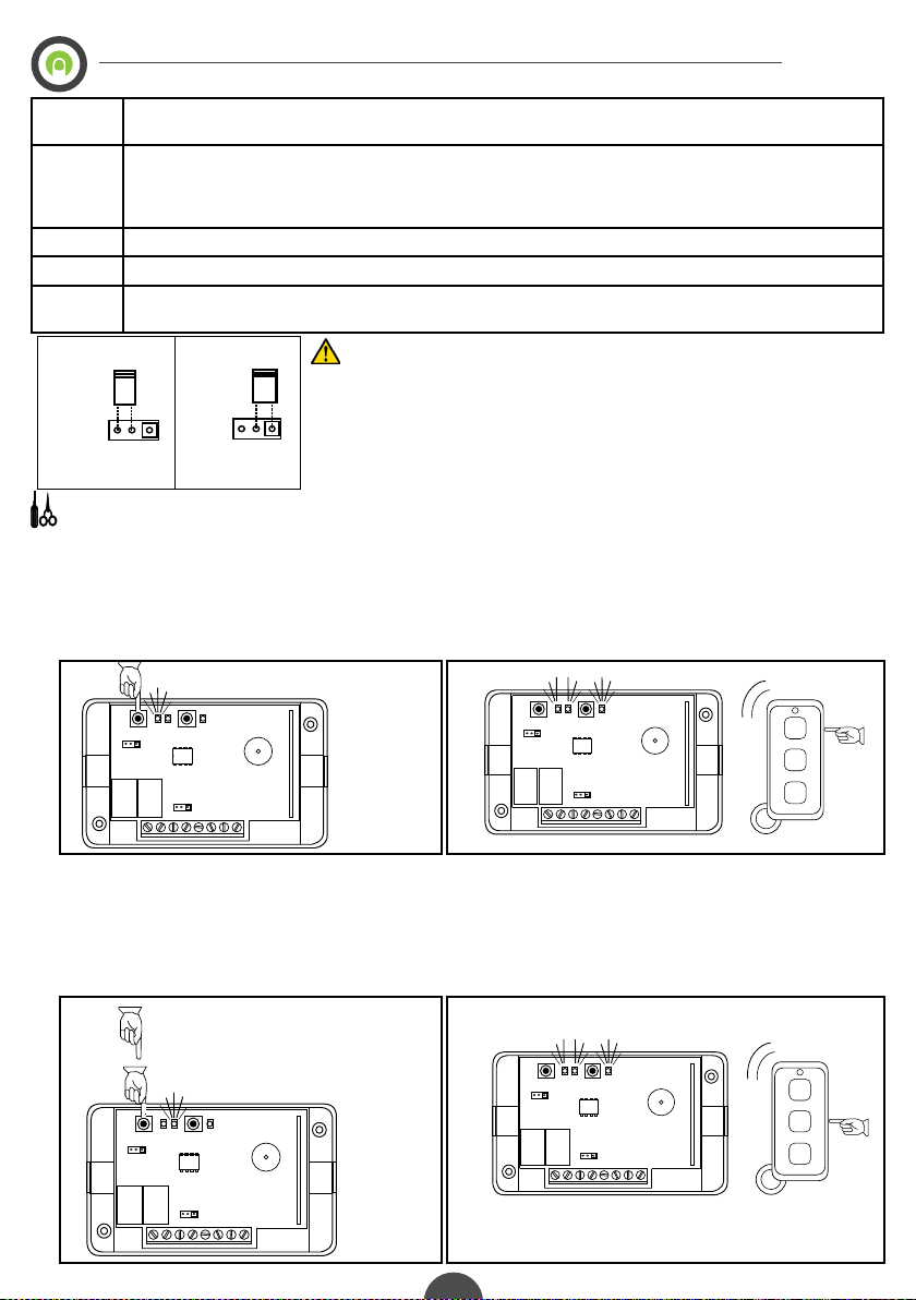
a-premere e rilasciare il tasto P1 per 2 volte, il led CH2 inizia lampeggiare-press and release the button P1 two times, the CH2 LED starts
ashing
b-premere e tenere premuto il tasto P2 no quando il led DL3 si accende-press and hold the button P2, until when the LED is lights DL3
A ogni volta che si preme il tasto del radiocomando memorizzato su l’uscita CH2, commuta lo stato di questa uscita.
When you press the button on the remote control stored on the output CH2, toggles the state of this output
Per ritornare con il funzionamento monostabile del canale CH2, ripetere la procedura descritta, con la dierenza che nel punto b il led
DL3 anzichè accendersi si spegne (DL3 spento= monostabile/ DL3 acceso= bistabile)
To return to the monostable operation of the channel CH2, repeat the procedure described above, with the dierence that the point b
instead turn on the LED DL3 turns o (DL3 o = monostable / DL3 on = bistable)
P1=MEMO P2=DELETE/SETUP
JP1
REMOTE
MEMO ON
ONLY
FIRST TX
POWER
JP2
24V 12V
P1=MEMO P2=DELETE/SETUP
JP1
REMOTE
MEMO ON
ONLY
FIRST TX
POWER
JP2
24V 12V
6.7-Radiocomando MASTER per entrare in memorizzazione-MASTER radio remote control to enter the storage:
inserendo il jumper JP1 in posizione 1 si attiva la funzione radiocomando MASTER-Inserting the jumper JP1 in position 1 enables the
function radio control MASTER.
Il primo radiocomando memorizzato può essere utilizzato per entrare in modalità apprendimento di un nuovo radiocomando seguen-
do la procedura descritta-e rst remote control learned can be used to enter the learning mode of a new radio control following the
procedure described:
-premere contemporaneamente i 3 tasti del primo radiocomando memorizzato, i led CH1 e CH2 lampeggiano e il buzzer suona velo-
cemente-simultaneously press the 3 buttons on the rst transmitter stored, CH1 and CH2 LEDs will ash and the buzzer sounds fast
-entro 30 secondi premere il tasto del radiocomando MASTER che comanda l’uscita a cui si indente memorizzare il nuovo radiocomando
il buzzer suona lentamente e lampeggia il led corrispondente all’uscita selezionata-within 30 seconds, press the transmitter button that
controls the MASTER output to which you indente store the new trasmitter, the buzzer sounds slowly and blinks the LED corresponding
to the selected output
-entro 30 secondi premere il tasto del nuovo radiocomando da memorizzare sul canale selezionato-within 30 seconds, press the button
on the remote control again to store the selected channel
-a conferma dell’apprendimento si accendono i led CH1, CH2 e DL3 per un secondo e il buzzer si spegne-conrming learning LEDs light
CH1, CH2 and DL3 for a second and the buzzer goes o.
P1=MEMO P2=DELETE/SETUP
JP1
REMOTE
MEMO ON
ONLY
FIRST TX
POWER
JP2
24V 12V
JP1
Posizione 1
Position 1
MASTER