Plumbing
Water Supply Requirements
Nortec does not accept responsibility for installation
code violations. All drain and fill line connections
should be installed in accordance with local plumbing
codes by a licensed plumber.
1. Use ½” OD copper or plastic supply lines within 4
feet of the humidifier.
2. Install water shut off valve and coupler to facilitate
servicing.
3. Do not use reverse osmosis or de-ionized water.
4. Flush supply lines with fresh clean water after
installing, prior to operating the humidifier.
5. Do not solder/braze copper lines while connected to
the humidifier or the fill solenoid can melt or deform.
6. Water conditions must meet the following criteria
for optimal operation, consult factory for water
conditions outside of this range.
a. Pressure: 30 to 80 PSIG
b. Conductivity: 150-1200 Microsiemens
c. Temperature: 33.8-68°F/1-20°C
d. Harness 0-10 GPG and Silica 0-4 PPM
–OR–
Hardness 0-3 GPG and Silica 0-14 PPM
Drain Line Requirements
1. Use 7/8 Copper. Do not use PVC.
2. Install an air gap within three feet of the humidifier.
A copper reducer from 2.5”-7/8” is ideal, do not allow
the drain hose to bottom out in the funnel cup.
3. The drain line should not end in a sink used
frequently by personnel, or where plumbing codes
prohibit it. Route to a floor drain or equivalent for
safety reasons.
4. Insure drain line is adequately sloped and sized to
provide free and easy draining.
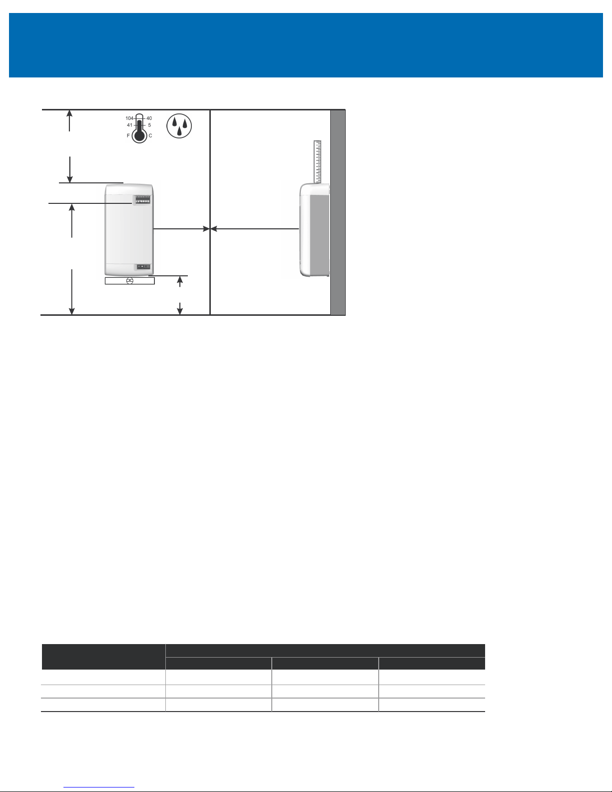
1.2 in. (30 mm). OD
un-threaded outlet
with factory supplied
bent hose and clamp.
Always install a water
shut-off valve.
1/8 in. NPT
Use 1/4 in.
compression
fitting to connect
supply line to
unit.
*Pipe and water shut-off valve not supplied by Nortec.
Use 1/2 in. OD copper to within 4 ft (1.2 m) of humidifier
Note:
1 Fill and drain lines
can also be routed
through opening in
back of cabinet.
2 Optional cover
2548313 Is available
to conceal plumbing
connections.
Air gap required. 2 1/2 in. to 7/8 in.
Copper reducer is ideal. (NORTEC option
P/N 2522172) Hose must not
touch the bottom of the funnel.
Min. 7/8 in. OD drain line.
Keep as short as possible.
Slope down to floor
drain or main drain.