
10
General Operational Guidelines - All versions
1) Operation duty cycle - Although the SMU has passed tests
that have accumulated over 150,000 operations, it is recom-
mended that the SMU be utilized as a periodic measurement
device. Applications requiring measurement more than fifty
times in a 24 hour period are not recommended. However,
there are no physical limitations to the number of operations
which can occur in one hour (i.e. the motor can run continu-
ously and not overheat). For a fully continuous measurement
device, consult the factory for other technologies.
2) Measurement rate - The average measurement rate of an
SMU is influenced by the amount of cable on the storage reel.
The speed of the plumb bob descent and ascent is faster
when more cable is wound on the storage reel. The rate of
plumb travel can range from 1.0 ft/second to 1.5 ft/second
(300-450 mm/second).
3) Application restrictions - The SMU is equipped with a motor
and spring tension system which is designed to maximize the
pull-out capacity in the event that a plumb bob becomes
entangled or buried. The SMU has been successfully tested
for operation in silo filling cycles in free flowing material appli-
cations. In applications where severe bridging or clinging
occurs, it is not recommended to operate during a filling oper-
ation. onsult the factory additional recommendations.
Operation of SMU/HMI2System
1) Ensure SMU network address is set and that the HMI2chan-
nel is active.
2) Press MEAS to enter the measurement mode.
3) Use number pad to enter channel number, or use arrow key
to select "all" channel read.
4) Press ENTER.
5) If SMU is in “LO KOUT” status, the SMU will not operate and
a message denoting such will be indicated on the HMI2display.
6) If SMU is not in “LO KOUT” status, the SMU's plumb bob will
descend as depicted by "i" on HMI2display.
7) Upon material contact the new measurement will be dis-
played and the plumb bob will ascend as depicted by the "h"
on the HMI2display.
8) Once returned to the start/socket position, the "h" will disap-
pear. If any errors were detected, they will be indicated on the
HMI2. The following error conditions are analyzed and dis-
played if applicable.
om Error: ommunication between HMI2and SMU is
faulty
Return Error: The measurement of descent was greater
than the ascent
(If > 4” (100mm)+1% upward travel)
Index Error: The measurement of ascent was greater than
the descent (If > 4” (100mm))
Motion Error: The plumb bob did not move upon initiation of
a measurement cycle. (If < 4” (100mm))
OP ERA I ON
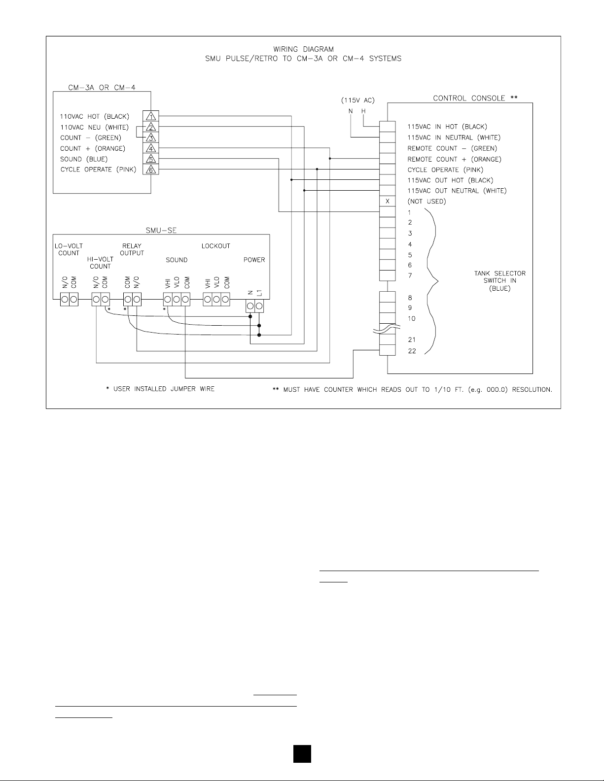
Operation of SMU ulse/Retro Output
1) Ensure the SMU is setup to output 0.1 ft or 0.1 m pulses as
selected by the resolution switch.
2) Initiate an SMU measurement with a contact closure on the
applicable sound input.
3) SMU's plumb bob will descend. ounts will begin to flow from
SMU. The Relay output will be closed depicting a
measurement is in process.
4) Upon material contact the plumb bob will ascend. ounts
may continue to flow during a short portion of the plumb bob
ascension due to an intentional built-in time lag which ensures
accurate accumulations of counts on legacy M consoles.
5) Once returned to the start/socket position, the Relay
output will be opened.
Operation of SMU Analog(4-20mA) Output
1) Ensure the SMU is setup to correlate the 4mA and 20mA val-
ues to subsequent vessel values.
2) Initiate an SMU measurement with a contact closure on the
applicable sound input.
3) SMU's plumb bob will descend and the measurement process
will begin.
4) Upon material contact the new measurement will be output as
a 4-20mA signal and the plumb bob will ascend. The SMU
calculates between a range of 3-21.5 mA.
5) Once returned to the start/socket position, the following error
conditions are analyzed then indicated by the selected fail-
safe limit if applicable. If an error is detected, the 4-20mA
output will respond per the programmed parameter
named “Err Sig”.
Return Error: The measurement of descent was greater
than the ascent (If > 4” (100mm)
+ 1% upward travel)
Index Error: The measurement of ascent was greater than
the descent(If > 4” (100mm))
Motion Error: The plumb bob did not move upon initiation of
a measurement cycle. (If < 4” (100mm))
Operation of SMU/SiloTrack™ System
See Bulletin 344D(SiloTrack V 1.0) or 344G(SiloTrack V 2.0)
or Bulletin 344J(SiloTrack V 3.X).
Fuse Replacement
The fuses incorporated into the SMU P Bs are not intended for
operator replacement. Direct access to the fuses is restricted. A
qualified tecnician can replace the applicable fuse(s) according
to the following specifications. If necessary, consult the factory
for additional technical assistance or for return of SMU.
115VA
F1: 5x20mm, 0.63A Time Lag (Slo-Blo), 250VA
LittelFuse #218.630 or Bussmann #GD -630mA
F2, F3: 5x20mm, 0.2A Time Lag (Slo-Blo), 250VA
LittelFuse #218.200 or Bussmann #GD -200mA
230VA
F1: 5x20mm, 0.315A Time Lag (Slo-Blo), 250VA
LittelFuse #218.315 or Bussmann #GD -315mA
F2, F3: 5x20mm, 0.1A Time Lag (Slo-Blo), 250VA
LittelFuse #218.100 or Bussmann #GD -100mA
MA IN EN AN CE