
PERFORMANCE SPECIFICATIONS
2
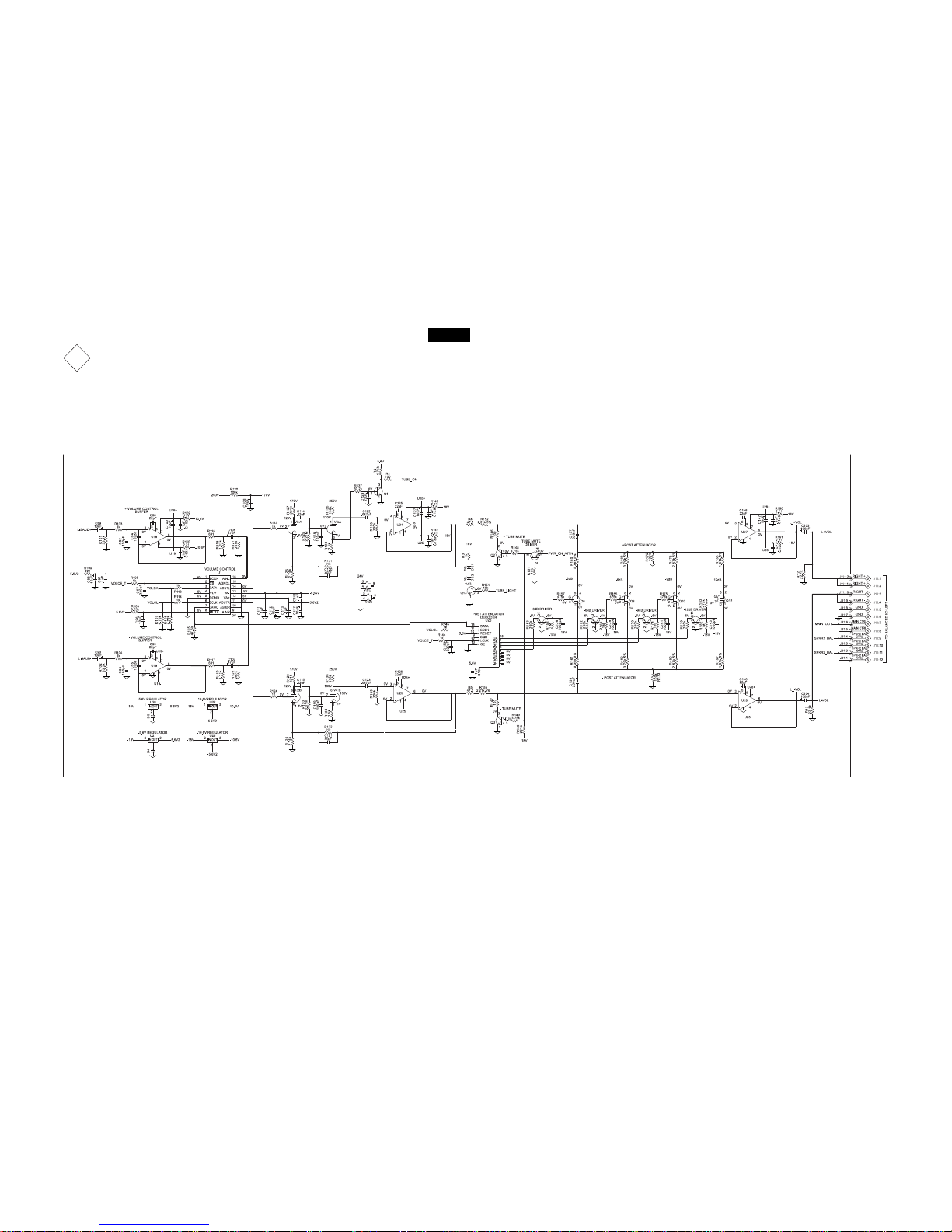
1. The heavy notes on the schematic denote the primary
signal path.
2. Unless otherwise noted, all voltages indicated on the
schematics are measured under the following conditions:
a. AC input at 120 volts, 50/60Hz.
b. All voltages are +/-10% with respect to ground. A
high impedance (10 megaohm) voltmeter must be used.
3. Unless otherwise specified:
a. Resistor values are in ohms.
b. Capacitor values are microfarads (uF).
c. Inductor values are in microhenries (uH).
4. On PC board drawings, Square pad indicates:
a. Polarized Capacitors - Positive
b. Diodes - Cathode
c. Others - Pin 1
5. WARNING
Parts marked with the symbol have critical
characteristics. Use only replacement parts recom
mended by the manufacturer.
NOTES
General Specifications
PowerRequirements
100 Volts, 50/60Hz at 120 watts
110 Volts, 50/60Hz at 120 watts
120 Volts, 50/60Hz at 120 watts
220 Volts, 50/60Hz at 120 watts
230 Volts, 50/60Hz at 120 watts
240 Volts, 50/60Hz at 120 watts
Note: Refer to the rear panel of the C1000 Controller for the
correct voltage.
Frequency Response
+0, -0.5dB from 10Hz to 20,000Hz
Total Harmonic Distortion
0.08% from 20Hz to 20,000Hz
Signal To Noise Ratio
High Level, 93dB
Phono, 80dB
Maximum Voltage Output
8V RMS Unbalanced, 16V RMS Balanced
OutputImpedance
220 ohms
Sensitivity
High Level, 450mV for 2.5V rated output
Phono MM, 4.5mV for 2.5V rated output
Phono MC, 0.45mV for 2.5V rated output
InputImpedance
High Level, 22K ohms
Phono MM, 47K ohms; 50 to 750pF, in 50pF steps
PhonoMC:25,50,100, 200,400 or1,000 ohms;100pF
Overall Dimensions
C1000C:
Width is 17-1/2 inches (44.45cm)
Height is 6 inches (15.24cm) including feet
Depth is 24 inches (61.0cm) including the Front Panel,
Knobs and Interconnect Cables1
C1000P:
Width is 17-1/2 inches (44.45cm)
Height is 6 inches (15.24cm) including feet
Depth is 24 inches (61.0cm) including the Front Panel and
Interconnect Cables1
C1000T:
Width is 17-1/2 inches (44.45cm)
Height is 6 inches (15.24cm) including feet
Depth is 24 inches (61.0cm) including the Front Panel and
Interconnect Cables1
Weight
C1000C- 39.0 pounds (17.7 kg) net
61.4 pounds (27.9 kg) in shipping carton
C1000P- 33.0 pounds (15.0 kg) net
53.6 pounds (24.3 kg) in shipping carton
C1000T- 34.0 pounds (15.4 kg) net
54.6 pounds (24.8 kg) in shipping carton
1Interconnect Cables are supplied with the C1000 Pream-
plifier and C1000 Tube Preamplifier. They are used to con-
nect Preamplifier(s) to the C1000 Controller.
Maximum Input Signal
High Level, 5V Unbalanced, 10V Balanced
Phono MM, 50mV
Phono MC, 5mV
TubeCompliment
Phono Circuitry:
4 - 12AX7A
High Level Circuitry:
4 - 12AX7A