
ESPAÑOL
LEA DETENIDAMENTE ESTA HOJA DE INSTRUCCIONES AN-
TES DE REALIZAR LA INSTALACION Y GUARDELA PARA
FUTURAS CONSULTAS
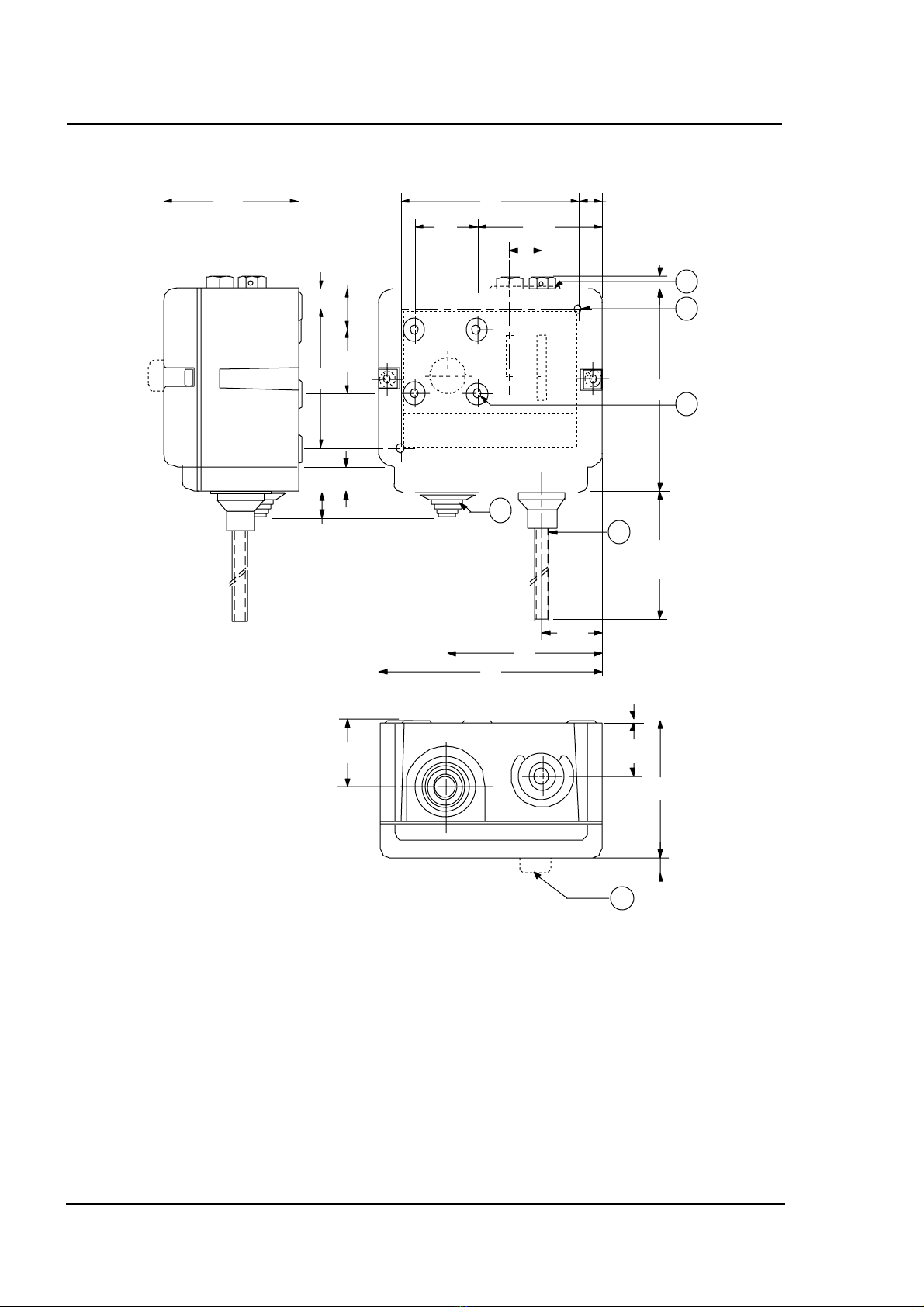
1 Tornillo de ajuste del punto de control(P)
2 Tornillo de ajuste diferencial (no está presente en los modelos de
restauración manual) (¢P)
3 Indicador del punto de control
4 Indicadordiferencial(no estápresente enlos modelosderestauración
manual)
5 Placa de bloqueo (si se aplica)
6 Tornillo de la placa de bloqueo (si se aplica)
7 Botón de restauración (sólo en los modelos de restauración manual)
8 Agujero de drenaje
El P77 es un control de presión diseñado para detectar la presión de
refrigerantes no corrosivos. La serie P77xxx-97 también es adecuada para
su utilización en aplicaciones con amoníaco.
Según EN 60730, es un acción tipo 1, control incorporado, adecuado para
montajeen superficie en una superficieplana ypara uso en condiciones de
contaminación normal.
Estoscontrolesestándiseñadosparaserutilizadossolamentecomocontro-
les de funcionamiento. En los casos en que un fallo de control de funciona-
miento pudiera producir daños personales o a propiedades, es responsabi-
lidad del instalador añadir los dispositivos o sistemas que protejan o
adviertan de los fallos de control.
INSTALACIÓN
Nota
Estedispositivosesuministraconunagujerodedrenajeenlaparteposterior
para un drenaje constante del condensado. En condiciones de montaje
normales,esdecir,enposiciónverticalcontra una pared. Esta condición es
suficiente para obtener un rendimiento normal, en condiciones IP54. Para
una forma de montaje distinta, asegúrese de que se mantengan las condi-
ciones de clase IP54 y la función de drenaje permanente.
!
Desconectar la corriente antes de quitar la tapa.
Cableado
Todo el cableado debe cumplir las normativas locales y debe realizarse
solamenteporelpersonalautorizado.Cuandoseutilizacableflexibleaplicar
terminales en los extremos.
Procedimiento de comprobación
Antes de finalizar la instalación, observe por lo menos tres ciclos de
operación completos para asegurarse que todos los componentes estén
funcionando correctamente. Sino es así, póngase en contacto con su
proveedor.
!
ITALIANO
LEGGERE ATTENTAMENTE LE ISTRUZIONI PRIMA DELL’IN-
STALLAZIONEECONSERVAREPERFUTURECONSULTAZIONI
1 Vite di regolazione del valore di riferimento (P)
2 Vite di regolazione del differenziale (eccetto modelli ad azzeramento
manuale) (¢P)
3 Indicatore del valore di riferimento
4 Indicatore del differenziale (eccetto modelli con azzeramento manua-
le)
5 Piastra di bloccaggio (se prevista)
6 Vite della piastra di bloccaggio (se prevista)
7 Pulsante di azzeramento (solo modelli con azzeramento manuale)
8 Foro di scarico
IldispositivoP77èunregolatoredipressioneingradodirilevarelapressione
di refrigeranti non corrosivi. Le serie P77xxx-97xx sono adatte anche per
l’impiego a contatto con l’ammoniaca.
SecondoleEN60730èunazionetipo1,Regolatore incorporato, adattoper
montaggio su una superficie piatta e per uso in situazioni di normale
inquinamento.
Questi dispositivi hanno esclusivamente la funzione di comandi. Se un
comando può provocare danni alle persone o alle cose, è responsabilità
dell’installatore aggiungere gli opportuni dispositivi o sistemi di protezione o
di segnalazione dello stato di guasto del comando stesso.
INSTALLAZIONE
Nota
Questo dispositivo presenta un foro sul retro per lo scarico continuo della
condensa. In normali condizioni di montaggio, ossia, in posizione verticale
a parete, risulta sufficiente per prestazioni normali in classe IP54. Anche in
caso di montaggio in posizione diversa, assicurarsi che sia mantenuta la
protezione IP54 e lo scarico continuo della condensa.
!
Staccare l’alimentazione prima di togliere il coperchio.
Cablaggio
Il cablaggio deve essere conforme alle normative locali ed essere eseguito
esclusivamente da personale autorizzato. Quando si usa un cavo con filo a
trefoli occorre applicare un capocorda alla fine di ogni filo.
Messa in funzione
Prima di concludere l’installazione, osservare almeno tre cicli operativi
completiperaccertareil correttofunzionamentodi tuttiicomponenti. Incaso
di irregolarità, contattare il proprio fornitore.
!
PORTUGUÊS
LEIAATENTAMENTEESTAFOLHADE INSTRUÇÕES ANTESDE
PROCEDER À INSTALAÇÃO E GUARDE-A PARA UTILIZAÇÃO
FUTURA.
1 Parafuso de regulagem do ponto de referência (P)
2 Parafuso de ajuste diferencial (não nos modelos de reinicialização
manual) (¢P)
3 Indicador do ponto de referência
4 Indicador diferencial (não nos modelos de reinicialização manu
al)
5 Placa de bloqueio (eventual)
6 Parafuso de placa de bloqueio (eventual)
7 Botão de reinicialização (somente nos modelos de reinicialização
manual)
8 Orifício de drenagem
O P77 é um controlador de pressão destinado à detecção de pressão de
refrigerantesnãocorrosivos. Asséries P77xxx-P97xxservemtambém para
o uso em aplicações com amoníaco.
SegundoEN 60730é umacção tipo 1,Controlador incorporado,apropriado
paramontagemde superfíciesobre umasuperfícieplana epara autilização
em condições normais de poluição.
Estes controladores foram concebidos exclusivamente para a utilização
como controladores operacionais. Quando uma falha do controlador
operacionalpossa resultarem ferimentos físicosou perda depropriedades,
recai sobre o instalador a responsabilidade o acréscimo de dispositivos ou
sistemas que protejam ou alertem contra uma falha do controlador.
INSTALAÇÃO
Observação
Este aparelho possui um orifício de drenagem no lado traseiro para a
drenagem constante de condensação. Sob condições normais de monta-
gem, ou seja, na posição vertical e contra a parede. Isto deve ser suficiente
para um desempenho normal sob as condições IP54. Para uma forma de
montagemdiferente,assegure-sedequeasprovisõesestejamconformeas
condições para a categoria IP54 e que tenha lugar uma drenagem perma-
nente.
!
Antes de retirar a tampa, desligue a alimentação eléctrica.
Conexões
Todas as conexões devem estar conforme os códigos locais e efectuadas
somente por pessoal autorizado. Ao ser utilizado cabo multifilar, monte um
adaptador de cabo na extremidade do cabo.
Procedimento de controlo
Antes de abandonar a instalação, observe pelo menos três ciclos de
funcionamentocompletospara assegurar-sede quetodosos componentes
funcionem correctamente. Do contrário, contacte o seu fornecedor.
!
SVENSKA
LÄS NOGA DESSA INSTALLATIONSANVISNINGAR INNAN IN-
STALLATIONEN UTFÖRS OCH BEVARA DEM FÖR FRAMTIDA
REFERENS.
1 Inställningsskruv för inställningspunkt (P)
2 Inställningsskruv för differentieljustering (ej på modeller med manuell
nollställning) (¢P)
3 Indikator för inställningspunkt
4 Indikatorför differentialjustering (ej påmodellermed manuell nollställ-
ning)
5 Låsplatta (om använd)
6 Skruv för låsplatta (om använd)
7 Nollställningsknapp (enast på modeller med manuell nollställning)
8 Avloppshål
P77 är en tryckkontroll som konstruerats för att avkänna trycket av icke-
korrosiva kylmedel. P77 xxx-97xx serien är även lämpliga för
amoniaktillämpningar.
I hänvisningen till EN 60730 är av typ 1 styrning , inkorporerad styrning
lämpade för montering på plan yta i en normalt nedsmutsad omgivning.
Dennastyrenhetärutformadförattanvändassomopererandestyrenhetoch
skall därför endast användas som sådan. Det är installatörens ansvar att
förseinstallationen med enheteroch/eller säkerhetssystem somförebygger
att eventuell skada tillfogas personer eller egendom till följd av driftfel i
styrenheten.
Installation
Obs!
Denna styrenhet är på baksidan försedd med ett avloppshål för konstant
dräneringavkondens. Undernormalamonteringsförhållanden, texiupprätt
lägepåenvägg,förserdettamednormalaprestanda underIP54-villkor.För
annantypavmontering,försäkraattåtgärdervidtasförattupprätthållaIP54-
klassens villkor och för konstant dräneringsfunktion.
!
koppla bort spänningen innan täcklocket tas bort.
Ledningar
All kabeldragnig ska utföras enligt gällande bestämmelser och får endast
utförasavbehörig personal.Närdetanvändsmångdledad kabel,sättditien
kabelsko i kabeländarna.
Kontrollera proceduren
Efterinstallationenbörmanövervakaminsttrehelaoperationscyklarfungerar
som de ska. Om detta inte är fallet, kontakta leverantören.
!
SUOMI
LUE TÄMÄ OHJELEHTINEN ENNEN ASENNUSTA HUOLELLI-
SESTI JA SÄILYTÄ SE MYÖHEMMÄN TARPEEN VARALTA
1 Asetusarvon säätöruuvi (P)
2 Erotuksen säätöruuvi (ei manuaalisissa malleissa) (¢P)
3 Asetusarvon ilmaisin
4 Erotuksen ilmaisin (ei manuaalisissa malleissa)
5 Lukon varmistuslaatta (mikäli tilattu)
6 Varmistusruuvi (mikäli tilattu)
7 Nollausnappula (vain manuaalisissa malleissa)
8 Tyhjennysreikä
P77onpaineensäädin,jokaontarkoitettumittaamaanruostumattomien
kylmälaitteidenpainetta.P77xxx-97xxsarjatsopivatkäytettäviksimyös
ammoniakkijäähdytyskoneissa.
EN 60730- normin mukaan kyseessä on tyyppiä 1 toiminta, laitteeseen
kiinteästi kuuluva säädin, soveltuu asennettavaksi tasaiselle pinnalle ja
voidaan käyttää normaalissa saastetilanteessa.
Nämä ohjausreleet on tarkoitettu vain laitteiston toiminnan ohjaukseen. Jos
ohjaushäiriövoi johtaa henkilö- tai aineellisiin vahinkoihin, asentajanvelvol-
lisuutena on huolehtia tarvittavista lisälaitteista tai -järjestelmistä, jotka
suojaavat ihmisiä ja laitteistoa ohjaushäiriön seurauksilta tai varoittavat
häiriöstä.
ASENNUS
Huomio
Tämä laite on varustettu takaosassa sijaitsevalla tyhjennysreiällä
jatkuvan kosteuden poistumisen varmistamiseksi. Normaaleissa olo-
suhteissa laite tulee kiinnittää pystysuoraan seinää vasten. Tämä on
riittävä normaaliin toimintaan IP54-ehtojen vallitessa. Mikäli laite kiin-
nitetään eri tavalla, varmistu siitä, että se säädetään niin, että
IP54-luokan ehdot ovat voimassa ja että tyhjennystoiminto on jatku-
vaa.
!
Katkaise virta ennen suojuksen poistamista.
Kytkentä
Johdotusontehtäväpaikallistenmääräystenmukaisestijasensaasuorittaa
vain ammattitaitoinen henkilö. Käytettäessä monisäikeistä johtoa kaapelin
holkki tulee kiinnittää kaapelin päähän.
Alkutarkastus
Ennen kuin laitteisto jätetään toimimaan ilman valvontaa, sen toimintaa on
tarkkailtavaainakin kolme täyden jaksonajan. Tällöin on varmistettava, että
kaikki komponentit toimivat kunnolla. Jos laitteisto ei toimi asianmukaisesti,
ota yhteys sen toimittajaan..
!
DANSK
LÆS DENNE VEJLEDNING GRUNDIGT FØR INSTALLATION OG
GEM DEN TIL SENERE BRUG
1 Drejeskive til indstillingsværdien (P)
2 Differential justeringsskrue (ikke på manuelle justerings modeller) (¢P)
3 Indikator af indstillingsværdien
4 Differential indikator (ikke på manuelle justerings modeller)
5 Låseplade (hvis den anvendes)
6 Låsepladeskrue (hvis den anvendes)
7 Justerings knap (kun ved manuelle justerings modeller)
8 Drænhul
P77 er et tryk kontrolapparat designet til føle tryk af rustfrikøleanlæg.
P77xxx - 97xx serierne er også egnet til brug i ammoniak applikationer.
Ifølge EN 60730 er det en type 1 funktion, indkoorporeret kontrol, tilpasset
til frontmontage på en plan front og til anvendelse i normale omgivelser.
Disseregulatorererkunberegnettil atblivebrugtsomdriftsregulatorer. Hvis
en fejl i en driftsregulator kan resultere i fare for personer eller materielle
skader, er installatøren ansvarlig for, at der installeres anordninger eller
systemer, som beskytter eller advarer mod fejl i regulatoren.
Installation
Note
Denne indretning er forsynet med et drænhul på bagsiden, til konstant
dræningafkondensvand.Undernormalemonteringsforholdskaldenhænges
i lodret position imod væggen. Disse forhold er tilstrækkelige til en normal
præstation under IP54 omstændigheder. Hvis den monteres på anden
måde, kræves der andre forhold for at bevare IP54 klasse omstændig-
hederne og en permanent drænfunktion.
!
Forsyningsspænding skal kobles fra før dæksel afmonteres.
Elektrisk installation
Ledningsføringskal udføresi henhold tillokale forskrifter ogmå kun udføres
af autoriseret personale. Ved anvendelse af flerleder kabel, skal der monte-
res kabelsko på endene.
Test procedure
Før installationen afsluttes. Observer mindst tre komplette betjenings
cyklusser, for at være sikker på, at alle komponenter fungerer korrekt. Hvis
det ikke er tilfældet, tag kontakt med Deres leverandør.
!
NORSK
LESDENNEVEILEDNINGENGRUNDIGFØRINSTALLERING,OG
GJEM DEN FOR FREMTIDIG BRUK.
1. Skive for settpunkt. (P)
2. Differensial justeringsskrue (ikke på modeller med manuell tilbake-
stilling). (¢P)
3. Settpunktindikator.
4. Differensial indikator (ikke på modeller med manuell tilbakestilling).
5. Låseplate (hvis levert)
6. Låseplateskrue (hvis levert)
7. Tilbakestillingsknapp (kun på modeller med manuell tilbakestilling).
8. Dreneringshull
P77er en trykkregulator som er konstruert for føling av trykk i ikke-korrosive
kjølemedier. P77xxx-97xx serien er også egnet til bruk med ammoniakk.
IfølgeEN 60730 er det en type 1 funksjon, inkorporert kontroll, tilpasset for
frontmontasjepåenplanfrontogfor bruk i normalt forurensede omgivelser.
Disse regulatorene er kun konstruert for bruk som driftsregulatorer. Hvis en
feil på en driftsregulatur kan føre til fare for personer eller materielle skader,
er det installatørens ansvar å sørge for installering av anordninger eller
systemer som beskytter mot, eller advarer om, feil på regulatoren.
Montering
Merk
Denneregulatoren har et dreneringshull på baksiden for kontinuerlig drene-
ringavkondens.Monteresundernormaleforholdivertikalstillingpåveggen.
Dette er tilstrekkelig for normal ytelse under forhold tilsvarende IP54. Ved
annenmonteringmåmanpåseatdettastiltakforåoppnåforholdtilsvarende
klasse IP54 og permanent drenering.
!
Koble fra tilførselspenning før deksel demonteres.
Kabling
Kabling skal utføres i samsvar med lokale forskrifter og må bare utføres av
autorisertpersonell.Ved bruk avfler-trådig kabel,bruk kabelskopåendene.
Kontrollprosedyre
Før installasjonen forlates, må man observere minst tre komplette drifts-
sykluser,ogværesikkerpåatallekomponenterfunksjonererriktig.Hvisikke
må leverandøren kontaktes.
!
EΛΛHNIKA
∆IABAΣTE ΠPOΣEKTIKA AYTEΣ ΤIΣ O∆HΓIEΣ ΠPIN APXIΣETE
THN EΓKATAΣTAΣH KAI ΦYΛAΞTE TIΣ ΓIA MEΛΛONTIKH XPHΣH
1 Bίδα ρύθµισησ τησ τιµήσ αναφοράσ (P)
2 Bίδα ρύθµισησ τησ διαφοράσ πίεσησ (δεν υπάρχει στα µοντέλα
στα οποία η επαναφορά (reset) γίνεται µε το χέρι) (¢P)
3 Ένδειξη τησ τιµήσ αναφοράσ
4 Ένδειξη τησ διαφοράσ πίεσησ (δεν υπάρχει στα µοντέλα στα
οποία η επαναφορά γίνεται µε το χέρι)
5 Aσφαλιστικ έλασµα (εάν έχει τοποθετηθεί)
6 Bίδα του ασφαλιστικού ελάσµατοσ (εάν έχει τοποθετηθεί)
7 Kουµπί επαναφοράσ (µνο για µοντέλα στα οποία η επαναφορά
(reset) γίνεται µε το χέρι)
8 Oπή αποστράγγισησ
H συσκευή P77 είναι µονάδα ελέγχου πίεσησ, σχεδιασµένη να µετρά
την πίεση µη διαβρωτικών ψυκτικών µέσων. Tα µοντέλα P77xxx-97xx
είναιεπίσησ κατάλληλα γιαχρήση σε εφαρµογέσπου χρησιµοποιείται
αµµωνία.
Σύµφωνα µε το πρτυπο EN 60730, είναι ενέργεια τύπου 1,
ενσωµατωµένη διάταξη ελέγχου, κατάλληλη για τοποθέτηση σε
επίπεδηεπιφάνειακαι για χρήσησεκανονικέσ συνθήκεσ σεπεριβάλλον
µε ρύπουσ.
Αυτοί οι µηχανισµοί ελέγχου έχουν σχεδιαστείώστε να
χρησιµοποιηθούν αποκλειστικάωσελεγκτέσλειτουργίασ.Aποτελεί
ευθύνη του τεχνικού εγκατάστασησ να προσθέσει µηχανισµούσ ή
συστήµατα αποτροπήσ ή προειδοποίησησ βλαβών του ελεγκτή, ώστε
να αποτραπεί το ενδεχµενο πρκλησησ σωµατικών βλαβών ή υλικών
ζηµιών στην περίπτωση κάποιασ δυσλειτουργίασ του ελεγκτή.
EΓKATAΣTAΣH
Σηµείωση
Στο οπίσθιο µέροσ τησ συσκευήσ υπάρχει µια οπή αποστράγγισησ για
συνεχήαποµάκρυνσητωνυγροποιούµενων ατµών. Eφ’ σονησυσκευή
έχει τοποθετηθεί µε τον κανονικ τρπο, δηλαδή σε ρθια θέση
επάνω σε τοίχο, η οπή αυτή επαρκεί για κανονική λειτουργία υπ τουσ
ρουσπου προβλέπει ηκλάση IP54. Eάν η συσκευή είναι τοποθετηµένη
διαφορετικά, βεβαιωθείτε τι έχουν ληφθεί τα απαραίτητα µέτρα
ώστε να πληρούνται οι ροι τησ κλάσησ IP54 και να επιτυγχάνεται
συνεχήσ αποµάκρυνση των συµπυκνωµάτων.
!
Aποσυνδέστε τη συσκευή απ το ρευµατολήπτη πριν αφαιρέσετε
το κάλυµµα.
Kαλωδίωση
Oλεσ οι καλωδιώσεισ θα πρέπει να συµµορφώνονται µε τουσ τοπικούσ
κανονισµούσ και να πραγµατοποιούνται µνο απ εξουσιοδοτηµένο
προσωπικ. Aν χρησιµοποιείτε πολύκλωνο καλώδιο, βάλτε ένα
κατάλληλο συνδετήρα στο άκρο του καλωδίου.
∆ιαδικασία τελικού ελέγχου
Πρινφύγετεαπτοχώροτησ εγκατάστασησ, παρατηρήστε τουλάχιστον
τρεισ κύκλουσ λειτουργίασ για να βεβαιωθείτε τι λα τα τµήµατα
λειτουργούν σωστά. Σε διαφορετική περίπτωση, καλέστε τον
προµηθευτή του υλικού.
H καθυστέρηση θα πρέπει να ελέγχεται µετά το τέλοσ τησ διαδικασίασ
εγκατάστασησ αλλά και σε τακτά χρονικά διαστήµατα.
!
ČESKY
!
Před instalací pozorně pročtěte tento montážní návod a
uložtejej na bezpečnémísto propřípadnou budoucí potřebu.
1 Šroub pro změnu bodu nastavení (P)
2 Šroub pro nastavení diference (není na modelech s ručním resetem) (¢P)
3 Indikace bodu nastavení
4 Indikace diference (není na modelech s ručním resetem)
5 Blokovací deska (je-li pouŽita)
6 Blokovací šroub (je-li pouŽit)
7 Tlačítko resetování (pouze modely s ručním resetem)
8 Odvodnění
P77 tlakový regulátor určený pro snímání tlaku nekorozívního chladiva.
Modely řady P77xxx-97xx jsou vhodné také pro použití v aplikacích se
čpavkem.
Podle EN 60730 je jeho provoz typu 1, nezávisle instalovaný regulátor,
vhodný pro instalaci na rovný povrch a pro použití v podmínkách běžného
znečištění.
Tyto regulátory jsou určeny pro použití pouze jako provozní. Pokud by jejich
selhání způsobilo zranění osob nebo poškození majetku, je povinností osoby
provádějící instalaci připojit zařízení nebo systémy, které ochraňují nebo
varují před selháním regulátoru.
Instalace
Pozn.:
Toto zařízení je vybaveno odvodňovacím otvorem na zadní straně modulu
pro nepřetržité odvádění kondenzace. Při dodržení běŽné instalační polohy
- tzn. vertikální poloha na stěně - je toto zajištění dostatečné pro běžný
provoz za podmínek IP54. Při odlišném způsobu montáže se ujistěte, zda
jsou učiněna příslušná opatření pro dodržení podmínek IP54 a z modulu je
soustavně odváděn kondenzát.
!
Před demontáží krytu odpojte přívod napájení.
Zapojení
Veškeré zapojení musí odpovídat příslušným normám a musí být provedeno
pouze odpovědnými osobami. Při použití vícepramenného vodiče nalisujte
na jeho odizolovaný konec zakončovací dutinku.
Kontrola
Před tím, než opustíte instalované zařízení, zkontrolujte alespoň tři kompletní
provozní cykly, abyste se ujistili, že všechny součásti pracují správně. V
opačném případě se spojte se svým dodavatelem.