
DTR-5.9
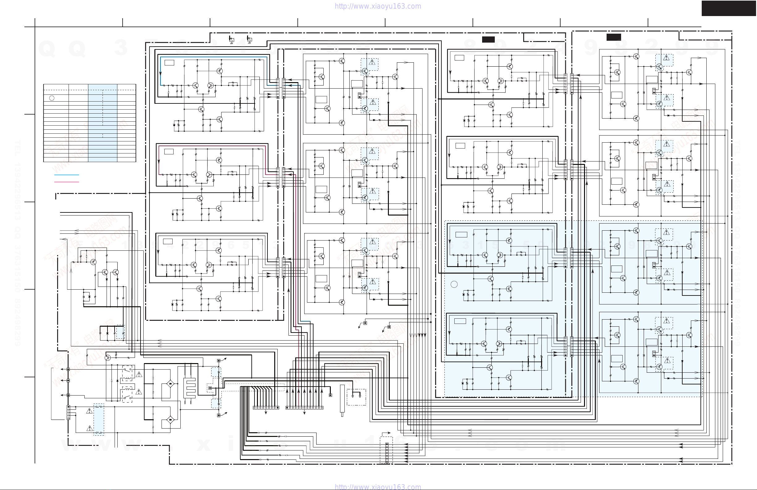
SCHEMATIC DIAGRAMS-5 (SD-5)
SPEAKER TERMINAL / POWER SUPPLY SECTION
FRONT L
FRONT R
AUDIO ANALOG SIGNAL
THE COMPONENTS IDENTIFIED BY MARK ARE CRITICAL FOR SAFETY
REPLACE ONLY WITH PART NUMBER SPECIFIED.
VOLTAGE (MEASURED WITH VOLTMETER) IS DC VOLTAGE.(NO INPUT SIGNAL).
ALL PNP TRANSISTORS ARE EQUIVALENT TO 2SA1015-GR UNLESS OTHERWISE NOTED.
ALL NPN TRANSISTORS ARE EQUIVALENT TO 2SC1815-GR UNLESS OTHERWISE NOTED.
ALL DIODES ARE EQUIVALENT TO 1SS133 UNLESS OTHERWISE NOTED.
ELECTROLYTIC CAPACITORS ( ) ARE IN uF/WV.
ALL CAPACITORS ARE IN pF/50WV UNLESS OTHERWISE NOTED.
EX) 030- 3pF 330- 33pF 331- 330pF 333- 0.033uF
ALL RESISTORS ARE IN OHMS 1/4WATTS UNLESS OTHERWISE NOTED.
THE THICK LINES ON PC BOARD ARE THE PRINTING SIDE OF THE PARTS.
EX) PRINTING SIDE
CIRCUIT IS SUBJECT TO CHANGE FOR IMPROVEMENT.
!
NOTE
LSPE
HPDET
HPR
HPL
SBRSPE
SBLSPE
SPBROUT
SPBLOUT
SPRLF
SPRLCS
SPRLSB
SPRLZ2
HPDET
SPRLF
SPRLSB
SPRLZ2
SPC
SPL
SPSBR
SPSBL
SPSL
SPSR
SPR
SPRLCS +24V
RLGND
CSPE
SBLSPE
SBRSPE
RSPE
LSPE
SLSPE
SRSPE
LR
CENTER
SPEAKER
LR
LR
MPUGND
MPUGND
To NAVD-9467
SD-4 : C4
NATRM-9468
To NAAF-9424
SD-2 : D5
J6600
L6601
L6600
L6602
C6600
103J
RL6600
RL6602
J6851
C6641
103J
C6640
103J
C6651
102J
C6650
102J
J6604
J6625
L6605
L6604
L6603 C6603
103J
RL6603
C6605
103J
RL6605
C6607
103J
C6653
102J
C6643
103J
C6644
103J
C6654
102J
RL6607
J6619
J6620
J6626
R6691
390(1/2W)
R6692
390(1/2W)
JL9102A
1
2
3
4
5
6
7
R6693
0
D6600
D6603
D6605
D6607
Q6601
Q6603
P6602
C6652
102J
C6642
103J
P6603
C6645
103J
C6646
103J
C6656
102J
C6655
102J
P6601
Q6604
P6604
JL6600B
7
6
5
4
3
2
1
R6690
10(1/2W)
Q6602
R6602
C6602
103J
R6612
R6600
R6610
R6601
R6611
R6603
R6613
R6604
R6614
R6615
R6605
R6606
R6616
L6606
JL6603B
1
2
3
4
5
6
7
8
9
JL6604B
5
4
3
2
1
JL6605B
5
4
3
2
1
+12VD
MPUGND
+10VS
POWERD
FLAC2
FLAC1
SEC3_1
SEC3_2
SEC2_2
SEC2_1
POFF
1
3
S3
S2
S4
S1
T901
INLET
TYPE
120V/220-240V, 50/60Hz
100V, 50/60Hz
230V, 50Hz
120V, 60Hz
AC IN
F901
LIST
F910
NAPS-9446
NAETC-9451
NAPS-9447
NC
NC
To NAVD-9467
SD-4 : C5
To NAVD-9467
SD-4 : C5
8
9
10
14
13
12
R931
100K
R930
100K
C931
10/50
P907
P901A
C901
103M/275VAC
C902
104J
D925
D921
D924
D922
D923
D931
D930
C921
223Z
T902
LIST
1
2
3
4
5
6
7
8
9
J931
Q930
SI-3010KF
1Vc
2Vin
3GND
4Vout
5ADJ
J932
R934
100K
C933
4.7/50
D933
D935
C930
100/50
+
C922
+
D912
1SS133
D911
1SS133
C911 102J
R9102
8.2(1/2W)
C9101
104J
R9101
LIST
P922A
RL901
R933
10K
R932
82K
C932
100/16
JL901A
5
4
3
2
1
P911
P921B
P921A
P922B
JL9101A
1
2
3
4
5
6
7
11
D934
MTZJ5.6B
E901 E902
R921
U37
SPEAKER TERMINAL PC BOARD
U21
POWER SUPPLY PC BOARD
U22
TRANS. SEC.
TERMINAL
PC BOARD
U25
INLET PC BOARD
SURROUND
SPEAKERS
LR
SURROUND
BACK SPEAKERS
FRONT
SPEAKERS
NAETC-9449
P7201
1
8
7
3
2
4
5
JL6605A
5
4
3
2
1
C7204 102J
C7203 102J
L7202
022M
L7201
022M
C7202
223J
E7201
L7203
022M
C7201
102J
Phones
U24
HEADPHONE JACK
PC BOARD
AGAINST FIRE HAZARD, REPLACE
VA
FOR CONTINUED PROTECTION
AND RATING INDICATED.
ONLY WITH FUSE OF SAME TYPE
CAUTION
ATTENTION
ET CALIBRATION COMME INDIQUE.
D'INCENDIE, REMPLACER UNIQUEMENT
PERMANENTE CONTRE LES RISQUES
AFIN D'ASSURER UNE PROTECTION
PAR UN FUSIBLE DE MEME TYPE
VA
E LENT.POUR UNE PROTECTION PERMANENTE,N'UTILISER
INDIQUE LA QU LE PRESENT SYMBOL EST APPOSE.
QUE DES FUSIBLES DE MEME TYPE. CE DARNIER EST
CE SYMBOLE INDIQUE QUE LE FUSIBLE UTLISE EST
FOR CONTINUED PROTECTION AGAINST FIRE
RATING REFER TO THE MARKING ADJACENT TO THE SYMBOL.
HAZARD,REPLACE WITH SAME TYPE FUSE. FOR FUSE
THIS SYMBOL LOCATED NEAR THE FUSE INDICATES
THAT THE FUSE USED IS SLOW OPERATING TYPE
Refer to following table about the parts displayed by mark " LIST ".
DTR-4.9 DTR-5.9 DTX-5.9
MDD MPA
MDD MJJ
Refer to following table about the parts displayed by mark " LIST ".
DTR-5.9
DTR-4.9 DTX-5.9
MDD MPA
MDD MJJ
None S-1.3C
None None
J6600, 6604,
6619, 6620,
6625, 6626, 6851
Yes
LIST
LIST
LIST
LIST
LIST
LIST
LIST
L6600 - 6604
R6600 - 6606
R6610 - 6616 22None None
None
None
Yes Yes
L6605, 6606 None S-1.3CNone None
R6605, 6606
R6615, 6616 22None None
None
B
LIST
A
LIST
LIST
YesYes
None
Q6601 - 6604 : KRC105S
D6600, 6603, 6605, 6607 : KDS4148U
VIDEO PCB
AMPLIFIER PCB
CLIST
LIST
LIST
LIST
PRI.
D
D
LIST
F910
F901
F902
MDD, MDC
T901
T902
R9101
C922
R921
To NAAF-9424
SD-2 : E5
NPT-
NPT-
2200/25 2200/162200/25
47(1/2W)None 47(1/2W)
NoneNone
J931
D921 - 925,
D930, 931, 933, 935
: 1SS133
LIST
VIDEO PCB
VIDEO PCB
P6900B
P6904B
P6903B
NAPS-9425
P15
P16
P17
P18
P19
JL6952A
5
4
3
2
1
U06
TRANS. SEC. TERMINAL
PC BOARD
To NAAF-9424
SD-2 : A5
MPP, MPA, MPB
MWT, MWO, MWR
MJJ
220V, 50/60Hz
MGK, MGQ, MGR
HPDET
AMPLIFIER PCB
YELLOW
GREEN
BLACK
AMPLIFIER PCB
MAIN TRANS.
SUB TRANS.
Yes
Yes Yes
1552D 1552P
1552D 1552J
1520JQ 1520GQ1520JQ 1520JQ
None
2200/16
10A/125V 5A/250V10A/125V 12A/250V
None
None None
5A/125V
5A/125V5A/125V
TA5 : Jumper wire L=5 mm
YesYes Yes
+5.6V
+3V
TA5 : Jumper wire L=5 mm
0V
+3V
+3V
0V
0V
P901
A
B
BYes YesNone
LIST
A
(Banana type)
NATRM-9428
C6647
103J
C6648
103J
C6658
102J
C6657
102J
P6607
JL6604C
1
2
3
4
5
L
R
ZONE 2
SPEAKERS
U09
ZONE 2 SPEAKER
TERMINAL PC BOARD
MODEL NO. -->
TYPE --->
MODEL NO. -->
TYPE --->
TA5
CNone
None None
TA5
TA5
TA5
TA5
TA5
TA5
TA5
<Note>
1. NC = No mount of parts.
2. SD-x : XY is short for Schematic Diagrams-x and each
sockets location, X = A to H, Y = 1 to 5.
A
1
2
3
4
5
BCDEFGH
w
w
w
.
x
i
a
o
y
u
1
6
3
.
c
o
m
Q
Q
3
7
6
3
1
5
1
5
0
9
9
2
8
9
4
2
9
8
T
E
L
1
3
9
4
2
2
9
6
5
1
3
9
9
2
8
9
4
2
9
8
0
5
1
5
1
3
6
7
3
Q
Q
TEL 13942296513 QQ 376315150 892498299
TEL 13942296513 QQ 376315150 892498299
http://www.xiaoyu163.com
http://www.xiaoyu163.com