
Instructions manual RH11 and RH12 Inkema
01 –Introduction........................................................................................................................................ 3
02 –Technical specifications................................................................................................................... 4
02.01 –Usage conditions and limits .................................................................................................................4
02.02 –RH11 embedded pit.............................................................................................................................4
02.03 –RH12 self-supporting pit ...................................................................................................................... 5
02.04 –Platform ...............................................................................................................................................5
02.05 –Lip........................................................................................................................................................5
02.06 –Bedplate...............................................................................................................................................5
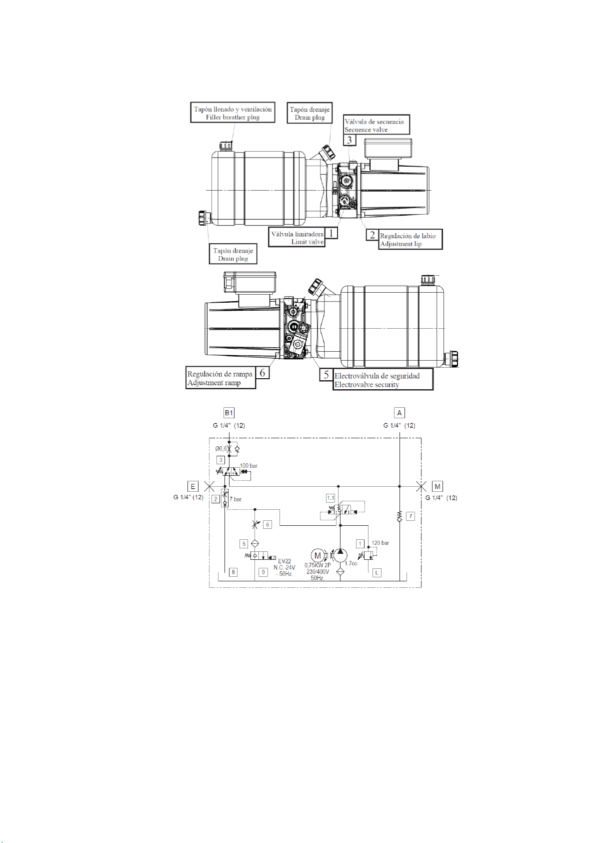
02.07 –Hydraulic power unit ............................................................................................................................6
02.07.01 –Hydraulic unit version 03..................................................................................................6
02.07.02 –Hydraulic unit version 07..................................................................................................7
02.08 –Electrical control panel.........................................................................................................................7
02.09 –Safety systems .................................................................................................................................... 7
02.10 –Maintenance........................................................................................................................................ 8
02.10.01 –Hydraulic oil ..................................................................................................................... 8
02.10.02 –Grease points................................................................................................................... 8
02.10.03 –Dock leveller descent speed regulation............................................................................ 8
02.10.04 –Lip opening speed............................................................................................................8
02.10.05 –Maintenance plan.............................................................................................................9
02.11 –Instructions for use............................................................................................................................... 9
02.11.01 –Before use........................................................................................................................ 9
02.11.02 –During use...................................................................................................................... 10
02.11.03 –After use......................................................................................................................... 10
02.11.04 –Precautions during use .................................................................................................. 10
03 –CE Declaration................................................................................................................................. 11
04 –Machine units and parts ................................................................................................................. 12
05 –Installation........................................................................................................................................ 14
05.01 –Positioning in the pit........................................................................................................................... 14
05.02 –Securing the leveller in the pit............................................................................................................ 14
05.02.01 –Securing in the case of an embedded model................................................................. 14
05.02.02 –Securing in the case of a self-supporting model............................................................. 15
05.03 –Installing the electrical control panel.................................................................................................. 16
05.04 –Completed installation........................................................................................................................ 16
05.05 –Electrical control panel connection..................................................................................................... 17
05.05.01 –Connecting the power input ........................................................................................... 17
05.05.02 –Motor input connection................................................................................................... 17
05.05.03 –Electro valves connection .............................................................................................. 17
05.05.04 –Description of the connection terminals ......................................................................... 18
05.05.05 –Actions Selection............................................................................................................ 19
05.05.06 –Timers............................................................................................................................ 19
05.05.07 –Operation....................................................................................................................... 19
05.05.08 –Accessories.................................................................................................................... 19
05.05.09 –Characteristics ............................................................................................................... 19
06 –Dismantling...................................................................................................................................... 20
06.01 –Dismantling an embedded leveller..................................................................................................... 20
06.02 –Dismantling a self-supporting leveller ................................................................................................ 20
07 –Incidents........................................................................................................................................... 22
07.01 –The panel DOES NOT light up........................................................................................................... 22
07.02 –The ramp DOES NOT rise................................................................................................................. 23
07.03 –The leveller DOES NOT descend...................................................................................................... 24
07.04 –The lip DOES NOT open or functions very slowly ............................................................................. 24
07.05 –The lip opens before the leveller is raised.......................................................................................... 24
08 –Contact............................................................................................................................................. 25