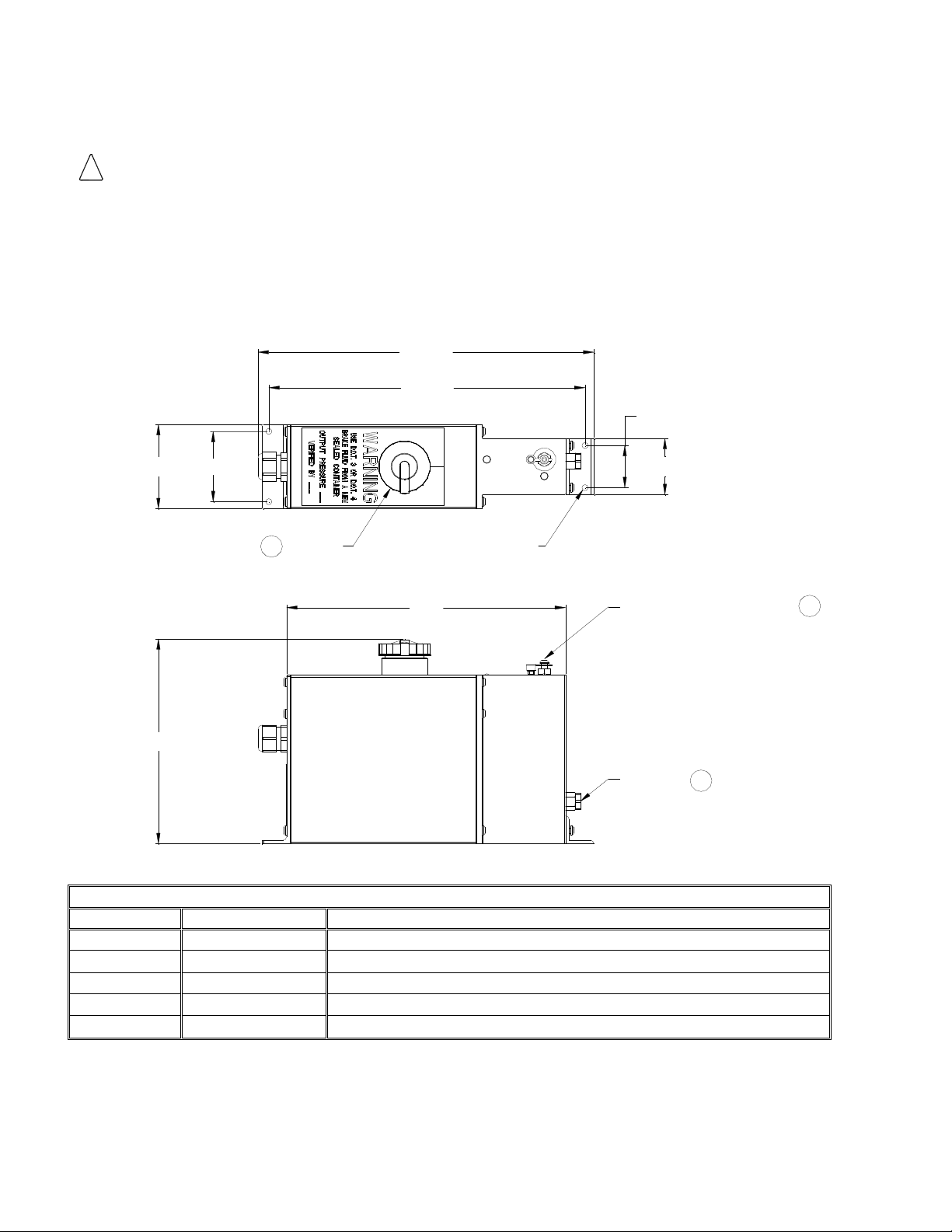
ECN 04007 Manual 440-1008 Rev D Page 8 of 10
H. TROUBLESHOOTING GUIDE
Brakes are slow to respond
•Re-bleed the trailer brakes and actuator.
•If the trailer is equipped with drum brakes, re-adjust the drum brakes to the trailer manufacture's
recommended running clearance.
•Slow response can be caused by trailer wiring that is too small. See Section C. ELECTRICAL
INSTALLATION REQUIREMENTS – WIRE SIZE IS CRITICAL / LOW VOLTAGE CONDITION.
•Slow response can be caused by brake lines that are too restrictive on the trailer (i.e. small diameter / long
length restrictive fittings / routings).
The trailer brake lines must be at least 3/16 inches in diameter / steel tubing is preferred over flexible hoses.
If it is not practical to locate the Hydrastar™ unit closer to the brakes, consider increasing the size of the
trailer brake lines.
Unit will not run or the unit will not shut off
•Verify that the trailer and tow vehicle are wired according to the electrical schematic shown on page 5.
•Perform the following checks to determine if the unit is functioning properly:
Step 1
•With the unit running and brake pressure applied, determine that a minimum of 8.5 volts DC are reaching the
Hydrastar’s™ black wire.
•Check to see if the white ground wire runs directly to the tow vehicle ground. IT MUST NOT BE GROUNDED TO
THE TRAILER ONLY. IT IS IMPORTANT THAT THIS GROUND WIRE RUNS DIRECTLY TO THE TOW
VEHICLE’S BATTERY GROUND. NO EXCEPTIONS.
Step 2
•Detach all wires from the Hydrastar™ leaving only the blue, black, white, and yellow or blue w/ white striped wires. It
is important that the unit is disconnected from any other wires going to the towing vehicle or breakaway switch and
breakaway battery. Failure to do so may result in a faulty test.
Step 3
•Using a 12 volt battery, connect the white wire to the negative (-) terminal of the battery.
•Connect the black wire to the positive (+) terminal of the battery.
•The motor should not run.
•If the motor runs, the unit needs repaired.
Step 4
•Leave the white wire connected to the negative (-) terminal of the battery.
•Connect the blue and black wires together to the positive (+) terminal of the battery.
•The motor should run and the unit should pressurize.
•If this does not occur, the unit needs repaired.
Step 5
•Leave the white wire connected to the negative (-) terminal of the battery.
•Connect only the yellow or blue w/ white striped wire to the positive (+) terminal of the battery.
•The motor should run and the unit should pressurize.
•If this does not occur, the unit needs repaired.
Step 6
•If the unit checks OK, reconnect the wires leading to the trailer plug and repeat steps 2 through 4. If you do not get the
same results as before, the problem is in the trailer wiring or the electronic brake controller.
Breakaway test procedure
•Pull the breakaway switch on the trailer.
If the unit runs and builds pressure, the problem most likely is a defective in-cab controller or defective
wiring between the tow vehicle and Hydrastar™ unit.
If the unit runs but will not build pressure, the problem most likely is a defective proportional valve in the
Hydrastar™ unit and the actuator should be returned for repair.