Electrical Data
4 ft 6 ft 8 ft 10 ft 12 ft
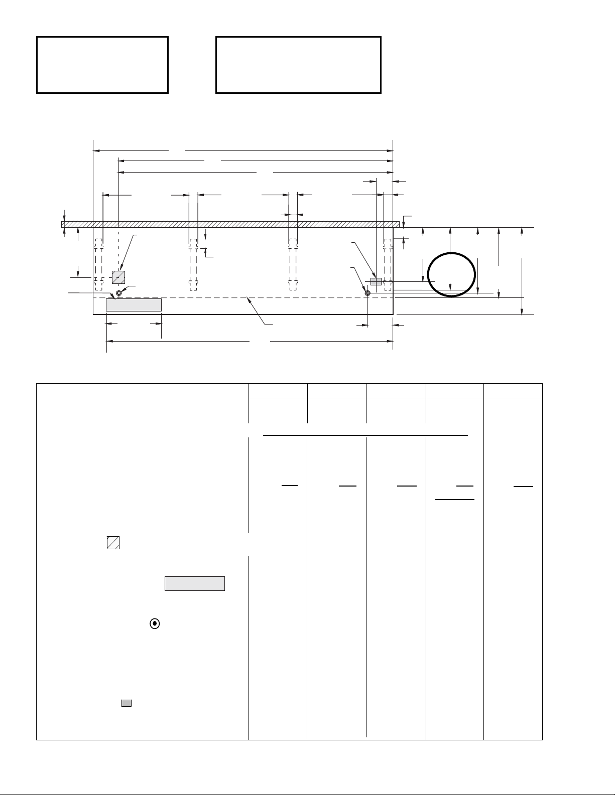
Number of Fans – 12W 1 — 2 1 3
Number of Fans – 7W —2—2—
Amperes Watts
Evaporator Fans 4 ft 6 ft 8 ft 10 ft 12 ft 4 ft 6 ft 8 ft 10 ft 12 ft
120V 60Hz Standard 0.65 1.00 1.30 1.65 1.95 50 78 100 128 150
120V 50Hz Standard 0.75 1.10 1.50 1.85 2.25 57 84 114 141 171
230V 60Hz Export 0.33 0.50 0.66 0.80 0.99 50 78 100 128 150
230V 50Hz Export 0.38 0.56 0.76 0.94 1.14 57 84 114 141 171
120V 60Hz Energy Efficient 0.30 0.38 0.60 0.68 0.90 18 28 36 46 54
230V 60Hz Energy Efficient 0.15 0.20 0.30 0.35 0.45 18 28 36 46 54
Minimum Circuit Ampacity
120V 60Hz Standard 0.85 1.20 1.50 1.85 2.15
120V 50Hz Standard 0.95 1.30 1.70 2.05 2.45
230V 60Hz Export 0.53 0.70 0.86 1.00 1.19
230V 50Hz Export 0.58 0.76 0.96 1.14 1.34
120V 60Hz Energy Efficient 0.50 0.58 0.80 0.88 1.10
230V 60Hz Energy Efficient 0.35 0.40 0.50 0.55 0.65
Maximum Over Current Protection 120V 20 20 20 20 20
Maximum Over Current Protection 230V 15 15 15 15 15
Standard Lighting (T-8 fluorescent)
1 Row Canopy 0.26 0.51 0.51 0.77 0.77 30 59 59 85 85
Optional Lighting (T-8 fluorescent)
Additional 1 Row Canopy 0.26 0.51 0.51 0.77 0.77 30 59 59 85 85
Additional 2 Row Canopy 0.51 1.02 1.02 1.54 1.54 59 118 118 170 170
Additional 3 Row Canopy 0.77 1.53 1.53 2.31 2.31 89 177 177 255 255
1 Row Rail Light 0.26 0.51 0.51 0.77 0.77 30 59 59 85 85
Optional Shelf Lighting (T-8 fluorescent)
1 Row of Shelves 0.26 0.51 0.51 0.77 0.77 30 59 59 85 85
4 Rows of Shelves 1.02 2.04 2.04 3.08 3.08 118 236 236 340 340
5 Rows of Shelves 1.28 2.55 2.55 3.85 3.85 148 295 295 425 425
6 Rows of Shelves 1.53 3.06 3.06 4.62 4.62 177 354 354 510 510
Optional Always*Bright LED Lighting
1 Row of Shelves 0.15 0.19 0.26 0.30 0.38 18 23 31 36 45
4 Rows of Shelves 0.47 0.68 0.93 1.15 1.40 56 82 112 138 168
5 Rows of Shelves 0.57 0.83 1.13 1.38 1.69 68 99 136 166 203
6 Rows of Shelves 0.67 0.96 1.33 1.62 2.00 80 115 160 194 240
120V Lighting Circuit Total = Standard Lighting + Total Optional Lighting + Optional Shelf Lighting
230V Lighting Circuit Total = Multiply 120V Lighting Circuit Total by 0.52
4 of 8 D5X-EP Technical Data Sheet
HUSSMANN CORPORATION, Bridgeton, MO 63044-2483 U.S.A.
Impact
Excel
D5X-EP
Dairy & Delicatessen