
3
Please review this manual. It should be read carefully before the icemaker is serviced or
maintenance operations performed. Only qualified service technicians should service and
maintain the icemaker. This manual should be made available to the technician prior to
service or maintenance.
CONTENTS
I. Specifications .................................................................................................................... 5
A. KM-280MAH-E (air-cooled) .......................................................................................... 5
B. KM-500MAH-E (air-cooled) .......................................................................................... 6
C. KM-630MAH-E (air-cooled) ......................................................................................... 7
II. General Information .......................................................................................................... 8
A. Dimensions .................................................................................................................. 8
1. KM-280MAH-E ....................................................................................................... 8
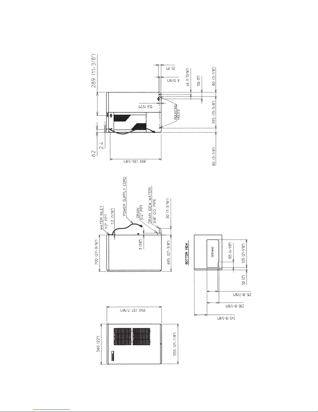
2. KM-500MAH-E ....................................................................................................... 9
3. KM-630MAH-E ..................................................................................................... 10
B. Construction ............................................................................................................... 11
1. KM-280MAH-E ..................................................................................................... 11
2. KM-500MAH-E ..................................................................................................... 12
3. KM-630MAH-E ..................................................................................................... 13
C. Controller Board......................................................................................................... 14
1. Solid-State Control ............................................................................................... 14
2. Controller Board ................................................................................................... 14
3. Sequence ............................................................................................................. 19
4. Controls and Adjustments .................................................................................... 22
5. Checking the Controller Board ............................................................................. 25
D. Mechanical Bin Control .............................................................................................. 26
1. Proximity Switch ................................................................................................... 26
2. Explanation of Operation ...................................................................................... 26
3. Troubleshooting (Mechanical Bin Control Only).................................................... 27
III.Technical Information ..................................................................................................... 28
A. Water Circuit and Refrigerant Circuit .......................................................................... 28
1. KM-280MAH-E ..................................................................................................... 28
2. KM-500MAH-E, KM-630MAH-E ........................................................................... 29
B. Wiring Diagrams......................................................................................................... 30
1a. KM-280MAH-E (auxiliary codes L-0 through M-1) .............................................. 30
1b. KM-280MAH-E (auxiliary codes M-2 and later) ................................................... 31
2a. KM-500MAH-E (auxiliary codes L-0 through M-1) .............................................. 32
2b. KM-500MAH-E (auxiliary codes M-2 and later) ................................................... 33
3a. KM-630MAH-E (auxiliary codes L-0 through M-1) .............................................. 34
3b. KM-630MAH-E (auxiliary codes M-2 and later) ................................................... 35
C. Timing Chart .............................................................................................................. 36
D. Performance Data ...................................................................................................... 38
1. KM-280MAH-E ..................................................................................................... 38
2. KM-500MAH-E ..................................................................................................... 39
3. KM-630MAH-E ..................................................................................................... 40