
6LE007315Ab4
HZI855
Optional Aux. Supply
24V (6W)
82 70 76 75 74 73 72 71 6164
OUT 6
LATCHING RELAY OUTPUTS (NC-NO-C) OUTPUTS (NC-NO-C)INPUTS
OUT 5
62 515452
IN1IN2IN3IN4IN5IN6C
81
Config USB
OUT 4
414442
OUT 3
313432
OUT 2
212422
OUT 1
111412
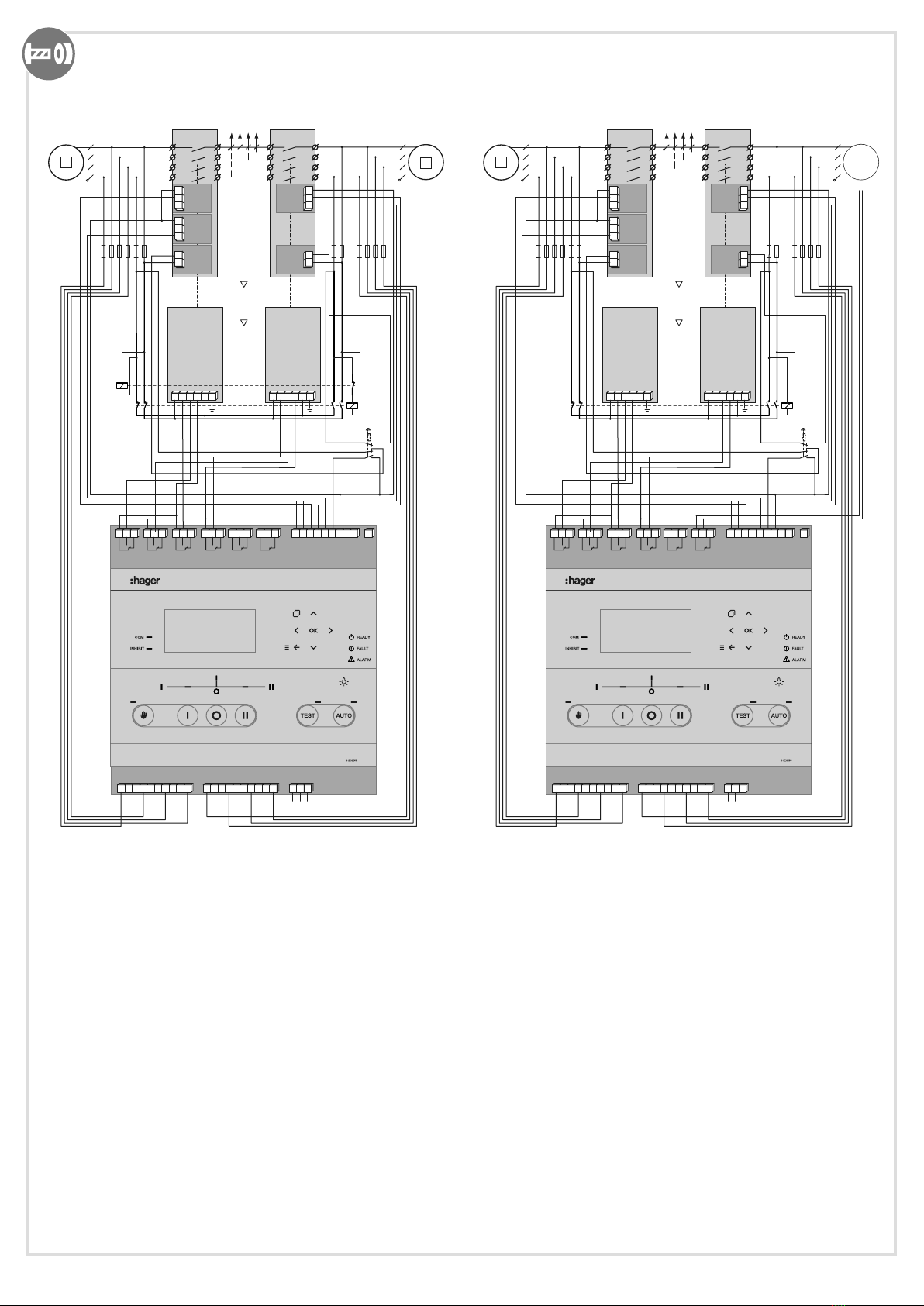
ATSE Controller with communication
ALL OUT: AC1– AC general use Ie: 8A Ue: 250V~ 50/60Hz 1.6kW AC15 – AC pilot duty Ie:2A Ue:250V~ 50/60Hz 175W DC1 – DC general use Ie:5A 24V 120W
N°/ SN:ZRSSAAXXLYYYYFFFFFFFFI Made in France
Test level ; Between SOURCES
When type tested with IEC 60947-6-1 RTSE
TighteningTorques:
RS485:0.22-O.25Nm/1.9-2.2lb.in
All others:0.5-0.6Nm/4.4-5.3lb.in
OperatingTemperature:
-30/70°C
RS485120Ω
ON
OFF
Product
Consumption
on sources
10VA
Hager Electro SAS
BP3
67215 OBERNAICEDEX FRANCE
Notice:http://hgr.io/r/hzi855
IEC 60947-6-1IEC61010-2-201GB/T 14048.11
appendixC
8kV
Voltage Sensing220-227V~ L/N -30 +20% 400-480V~ L/L’ -30+20%
50-60Hz50-60Hz50Hz
110-227V~ L/N -30+20% 190-480V~ L/L’ -30+20% 220V~ L/N -30 +20% 380V~ L/L’ -30 +20%
4kV
OvervoltageCat.
U imp
Frequency
IIIIIIIII
Controller wiring
5. Optional Aux. Supply 24 VDC.
6. Programmable INPUTS.
7. Programmable OUTPUTS.
8. Latching relays.
9. Cong USB.
1. Voltage sensing source 1.
2. Voltage sensing source 2.
3. RS485.
4. RTC battery
TYPE TERMINAL
N° DESCRIPTION BY DEFAULT CONFIGURATION CHANGES WHEN CHANGING
RTSE TECHNOLOGY CHARACTERISTICS RECOMENDED CROSS
SECTION
Breakers HIB4xxM Contactors
Inputs
71 IN1: programmable input Breaker 1 is in position ON Switch is in position 1 Contactor 1 is in position ON
Do not connect to any
power supply from
terminal 70 common
point.
Congurable type NO or
NC - NO by default
1.5-2.5 mm²
Tightening torque
0.5-0.6 Nm
4.4-5.3 Lb.in
72 IN2: programmable input Breaker 2 is in position ON Switch is in position 2 Contactor 2 is in position ON
73 IN3: programmable input Breaker 1 is in position OFF Switch is in position 0 -
74 IN4: programmable input Breaker 2 is in position OFF Inhibit -
75 IN5: programmable input Breaker 1 is in position TRIP Manual retransfer -
76 IN6: programmable input Emergency stop RTSE in manual -
70 Common point for inputs
Outputs
Logic Impulse Impulse Maintained
Dry contacts
8 A / 277 VAC 50/60 Hz
5 A / 24 VDC
Congurable type NO or
NC - NO by default
1.5-2.5 mm²
Tightening torque
0.5-0.6 Nm
4.4-5.3 Lb.in
12/14/11 OUT1: programmable output Order to close Breaker 1 Order to switch in
position 1 Order to close Contactor 1
22/24/21 OUT2: programmable output Order to close Breaker 2 Order to switch in
position 2 Order to close Contactor 2
32/34/31 OUT3: programmable output Order to open Breaker 1 Order to switch in
position 0 -
42/44/41 OUT4: programmable output Order to open Breaker 2 S1 Available -
Latching
relays
Logic Impulse Impulse Maintained
52/54/51 OUT 5: genset start relay / programmable output - S2 Available -
62/64/61 OUT 6: genset start relay / programmable output Order to start Genset Order to start Genset -
Serial
connection RS485
Connection RS485
-: negative terminal of RS485 bus
+: positive terminal of RS485 bus
NC: ground
- - - RS485 bus insulated
Modbus cable 25 m = HTG485H
LiYCY sheilded twisted pair 0.14
to1.5 mm² /
Tightening torque
0.22-0.25 Nm
1.9-2.2 Lb.in
Aux power
supply 81/82 -: negative terminal for aux supply
+: positive terminal for aux supply - - - 12-24 VDC
Tightening torque
0.5-0.6 Nm
4.4-5.3 Lb.in
Top viewBottom view
Cabling Output relays 1-4 Cabling Output Latching relays 5 & 6
Controller cong STATE (relay)
Normally
Open (NO) (11-14)
Normally
Closed (NC) (11-12)
Normally
Open (NO) (61-64)
Normally
Closed (NC) (61-62)
Output congured as NO
NO by default
OFF (not active) Open Closed Open Closed
ON (activated by rmware) Closed Open Closed Open
Controller not supplied Open Closed Closed* Open*
Output congured as NC OFF (not active) Closed Open Closed Open
ON (activated by rmware) Open Closed Open Closed
Controller not supplied Open Closed Closed* Open*
* HZI855 controller includes two bi-stable relays with backup energy, when the controller loses all sources of power supply outputs 5 and 6 will automatically activate (NO contact will close and
NC contact will open). This is a safety feature designed to ensure power availability to the load in Main-Genset or Genset-Genset application by forcing generators to start in case of total power
loss. It is highly recommended to congure the outputs 5 and 6 to take benet from this function.