P.16
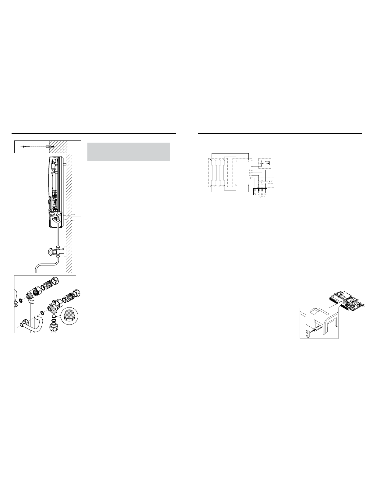
Cleaning and replacing the filter strainer if direct
connected
The cold water connection of this instantaneous
water heater is equipped with a strainer. Soiling of the
strainer may reduce the warm water output. Clean or
replace the strainer as follows:
1. De-energize the instantaneous water heater
(e.g. via deactivating the fuses) and prevent
inadvertent reactivation of them.
2. Close the shut-off valve in the mains water supply
of the instantaneous water heater.
3. To open the hood, take off the small faceplate,
loose the screw behind this cover and detach the
hood.
4. Unscrew mains water inlet from connection piece
and take out the strainer.
5. The strainer can now be cleaned or replaced.
6. After refitting the clean strainer reconnect the
mains water inlet to the connection piece.
7. Slowly reopen the shut-off valve in the mains
water supply.
8. Vent the unit by carefully opening and closing the
affiliated warm water tap valve several times until
air no longer emerges from the pipe.
9. Fit the hood of the unit. Then switch on the
voltage again (e.g. via activating the fuses).
Your product was manufactured from high-quality, reusablematerials
and components. Please respect in case of discarding that electrical
devices should be disposed of separately from household waste
at the end of their service life. Therefore, please take this device
to a municipal collection point that accepts electronic scrap
on a free of charge basis. Disposing it correctly will support
environmental protection and will prevent any potential negative
effects on human beings and the environment that could arise
from inappropriate handling of these devices at the end of their
service life. Please contact your local authority for further details
of your nearest designated collection point or recycling site.
Business customers: If you wish to discard electronic equipment,
please contact your dealer or supplier for further information.
10. Environment and recycling
Venting after maintenance work
This instantaneous water heater features an automatic air bubble protection to prevent it from inadvertently
running dry. Nevertheless, the appliance must be vented before using it for the first time. Each time the
appliance is emptied (e.g. after work on the plumbing system, if there is a risk of frost or following repair
work), the appliance must be re-vented before it is used again.
1. Disconnect the instantaneous water heater from the mains (e.g. via deactivating the fuses).
2. Unscrew the jet regulator on the outlet fitting and open the cold water tap valve to rinse out the water pipe
and avoid contaminating the appliance or the jet regulator.
3. Open and close the hot water tap until no more air emerges from the pipe and all air has been eliminated
from the water heater.
4. Only then should you re-connect the power supply again (e.g. via activating the fuses) to the instantaneous
water heater and screw the jet regulator back in.
5. The appliance activates the heater after approx.10 seconds of continuous water flow.
Cleaning and maintenance
- Plastic surfaces and fittings should only be wiped with a damp cloth. Do not use abrasive or chlorine-
based cleaning agents or solvents.
- For a good water supply, the outlet fittings (special tap aerators and shower heads) should be unscrewed
and cleaned at regular intervals. Every three years, the electrical and plumbing components should be
inspected by an authorised professional in order to ensure proper functioning and operational safety at all times.