1.- IMPORTANTE Lean estas instrucciones antes de conectar este aparato por primera vez
•La garantía del radiador no cubrirá cualquier daño causado por la no observancia de alguna de estas
instrucciones.
•Las instrucciones deben conservarse para futuras referencias. Este manual debe ser conservado y dado a
cualquier nuevo usuario.
•Este aparato pueden usarlo niños con edad de 8 años y superior y personas con capacidades físicas, sensoriales
o mentales reducidas o falta de experiencia y conocimiento, si se les ha dado la supervisión o formación
apropiadas respecto al uso del aparato de una manera segura y comprenden los peligros que implica. Los niños
no deben jugar con el aparato. La limpieza y mantenimiento a realizar por el usuario no deben realizarlos los
niños sin supervisión.
•Los niños desde 3 años y menores de 8 años deben sólo encender/apagar el aparato, siempre que este haya
sido colocado o instalado en su posición de funcionamiento normal prevista y que sean supervisados o hayan
recibido instrucciones relativas al uso del aparato de una forma segura y entiendan los riesgos que el aparato
tiene. Los niños desde 3 años y menos de 8 años, no deben enchufar, regular y limpiar el aparato o realizar
operaciones de mantenimiento.
•Los niños menores de 3 años deben mantenerse fuera del alcance del aparato a menos que sean continuamente
supervisados.
•Compruebe que el voltaje de la placa de características del radiador coincide con el voltaje de la red donde se
va a conectar.
•La instalación del aparato debe realizarse de acuerdo con la legislación eléctrica vigente. La instalación o
reinstalación, y la puesta en servicio debe ser realizada por un instalador eléctrico cualificado.
•El uso de radiadores está prohibido en presencia de gases, explosivos u objetos inflamables.
•No utilizar este aparato para secar ropa. No cubrir el aparato, ni colocar objetos en contacto con el mismo.
•Las salidas y entradas de aire del radiador aseguran el correcto funcionamiento y protegen al radiador de
sobrecalentamientos. No se deben tapar nunca. No deje ningún objeto encima del radiador, cubriendo la rejilla
u obstruyendo el flujo de aire.
•Ni el cable de conexión ni otros objetos deben entrar en contacto con el radiador.
•Este radiador debe ser desconectado de la red eléctrica antes de efectuar cualquier reparación en su interior.
•Si quiere dejar fuera de servicio el aparato desconéctelo de la instalación.
•El radiador no debe ser instalado justo debajo de una toma de corriente.
•El radiador debe ser instalado de tal forma que los interruptores u otros controles no puedan ser tocados por
alguien que esté usando el baño o la ducha. No toque nunca el radiador estando descalzo o con las manos
mojadas o húmedas.
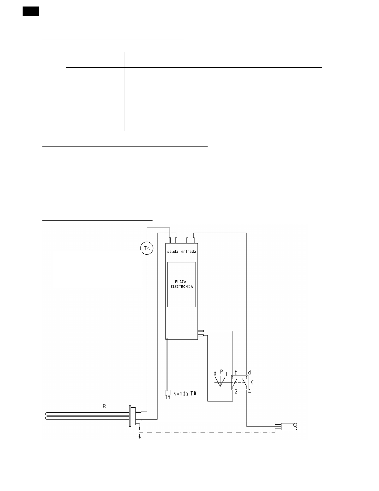
•El radiador está equipado con una manguera de conexión de 3 x 1,00 mm² que debe ser usada para conectar el
aparato a la red eléctrica de la vivienda a través de una caja de conexión adyacente.
•Este aparato está destinado a ser permanentemente conectado a una instalación fija. El circuito de alimentación
del radiador debe incorporar un interruptor de corte omnipolar con una separación de contactos de al menos
3 mm.
•Si la manguera de conexión de esta unidad se encuentra dañada deberá ser sustituida con el fin de evitar un
peligro, por un servicio autorizado por el fabricante ya que se necesitan herramientas especiales.
•Es imprescindible que el aparato esté conectado a una buena toma de tierra.
•Todos los modelos incorporan un interruptor de seguridad. Este desconectará el radiador si, por alguna razón,
se sobrecalienta. Si actuara el interruptor de seguridad, desconecte el radiador, elimine la causa del
sobrecalentamiento y el radiador se rearmará automáticamente.
•Este radiador se llena con una cantidad exacta de aceite especial. Las reparaciones que requieran la apertura del
contenedor de aceite sólo deben ser realizadas por el fabricante o su servicio autorizado, quienes debería ser
avisados si el radiador tiene escape de aceite.
•Cuando el radiador se desecha, seguir las disposiciones concernientes al desecho de aceite.
•La presencia en el ambiente de humo, partículas en suspensión, polución atmosférica, etc., puede, oscurecer las
superficies de paredes cercanas al aparato.
•ATENCIÓN –Algunas partes de este aparato pueden estar muy calientes y causar quemaduras. Particular
atención debe prestarse en presencia de niños y personas vulnerables.