
3
ATTENTION:
Essayages de Pipe : Quand desserré, serré ou remplacé, les essayages complets devraient être
enlevés et la dope de pipe approuvée s'est appliquée aux filetages mâles.
Fuites : Quand un chauffage est assuré l'entretien, le train de valve devrait être vérifié pour les fuites
avec une solution d'eau et savon ou a la solution de détecteur de fuite approuvé.
Installation et Maintenance : les chauffages doivent être installés et faits marcher conformément au
Code d'Installation de B149.1-00 Standard CGA et à n'importe quel code de province ou local. Le
service devrait se faire seulement par les monteurs de gaz de propane qualifiés.
Le chauffage devrait seulement être renvoyé sur une surface de niveau.
Ne conservez pas ou utilisez de l'essence, la vapeur inflammable de liquides inflammables aux
alentours du chauffage.
Le Brûleur Manque de S'enflammer:
Garantissez que la valve de cylindre est ouverte lentement. Vérifiez le cylindre a du propane à
l'intérieur par le poids du cylindre, ou en en débranchant lentement le cylindre et en vérifiant pour la
haute pression de l'issue de valve de cylindre.
Vérifiez-le le régulateur est vissé dans complètement (dans le sens des aiguilles d'une montre).
Déprimez le bouton de réinitialisation complètement et allumez le brûleur.
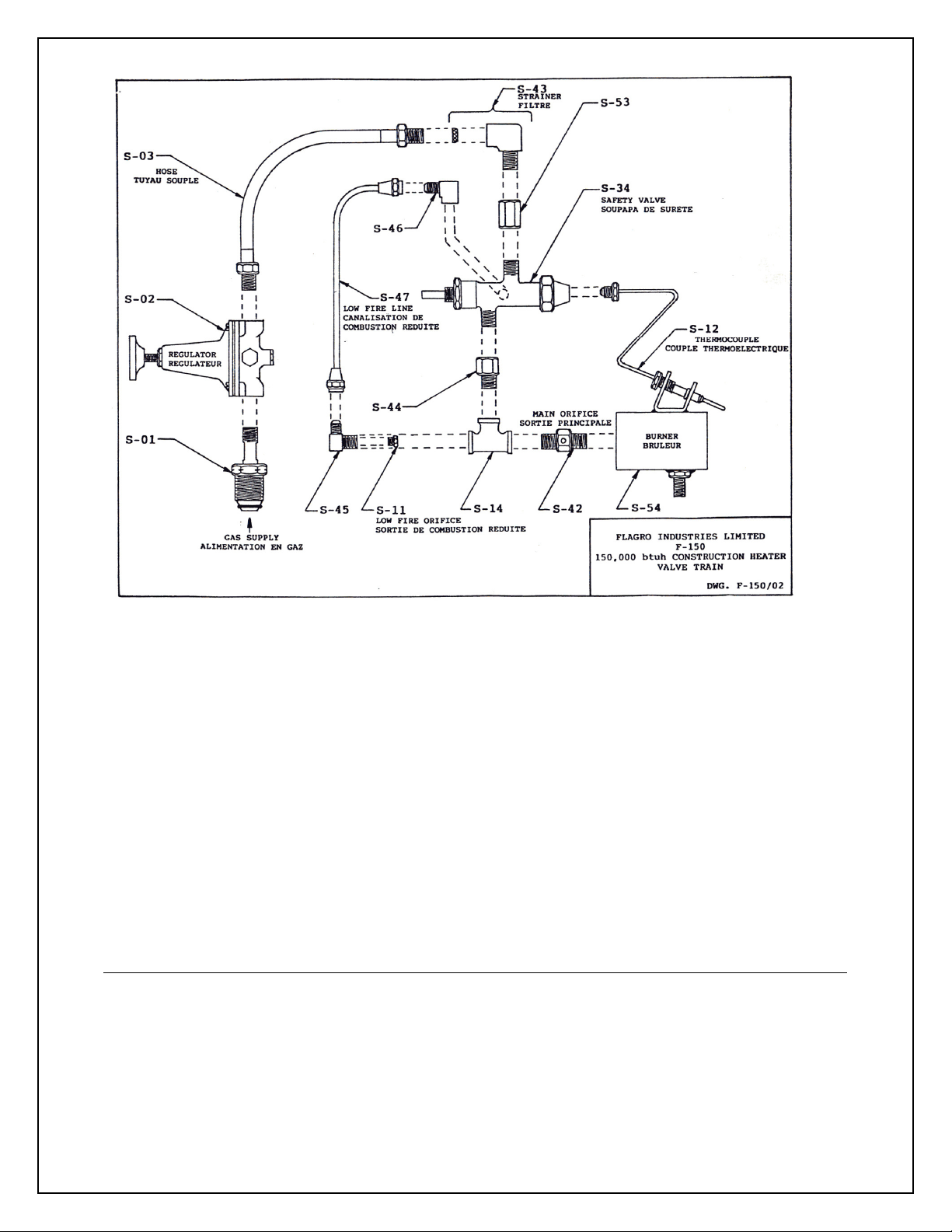
Faites allusion au dessin de train de valve et débranchez la ligne cuivre de l'orifice de feu bas.
Déprimez le bouton de réinitialisation et le gaz devrait traverser la ligne. Si l'écoulement n'est pas
évident, ou minimal, il pourrait y avoir un blocage dans : (a) POL avec chèque l'excès coule (b) le
Régulateur (c) le Tuyau (d) la Passoire (e) la Soupape de sûreté.
Quand la ligne de feu basse est débranchée, enlever l'orifice de feu bas et propre avec un #72 foreuse
de DMS.
Le brûleur pilote devrait s'enflammer à moins qu'il n'y ait un blocage dans l'orifice principal. L'orifice
principal devrait alors être enlevé et nettoyé avec une #54 foreuse de DMS.
Le Brûleur Principal Manque de Tirer Correctement :
Déprimez le bouton de réinitialisation et allumez le brûleur pilote, conservez-vous le bouton de
réinitialisation a déprimé depuis 45 secondes. Quand libéré, le feu bas devrait se relayer pour haut
tirer. Si cela manque de brûler au feu complet ou brûle avec une flamme jaune, enlevé l'orifice
principal et propre avec une #54 foreuse de DMS.
Si vous avez l'allumage électronique optionnel sur votre chauffage, déprimez le bouton d'allumage
électronique et tourne le produire l'étincelle pour le brûleur pilote. Conservez-vous le bouton a déprimé
pour 45 sec. Quand libéré, le brûleur devrait se relayer pour haut tirer. S'il manque de brûler à un feu
complet, ou brûle avec une flamme jaune, enlevé l'orifice principal et propre avec une #54 foreuse de
DMS.
Le bouton de réinitialisation pourrait attacher et ne pas libérer correctement. Dans ce cas-là la
soupape de sûreté devrait être remplacée.
Le Brûleur Manque de Rester Allumé :
Remplacez le thermocouple
Remplacez la soupape de sûreté