Extron • System 8/10 P
LUS
• User’s Manual • P/N 68-408-01 Rev. A
Sony Installation Configuration and Connections
Page 3
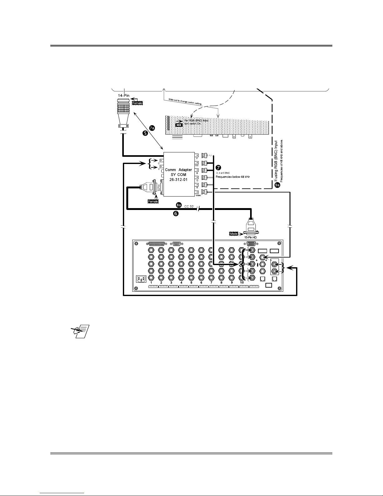
________ For either of the following procedures, the projector(s) must be setup to use the
BNC inputs on the projector for RGBS. These signals will
NOT
go through the
Comm Adapter. Use the Sony Manual that came with the projector for the
procedure for pulling the circuit board and changing the switch. A simple
illustration is also included in the figure on the previous page.
________ Later model Sony projectors, such as the 4075, have display menus to select
the RGBHV port. Please refer to your Sony manual.
Frequencies Above 48 kHz - Sony 1270 and Similar Models (use picture on previous page)
For a better quality picture at higher frequencies, don't use the 14-pin cable for
the RGB signals; use the BNC connectors on the projector instead.
See note at the top of this page and use the illustration on the previous page for
the following steps.
7a. The Sony Adapter (SY COM) has one 9-pin male connector that accommodates
the Comm Extension cable. Do NOT use the eight BNC connectors on the
adapter. Only the control signals will go through the Comm Adapter. Plug the
single 14-pin connector from the adapter into the connector marked "Remote 1"
on the Sony connector panel.
8a. Plug the 15-pin HD connector of the Projector Communications Extension cable
(shown as CC 50') into the PJ Comm port on the System 8/10 PLUS. The other
end has a 9-pin female connector. Plug this into the 9-pin male D connector on
the SY COM adapter and secure the screws.
9a. Plug the BNC connectors on one end of the RGBS cable onto the System 8/10
PLUS output and those on the other end onto the BNCs on the Sony projector.
Stacking Sony Projectors (use picture on next page)
Sony projectors are sometimes "stacked" to provide increased brightness. The
technique is to have two projectors showing the same image at the same time
on the same screen. To supply RGBS signals to two projectors, an Analog
Distribution Amplifier is required, as well as three, Hi-Res 5-BNC cables.
If the System 8/10 PLUS is not already setup for Sony, follow steps 1 through 6
on page 3-49. To parallel-connect the projectors, choose which projector will be
#1 and which will be #2, and continue.
See note at the top of this page and use the illustration on the next page for the
following steps.
7b. Connect the Comm Extension cable from the System 8/10 PLUS to the adapter.
8b. Connect the SY COM adapter as shown on the following page. Do NOT use the
BNC connectors for the RGBS video signals; only the control signals and
Composite will go through the adapter. Plug the round 14-pin connector into the
projector designated as "Projector #1" and turn the collar to secure it in place.
9b. Connect the color-coded, Hi-Res RGBS cable from the BNC outputs of the
System 8/10 PLUS to the input of the ADA.
10b. Connect the first output of the ADA to the BNC input of Projector #1.
Connect the second output of the ADA to the BNC input of Projector #2.
11b. Connect a "mini-phone" control cable from the "Controls Out" jack on Projector
#1 to the "Controls In" jack on Projector #2.
________ This setup allows any commands, such as remote control, etc., received by
Projector #1 to be passed to Projector #2.