
Approval: ___________________________________________
584159 (WLGWDFOOOO) S90 Gas Solid Top, gas oven,
c-board,1side operation
Item No. ___________________________________
Unit to be Electrolux S90 Heavy Duty 52,000 Btu (15.3 kW) Gas
Solid Top with heavy duty 24,000 BTU (7 kW) standard gas oven.
Unit to have raised rear c-board for against the wall or back to back
unit installation. Unit shall have joint free large cooking surface with 2
heating areas with individual temperature settings for each zone from
as low as 212 °F (100 °C) to as high as 842 °F (450 °C). Large flat
cooking surface made of mild steel permits the use of a number of
various sized pots and pans, all easily moved across the surface
without lifting. Thermocouples as standard on oven for added safety.
Body and open base of unit entirely in 304 stainless steel. Unit shall
have heavy duty 304 stainless steel internal frame. Extra strength
work top in heavy duty 0.118″(3 mm) stainless steel. “Lasertec” con-
nection system permits units to be connected to each other creating
a seamless work top.
Covered by Electrolux Platinum Star® Service Program two-year
parts and one-year labor warranty, installation start-up and perfor-
mance check-up after one year from installation.
Short Form Specification
Electrolux Professional, Inc.
www.electroluxusa.com/professional
3225 SW 42nd Street, Fort Lauderdale, Florida, 33312 • Telephone Number: 866-449-4200 • Fax Number: 954-327-6789
ITEM # _______________________________________________
MODEL # _____________________________________________
PROJECT NAME # ______________________________________
SIS # _________________________________________________
AIA # _________________________________________________
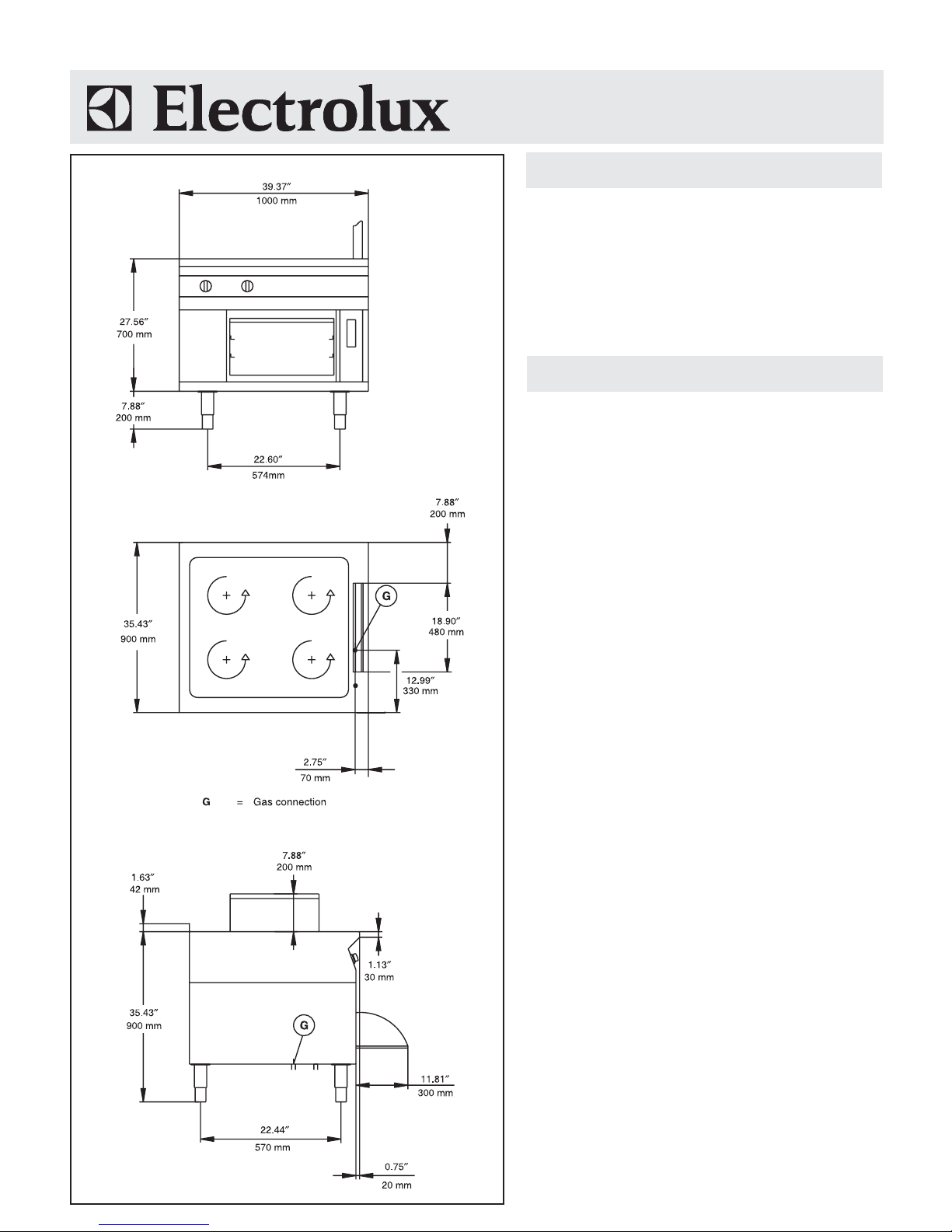
Modular Cooking Range Line
S90 Gas Solid Top on
Gas Oven, C-Board
Main features
• Gas heated, 52,000 Btu (15.3 kW) burners, solid top.
• Solid top made of mild steel, smooth pore-free and easy to clean.
• 2 heating zones independently controlled.
• Surface temperature can be regulated with two power levels up to 842 °F
(450 °C) for a very high degree of accuracy.
• Joint free large cooking surface.
• Rapid heat up of the plate and continuously ready for use.
• Setting different temperature zones provides a temperature gradient over
the plate for different cooking needs.
• Various sizes of pans can be used at the same time due to large surface
area with no intermediate sectors.
• Pans can easily be moved from one area to another without lifting.
• Base compartment consists of a gas heated standard oven with gas fired
burner for base heat. Ovens equipped with one stainless steel grid and
one enameled baking tray.
• 24,000 BTU (7 kW) Gas oven is with thermostatic valve and thermocouple
safety device.
• Oven temperature up to 644 °F (340 °C).
• Thick steel base plate in the oven for an even temperature distribution and
storage.
• Heavy duty internal frame in 304 type stainless steel.
• Control parts are protected against water and heat.
• All major components can be accessed from the front for ease of
maintenance.
• “Lasertec connection system” creates seamless work top when units are
connected to each other.
• Raised rear c-board permits unit to be connected up against the wall for
better hygiene.
• Unit delivered with four 7-7/8″(200 mm) legs as standard (all round
stainless steel kick plates as option).
Optional Accessories
• Set 4 castors (2 with brake).
• Stainless steel 0.118” (3 mm) side panel.
•5″(130 mm) portioning shelf.
•7.8″(200 mm) portioning shelf.
• All round stainless steel kick plates.
• Polinox steel wool for solid top cleaning.
Modular Cooking Range Line
S90 Gas Solid Top on Gas Oven, C-Board
Modular Cooking Range Line
S90 Gas Solid Top on Gas Oven,
C-Board