
8 www.dimplex.com
AC/DC ADAPTER REPLACEMENT
Tools Required: Phillips Head Screwdriver
Flat Head Screwdriver
CAUTION: If unit was operating prior to servicing allow
at least 10 minutes for lights, heating elements and top
panel to cool off to avoid accidental burning of skin.
WARNING: Disconnect power before attempting any
maintenance to reduce the risk of electric shock or damage
to persons.
1. Unplug the unit from power outlet.
2. Remove the front glass and set aside in a safe place.
3. Remove the rebox from the back of the mantel by
removing the retaining screws which secure the rebox
brackets to the mantel.
4. Remove the three screws along the back of the unit,
the two on either side along the top edge and the one
at the top of the glass retaining bracket on both sides.
(Figure 3)
5. Lay the Compact Fireplace on its back.
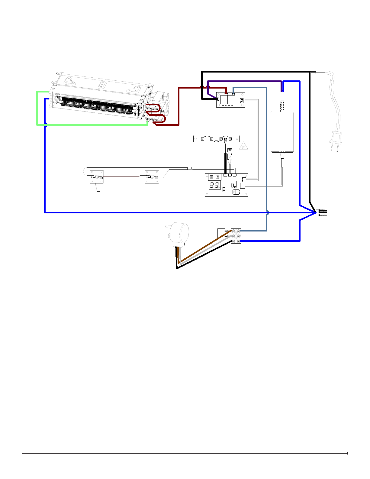
6. Gently open the top panel, laying it on the work sur-
face so that all of the components can easily be seen.
(Figure 4)
7. Locate the adapter and disconnect the wiring connec-
tions noting their original locations.
8. There is one connection located on the display/control
board that requires the board to be removed. This can
be done by removing the two screws on the right hand
side of the unit, reaching between the partially reective
panel and the back of the unit, to remove the display/
control board to remove the connection and replace it
with the new one.
9. Reinstall the display/control board.
10. Remove the adapter from the top panel by removing
the four screws securing it to the top panel.
11. Properly orient and insert the new adapter and connect
all of the wiring.
12. Reassemble in the reverse order as above.
DISPLAY/CONTROL BOARD
REPLACEMENT
Tools Required: Phillips Head Screwdriver
Flat Head Screwdriver
Needle Nose Pliers
CAUTION: If unit was operating prior to servicing allow
at least 10 minutes for lights, heating elements and top
panel to cool off to avoid accidental burning of skin.
WARNING: Disconnect power before attempting any
maintenance to reduce the risk of electric shock or damage
to persons.
1. Unplug the unit from power outlet.
2. Remove the front glass and set aside in a safe place.
3. Remove the rebox from the back of the mantel by
removing the retaining screws which secure the rebox
brackets to the mantel.
4. Remove the three screws along the back of the unit,
the two on either side along the top edge and the one
at the top of the glass retaining bracket on both sides.
(Figure 3)
5. Lay the Compact Fireplace on its back.
6. Gently open the top panel, laying it on the work sur-
face so that all of the components can easily be seen.
(Figure 4)
7. Locate the display/control board behind the partially
reective panel and remove the two screws that attach
it to the unit.
8. Disconnect the wiring connections noting their original
locations.
9. Release the display/control board from the support
panel by using needle nose pliers to depress the tab on
the mounting standoffs and gently lift the board off.
10. Properly orient and insert the new board and connect
all of the wiring.
11. Reassemble in the reverse order as above.
HEATER ASSEMBLY REPLACEMENT
Tools Required: Phillips Head Screwdriver
Flat Head Screwdriver
CAUTION: If unit was operating prior to servicing allow
at least 10 minutes for lights, heating elements and top
panel to cool off to avoid accidental burning of skin.
WARNING: Disconnect power before attempting any
maintenance to reduce the risk of electric shock or damage
to persons.
1. Unplug the unit from power outlet.
2. Remove the front glass and set aside in a safe place.
3. Remove the rebox from the back of the mantel by
removing the retaining screws which secure the rebox
brackets to the mantel.
4. Remove the three screws along the back of the unit,
the two on either side along the top edge and the one
at the top of the glass retaining bracket on both sides.
(Figure 3)
5. Lay the Compact Fireplace on its back.
6. Gently open the top panel, laying it on the work sur-
face so that all of the components can easily be seen.
(Figure 4)
7. Locate the heater assembly and disconnect the wiring
connections noting their original locations.
!NOTE: A at head screwdriver can be used to gently
pry between the end of the connector and the switch to
release the wires.
8. Remove the 4 screws that secure the top panel to the
heater assembly
9. Properly orient and install the new assembly and con-
nect all of the wiring.