
6159935540-02
Italiano
7 / 8
MANUALE D’USO MC51-10
www.desouttertools.com
1/2"
Ø3 4H11
8
113
15.5
50
10
6
Ø28
Ø12 m6
8
Ø51 Ø43
366
45
35
53
R9
±0,15
35
20°
±0,1535
M8 6H
M8 6H
Ø49 +0
- 0,10
±0,15
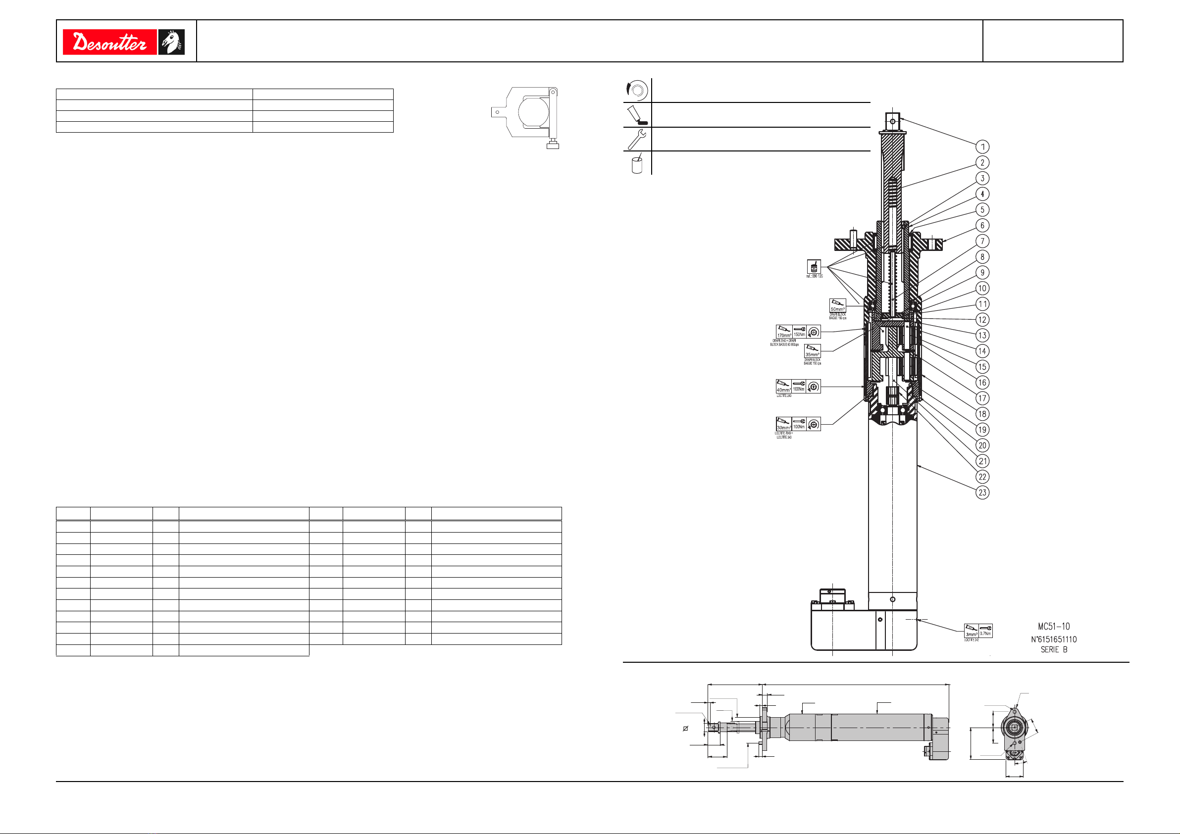
Smontaggio
1- disinnestare i cavi dell'utensile
2- smontaggio dell'albero di uscita
• sistemare la macchina in piano su un tavolo
• togliere la spina di fermo che blocca l'albero di uscita
• attenzione alla reazione della molla
3- smontaggio del motore
• sistemare una chiave poligonale chiusa da 48 in una morsa
• sistemare la macchina nella chiave poligonale chiusa
imperativamente sui piatti situati il più vicino possibile al
motore
• svitare il motore con una chiave poligonale chiusa da 40,
filettatura sinistrorsa
• se necessario, riscaldare il carter con il cannello
• togliere il giunto di accoppiamento e l'albero planetario
4- smontaggio degli stadi di riduzione
• sistemare una chiave poligonale chiusa da 48 in una morsa
• sistemare la macchina imperativamente sui piatti della corona
dei 2 primi stadi
• riscaldare con il cannello l'involucro di raccordamento del
motore
• con una chiave poligonale chiusa da 40, svitare -filettatura
sinistrorsa- il motore e il suo involucro di raccordemento
• sistemare la chiave poligonale chiusa da 40 nella morsa
• con la chiave poligonale chiusa da 48, svitare il carter di
raccordamento del motore dopo averlo riscaldato con il
cannello
• togliere le rondelle
• estrarre i portasatelliti del 1° e 2° stadio
• sistemare la macchina imperativamente sui piatti
dell'elemento deformante
• con una chiave da 48, svitare la corona dei 2 primi stadi
• estrarre il portasatelliti del 3° stadio
• con una chiave da 48, svitare la corona del 3° stadio
• estrarre dai portasatelliti, gli assi, i satelliti, le gabbie ad aghi
5- smontaggio della capsula della staffa
• togliere l'anello di tenuta della staffa
• uscire l'involucro della staffa
• rimuovere l'anello di tenuta del cuscinetto dell'involucro
• togliere il cuscinetto dell'involucro
• per togliere la guida della molla, togliere l'anello di tenuta
dell'involucro.
Attrezzatura necessaria per uno smontaggio / Montaggio completo
Denominazione N° catalogo
Chiave ad occhio da 40 6159606900
Chiave ad occhio da 48 6159605380
Chiave a denti 6158020110
Le altre attrezzature fanno parte delle attrezzature standard delle officine meccaniche.
Rimontaggio completo
Il rimontaggio non presenta particolari difficoltà.
Si consiglia di seguire tutte le indicazioni riportate, sotto forma di pittogrammi.
Nomenclatura:
Rif. Cod. artic. Qtà Descrizione Rif. Cod. artic. Qtà Descrizione
1 6155210720 1 Albero di uscita 1/2’’
2 6156811000 1 Molla di mandrino
3 6157901390 1 Aghi
4 6152250490 1 Capsula di ritenuta
5 6157850670 1 Bussole ad aghi
6 6155704360 1 Staffa
7 6155952320 1 Guida molla
8 6156890350 1 Anello di tenuta
9 6157580570 1 Cuscinetto
10 687.52 1 Anello di tenuta
11 657.98 1 Guarnizione cilindrica
12 687.35 1 Anello di tenuta
13 6154751370 1 Portasatelliti
14 6157900520 6 Asse
15 788.16 12 Gabbia ad aghi
16 6154700920 6 Satellite
17 6154751100 1 Portasatelliti
18 6154760620 1 Corona
19 642.65 2 Rondella
20 566.483 1 Carter di raccordo
21 6155800890 1 Albero planetario
22 575.102 1 Giunto di accoppiamento
23 6153941640 1 Motore
Significato dei pittogrammi
Filettatura sinistrorsa
Al rimontaggio, incollare con la colla indicata
Al rimontaggio, serrare secondo la coppia indicata
Al rimontaggio, ingrassare con il grasso indicato