
5
26/04/2011 - 300019419-001-C AD249
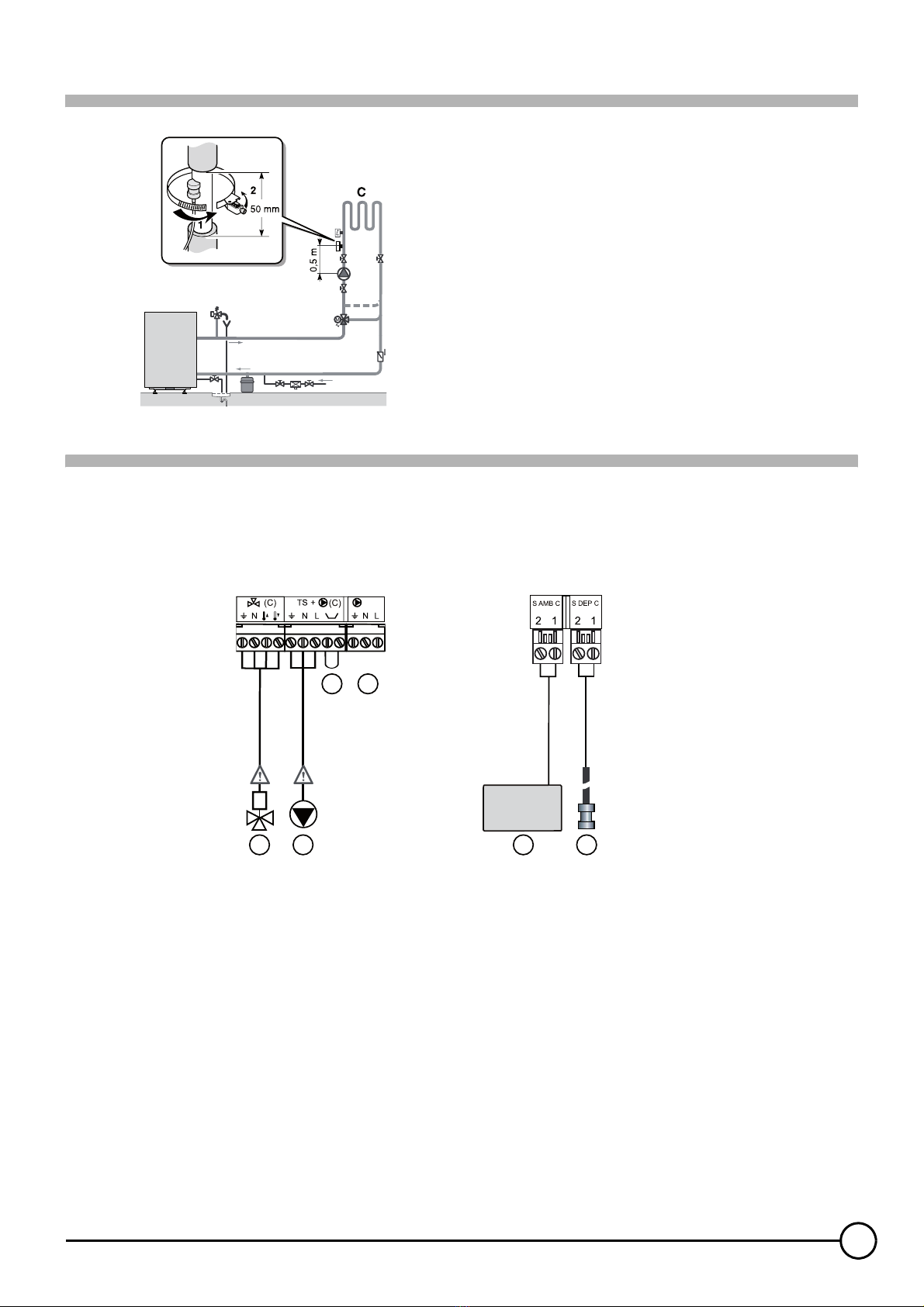
3 Vorlauffühler montieren
Den Fühler am Vorlaufrohr von Kreis C montieren. Den Fühler etwa
0,5 m nach dem Dreiwegemischer anbringen, oder nach dem
Beschleuniger, wenn dieser am Vorlauf angebracht ist. Hierzu:
1. Rohrisolierung auf 50 mm ausschneiden.
2. An der Stelle wo der Fühler anzubringen ist, muss die
Rohrleitung vollständig gereinigt werden (es dürfen keine
Farbrückstände bleiben) und mit der mitgelieferten
Wärmeleitpaste versehen werden.
3. Den Fühler mittels mitgelieferten Spannbandes befestigen.
Der Vorlauffühler darf nicht mit der Isolierung bedeckt werden.
4 Elektrischer Anschluss
Es dürfen in keinem Fall 230 V führende Kabel zusammen
mit Fühlerkabeln in einem Rohr oder Kabelkanal verlegt
werden. Zusätzlich ist ein minimaler Abstand von 10 cm
zwischen Fühlerkabel und 230 V-Kabel einzuhalten.
Dreiwegemischer Kreis C
- Bei Mischer mit Stellmotor: Öffnung an Klemme 2,
Verschluss an Klemme 3, Nulleiter an Klemme N und Erde
an Klemme 4anschließen.
- Bei Mischer mit thermischem Motor: Zwischen der Klemme
2(Öffnung) und der Klemme N anschließen.
Pumpe Kreis C
Brücke werkseitig montiert
Bei Fußbodenheizung muss unbedingt die Mischerkreis-
Maximaltemperatur auf 50°C eingestellt sein und ein
Temperaturbegrenzer am Mischerkreis-Vorlauf montiert
werden, der bei 65°C (cf. NF P 52-303-1) zur Vermeidung
einer Überhitzung die Heizungspumpe unterbricht
(Übertemperatursicherung).
Brücke abnehmen und Drähte des
Sichertheitstemperaturwächters anschließen.
Zusatzpumpe:
Siehe Installations- und Wartungsanleitung des
Heizgenerators (siehe Kapitel: Elektrische Anschlüsse).
Fernbedienung (Optional)
Den Stecker 2 verwenden, der im Kolli geliefert wird.
Vorlauffühler Kreis C
Den im Kolli gelieferten Fühler verwenden.
C002456-A
AUX
1 2 5 6
3 4
2 x 0,75mm
2
mini.
3 x 0,75mm
2
mini.
4 x 0,75mm
2
mini.
0,75mm
2
mini.
C002457-A