
IV
Table of Contents
Foreword............................................................................................................................................................ I
Important Safeguards and Warnings............................................................................................................. III
1 Structure ........................................................................................................................................................ 1
Introduction.................................................................................................................................................................................1
Features .........................................................................................................................................................................................1
Front Panel....................................................................................................................................................................................1
1.3.1 7-inch VTH .......................................................................................................................................................................1
1.3.2 4.3-inch VTH....................................................................................................................................................................2
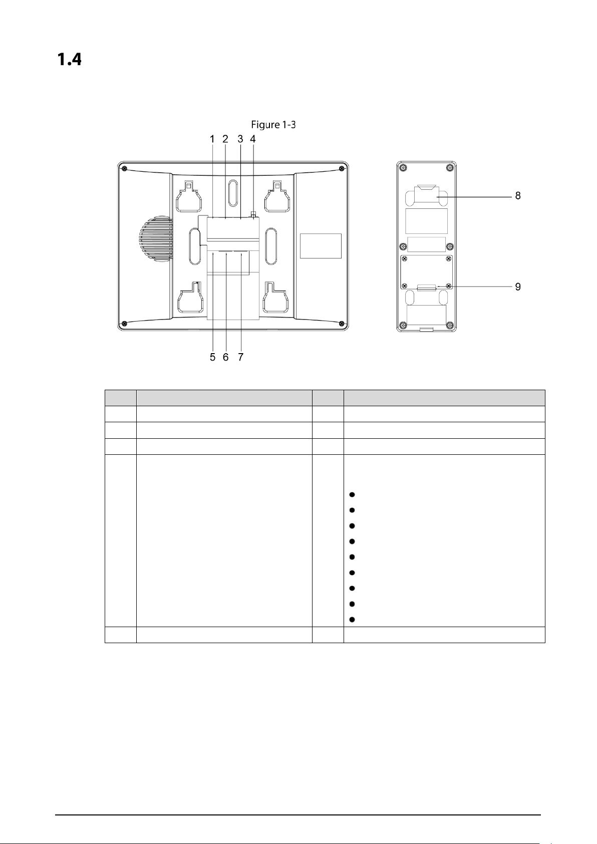
Rear Panel .....................................................................................................................................................................................4
2 Installation..................................................................................................................................................... 5
VTH ..................................................................................................................................................................................................5
VTO ..................................................................................................................................................................................................6
3 Wiring............................................................................................................................................................. 8
Preparations.................................................................................................................................................................................8
3.1.1 Port Connection Rules ................................................................................................................................................8
3.1.2 Cord Specification.........................................................................................................................................................8
Wiring One VTO and One VTH...............................................................................................................................................9
Wiring Three VTOs and One VTH ........................................................................................................................................10
Wiring Two VTOs and Three VTHs ......................................................................................................................................11
4 Menu Operations......................................................................................................................................... 12
Snapshots....................................................................................................................................................................................12
Time...............................................................................................................................................................................................14
Restoring to Default Settings ..............................................................................................................................................14
Cybersecurity Recommendations............................................................................................. 16