
02/27/2008 9:08:37 AM
Consult your representative for additional options and finishes.
Specifications and Dimensions subject to change without notice.
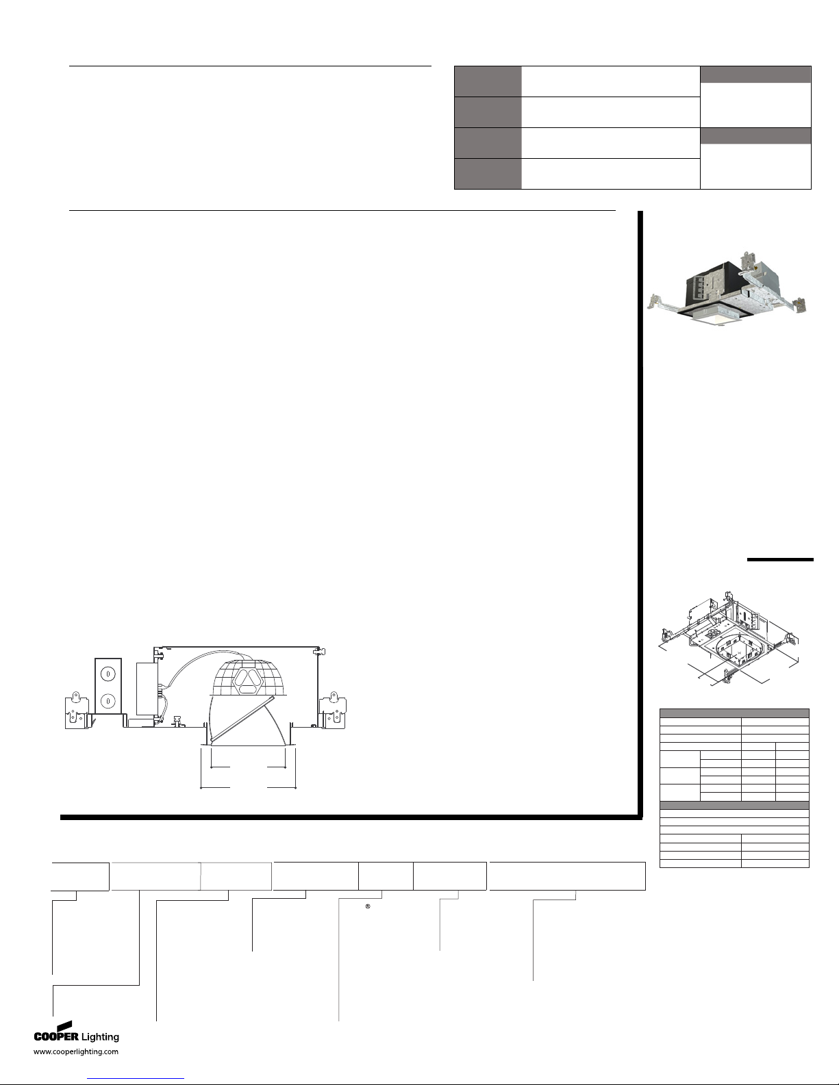
Recessed lens wall wash luminaire with 4 inch square aperture utilizing
horizontal 26W DTT or 26/32/42W TTT compact fluorescent lamps. Modular
platform can be reconfigured from below the ceiling to accept a broad range
of lamp modules and optical elements. Platform is suitable for shallow
plenum commercial construction. Insulation must be kept 3" from top and
sides of housing. Platform + module + element combination produces
smooth vertical illumination with a minimal downlight component.
Galvanized steel plaster frame with
integral bar hanger receivers. Set-
screws provide positive horizontal
Matte black steel collar adjusts
vertically for 1/2" - 1" thick ceilings
and can be rotated +/- 7.5° thru the
aperture. Integral gun sights facili-
tate the use of guide strings or
laser lines. Shipped with a paint
Installed or removed thru the
aperture or from the top and
allows lamp orientation at 0°, 90°,
180° and 270° positions (except
26W DTT or 42W TTT lamps).
Steel housing painted matte black
for a visually dark interior. Remo-
vable hinged top allows for top
access. All fasteners are captive.
Closed cell gaskets achieve
restrictive airflow requirements
without additional caulking.
Mousetrap type springs pull flange
tight to ceiling. Light trap elimi-
nates spill light at edge of flange
and reflector. Available in self-
flanged or metal trim ring versions.
May also be installed rimless using
optional plastering lathing ring.
Captive preinstalled bar hangers
adjusts from 8-1/2" to 24" wide;
pass thru feature allows shortening
without removal. Captive nail
penetrates standard and engi-
neered lumber. Mounting flange
levels platform with ceiling. Inte-
gral clip attaches directly to t-bar.
Provides 3" of vertical adjustment
and accept 1/2" EMT, C channel or
Miro® Erotek segmented upper
reflector. Accepts 26W DTT or
Specular aluminum kicker reflector
integral with angle cut parabolic
shielding prismatoid and glass
spread lens. Provides smooth
vertical illumination with a minimal
downlight component. Available in
a wide range of semi specular
(7) 1/2" trade size pry outs, (3)
integral clamps for non-metallic
cable. Rated for (8) #12 thru branch
circuits. Wago® type push wire
connectors for field connections
Self-resetting thermal protector
protects against improper lamping
and direct contact with insulation.
Universal input electronic ballast
features multi-watt capability
operating 26W DTT and 26/32/42W
TTT lamps with full lumen output.
Programmed rapid start allows use
with occupancy sensors and
building control systems.
4 pin Gx24q3/4 base with rotary
lock socket ensures positive lamp
retention. Lamp socket locks into
one of two positions accommo-
dating different lamp lengths.
Thermally protected and cULus
listed for protected wet locations
and ASTM-E283 AIRTITE(tm).
26W DTT, or
26/32/42W TTT
Compact
Fluorescent
4 Inch Square Lens Wall Wash
4-1/2”
(114mm)
5-3/4”
(146mm)
ENERGY DATA
Min. Starting Temp -18°C Sound Rating Class A
EMI/RFI Emissions FCC Part 18 Input Frequency 50/60 Hz
Power Factor > 0.98 THD < 10%
Input Voltage 120V - 277V 347V
26W Input Power 29W 31W
Input Current 0.24A 0.09A
32W Input Power 36W 36W
Input Current 0.31A 0.11A
42W Input Power 46W 50W
Input Current 0.38A 0.15A
ENERGY DATA - DIMMING
Min. Starting Temp 10°C
Sound Rating Inaudible in a 27dBa Ambient
EMI/RFI Emissions FCC Part 18 Consumer Limits
Input Frequency 60 Hz Power Factor > 0.95
Input Voltage 120V THD < 20%
26W Input Current 0.27A
32W Input Current 0.33A
14-9/16”
(370mm)
8-1/2”
(216mm)
4-9/16”
(115mm)
5-1/8”
(130mm)
Cutout=5-3/16”
(132mm)
ORDERING INFORMATION: Complete unit consists of platform, lamp module and optical element.
MH4CFL = Horizontal
Compact Fluorescent
Lamp Module
E4LWW = 4" Square
Aperture Lower
Shielding
Prismatoid,
Lens Wall Wash
Finish
Optical Element
Lamp Module Flange
MH4CFL
42E = 26W DTT
26/32/42W TTT
120-277V UNV
423E = 26W DTT
26/32/42W TTT 347V
Ballast Option Accessories
1D26 = 26W
DTT/TTT
Lutron TuWire
Dimming 120V
1D32 = 32W TTT
Lutron TuWire
Dimming 120V
[Blank] = Metal Trim
Ring, Matte White
SF = Self Flanged
SFWF = Self Flanged,
Matte White Flange
PLR4x4 = Plaster lathing ring for rimless
RLA4x4 = Rimless adapter for solid ceiling
surfaces
MTR4MW = Metal trim ring, matte white
MTR4MB = Metal trim ring, matte black
MTR4SN = Metal trim ring, satin nickel
MTR4AC = Metal trim ring, antique copper
MTR4TBZ = Metal trim ring, tuscan bronze
Alzak Finishes
H = Clear Haze
WMH = Warm Haze
WHH = Wheat Haze
Painted Finishes
MW = Matte White
MB = Matte Black
BH = Black Haze
KH = Cognac Haze
GPH = Graphite Haze
CTH = Cobalt Haze
CCH = Chocolate Haze
P406TCP = 4”
Square Aperture
Non-IC Chicago
Plenum Housing
Platform
P406TAT = 4”
Square Aperture
Non-IC Housing