
231-2000815 Rev. 0
Safety Information
READ AND SAVE THESE INSTRUCTIONS
IN THE COMMONWEALTH OF MASSACHUSETTS
■This product must be installed by a licensed plumber
or gas fitter.
■ Whenusingballtypegasshut-offvalves,theyshall
be the T-handle type.
■ Aflexiblegasconnector,whenused,mustnotexceed
5 feet.
WARNING FIRE OR EXPLOSION HAZARD
Iftheinformationinthismanualisnotfollowedexactly,
afireorexplosionmayresultcausingpropertydamage,
personal injury or death.
Installation must be performed by a qualified installer.
Read these instructions completely and carefully.
Installationofthisrangemustconformwithlocalcodes,
orintheabsenceoflocalcodes,withtheNational
FuelGasCode,ANSIZ223.1/NFPA.54,latestedition.
InCanada,installationmustconformwiththecurrent
NaturalGasInstallationCode,CAN/CGA-B149.1or
thecurrentPropane(LP)InstallationCode,CAN/CGA-
B149.2,andwithlocalcodeswhereapplicable.This
range has been design-certified by CSA International
accordingtoANSIZ21.1,latesteditionandCanadian
GasAssociationaccordingtoCAN/CGA-1.1latestedition.
When installing a gas appliance the use of
oldflexibleconnectorscancausegasleaksand
personalinjury.AlwaysuseaNEWflexibleconnector.
Leak testing of the appliance shall be conducted
according to the manufacturer instructions.
The range must be electrically grounded in accordance
withlocalcodesor,intheabsenceoflocalcodes,in
accordancewiththeNationalElectricalCode(ANSI/
NFPA70,latestedition).InCanada,electricalgrounding
must be in accordance with the current CSA C22.1
CanadianElectricalCodePart1and/orlocalcodes.See
Electrical Connections in this section.
Do not install this product with an air curtain hood or
other range hood that operates by blowing air down on
the cooktop. This airflow may interfere with operation of
thegasburnersresultinginfireorexplosionhazard.
FOR YOUR SAFETY
If you did not receive an anti-tip bracket with your
purchase,contactusatcafeappliances.com to
receive one at no cost.
(InCanada,cafeappliances.ca.)
Forinstallationinstructionsofthebracket,visit:
cafeappliances.com.(InCanada,cafeappliances.ca.)
WARNING Beforebeginningtheinstallation,
switch power off at service panel and lock the service
disconnecting means to prevent power from being
switched on accidentally. When the service disconnecting
meanscannotbelocked,securelyfastenaprominent
warningdevice,suchasatag,totheservicepanel.
Have a question or need assistance with your appliance? Try the Caféwebsite 24 hours a day, any day of the
year! You can also shop for more great Caféproducts and take advantage of all our on-line support services
designed for your convenience. In the US: cafeappliances.com. (In Canada, cafeappliances.ca.)
• A child or adult can tip the range and be killed.
• Install the anti-tip bracket to the wall or floor.
• Engage the range to the anti-tip bracket by sliding the
range back such that the foot is engaged.
• Re-engage the anti-tip bracket if the range is moved.
• Failure to do so can result in death or serious burns
to children or adults.
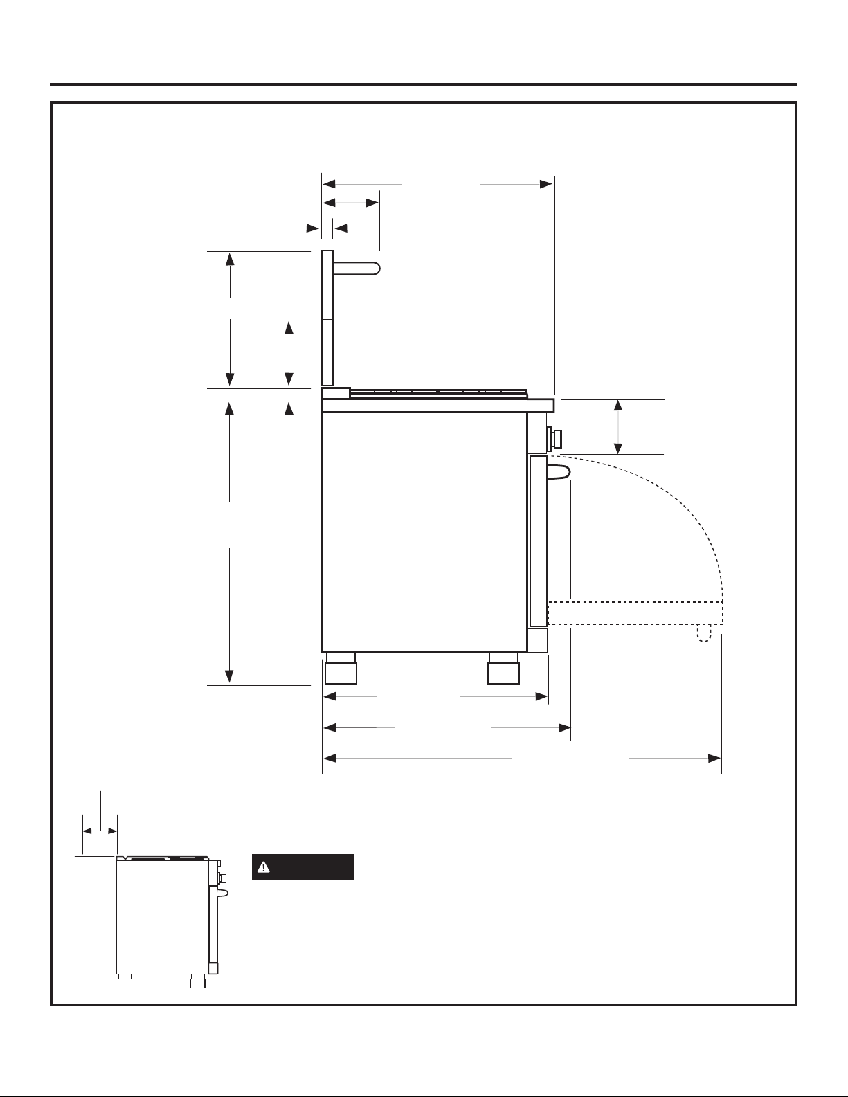
Tip-Over Hazard
Anti-Tip Bracket
Kit Included
Rear View