
Features
Related Products
Item#
Project
Dat e
For current specification sheets and other information, go to www.bunn.com.
3/13 A2.12
Model Agency Listing
Dual TF DBC
BrewWISE®Brewing System with ThermoFresh®Servers
• Brews 16.3 to 18.9 gallons (61.7 to 71.5 litres) of perfect coffee per hour.
• Stores individual coffee recipes so operator can easily brew many varieties.
• Coffee extraction controlled with pre-infusion and pulse brew, digital
temperature control, and large sprayhead; coffee strength controlled with
variable by-pass.
• Easy pulse interface allows automatic programming of pulse routine.
• Operate any combination of BrewWISE®equipment error-free with wireless
brewer-grinder interface through the Smart Funnel®.
• SplashGard®funnel and optional funnel locks help improve safety.
• Energy saver mode reduces tank temperature during idle periods.
• Black and stainless models available.
• ThermoFresh®servers are vacuum insulated to keep coffee hot for hours.
• Create coffee recipe cards with custom recipes, ad cards with messages
that display on the brewer LCD, and dedicated funnels for special coffees
with the BrewWISE Recipe Writer using your PC (Windows®compatible).
• Preventive maintenance kit: 39641.0000.
BrewWISE®Dual ThermoFresh®
DBC Brewer
Dual TF DBC with
1.5 gallon TF Servers
(servers sold separately)
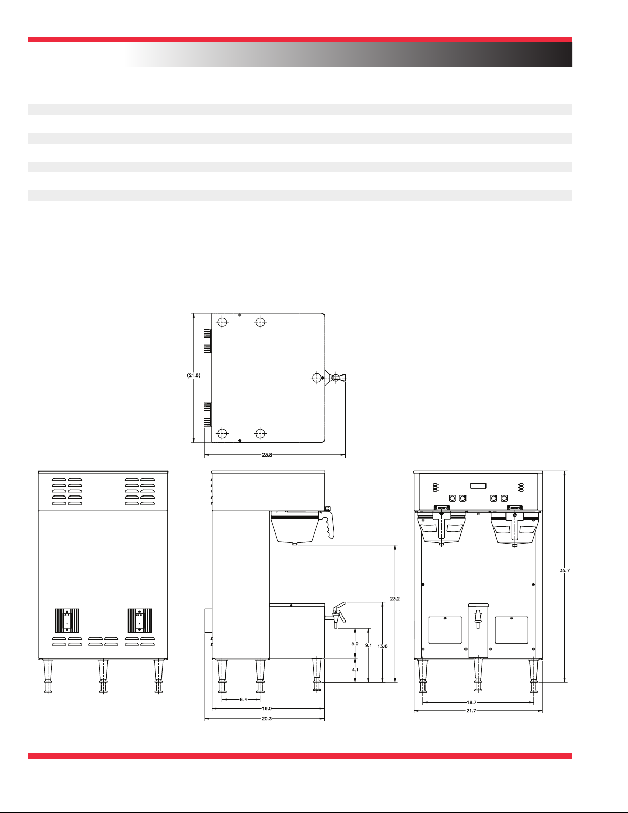
Dimensions: 35.7” H x 21.8” W x 20.2” D
(90.7cm H x 55.4cm W x 51.3cm D)
ULLISTED
Stainless steel finish available.
Easy Clear®EQHP-25L
Product No. : 39000.0002
Easy Clear®EQHP-25
Product No. : 39000.0005
Single/Dual Filter Pack
Product No. : 20138.0000
Packed per case: 500
Dimensions:
51⁄
4
" Base x 41⁄
4
" Sidewall
13.3
cm
Base x 10.8
cm
Sidewall
Multi-Hopper Grinder (MHG)
Product No.: 35600.0002
Black finish
BrewWISE®Recipe Writer (BRW)
Product No.: 34444.0000
Recipe Card
Product No.: 34447.0000
• Program a recipe to be used on brewer
or grinder.
Ad Card
Product No.: 34448.0000
• Program a message to appear on the
brewer’s display.
1 gallon TF Server
Product No.:44000.0000
Product No.:44000.0001
(black)
1.5 gallon TF Server
Product No.:44050.0000
Product No.:44050.0001
(black)
1 gallon Digital TF Server
Product No.:42700.0000
Product No.:42700.0001
(black)
1.5 gallon Digital TF Server
Product No.:42750.0000
Product No.:42750.0001
(black)