
6 720 610 601 GB (03.02)
2
Contents
Contents
Safety recautions 3
Symbols 3
1 Details of the a liance 4
1.1 EC Declaration of Conformity 4
1.2 Standard package 4
1.3 Description of appliance 4
1.4 Accessories 5
1.5 Casing dimensions 5
1.6 Layo t of appliance 6
1.7 F nction (with optional extra motorised valve) 7
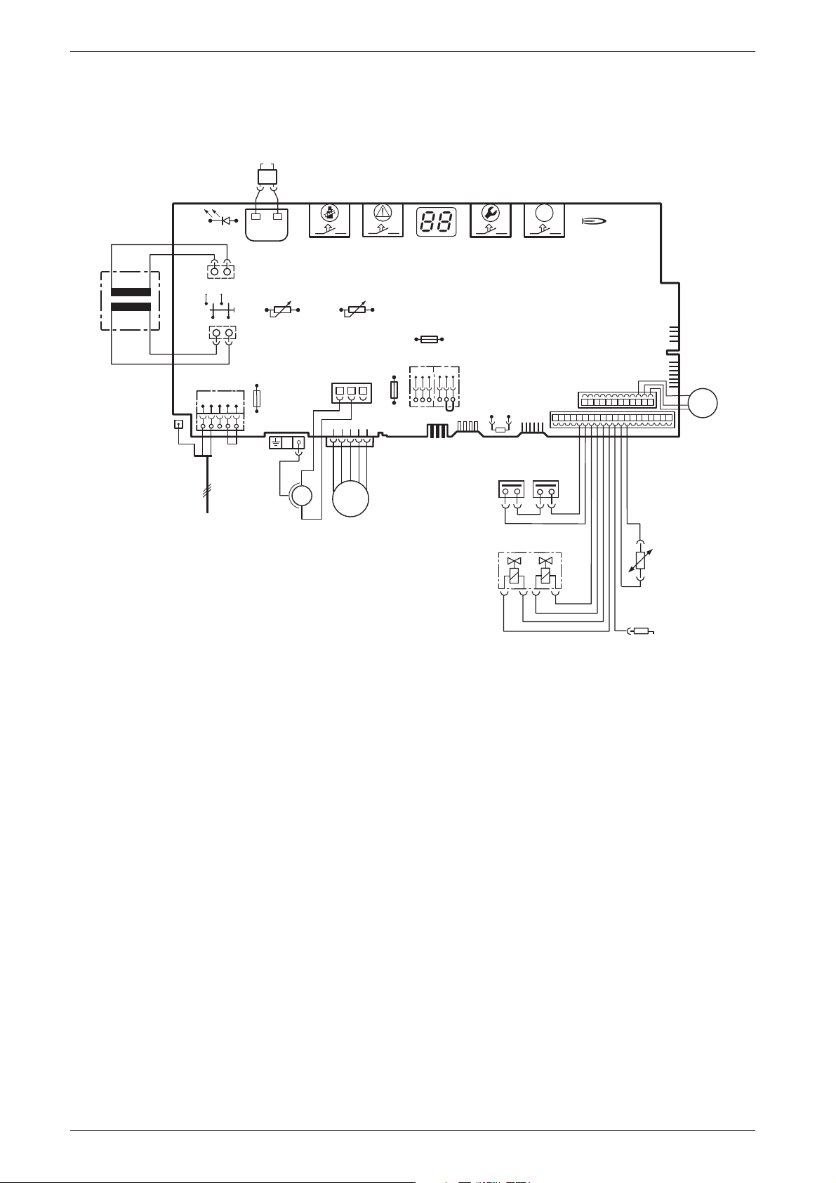
1.8 Electrical wiring diagram 8
1.9 Technical data 9
2 Installation regulations 10
3 Installation 11
3.1 Important remarks 11
3.2 Sealed systems 11
3.3 Siting the appliance 13
3.4 Wall mo nting frame assembly 14
3.5 Pre-piping the system 14
3.6 Fitting the appliance 15
3.7 Checking the connections 16
3.8 Fl e Systems 16
3.8.1 Siting the Fl e Terminal 17
3.8.2 Installation of the fl e 18
3.8.3 Fl e d ct preparation and assembly 20
4 Electrical connections 21
4.1 Connecting the appliance 21
4.2 Mains Voltage external controls connections 22
4.3 Wiring to yo r system 22
4.3.1 Pre-wired Remote S Plan 22
5 Commissioning 23
5.1 Commissioning 23
5.2 Switching the appliance on/off 24
5.3 Switching on the central heating 24
5.4 System controls 24
5.5 Appliances with optional pl g-in
diverter valve: Setting hot water temperat re 25
5.6 Frost protection 25
5.7 P mp anti-seize f nction 25
5.8 Fa lt Condition 25
6 Individual settings 26
6.1 Mechanical settings 26
6.1.1 Checking the size of the expansion vessel 26
6.1.2 Setting the central heating flow temperat re 26
6.1.3 Changing the heating p mp characteristic 26
6.2 Settings on the Bosch Heatronic 27
6.2.1 Operating the Bosch Heatronic 27
6.2.2 Selecting the p mp control mode for central
heating mode (Service F nction 2.2) 27
6.2.3 Setting the anti-cycle time
(Service F nction 2.4) 27
6.2.4 Setting the maxim CH flow temperat re
(Service F nction 2.5) 28
6.2.5 Setting the switching difference
(Service F nction 2.6) 28
6.2.6 Setting the heating o tp t
(Service F nction 5.0) 28
6.3 Setting the gas/air ratio 28
7 Converting the a liance to
different gas ty es 29
7.1 Setting the gas/air ratio 29
7.2 Testing comb stion air/fl e gas at set
heat o tp t 31
7.2.1 Testing the O
2
or CO
2
level in the
comb stion air 31
7.2.2 Testing CO and CO
2
31
8 Maintenance 32
8.1 Pre-Service Check List 33
8.2 Description of servicing operations 34
8.3 Replacement of Parts 37
8.3.1 PCB control board and transformer 37
8.3.2 Fan Assembly 38
8.3.3 P mp 38
8.3.4 3-way diverter valve 38
8.3.5 3-way diverter valve motor 39
8.3.6 Sensors 39
8.3.7 Gas Valve 39
8.3.8 Electrode assembly 39
8.3.9 Press re ga ge 40
8.3.10Expansion vessel 40
8.3.11Press re Relief Valve 40
8.3.12B rner 40
8.3.13Primary Heat Exchanger 40
9 A endix 41
9.1 Fa lt Codes 41
9.2 Short parts list 42
9.3 Heating/hot water o tp t settings (N.G) 42
9.4 Heating/hot water o tp t settings (L.P.G) 42
9.5 Operational Flow diagrams 43
9.5.1 Central heating f nction 43