SIZE: DRAWN BY:
B
100 ENTERPRISE DRIVE
PITTSBURGH, PA 15275
PHONE: (412) 249-4100
FAX: (412) 249-4101
EMAIL: www.beasensors.com
REV BY:
KJG TUC
SCALE: DATE:
NONE 11/01/07
PART NO:
SHEET
1 OF 1
TITLE: HORTON 4160-1, 2 CONTROL with
LO-21, LO21U, BODYGUARD
80.0100.03
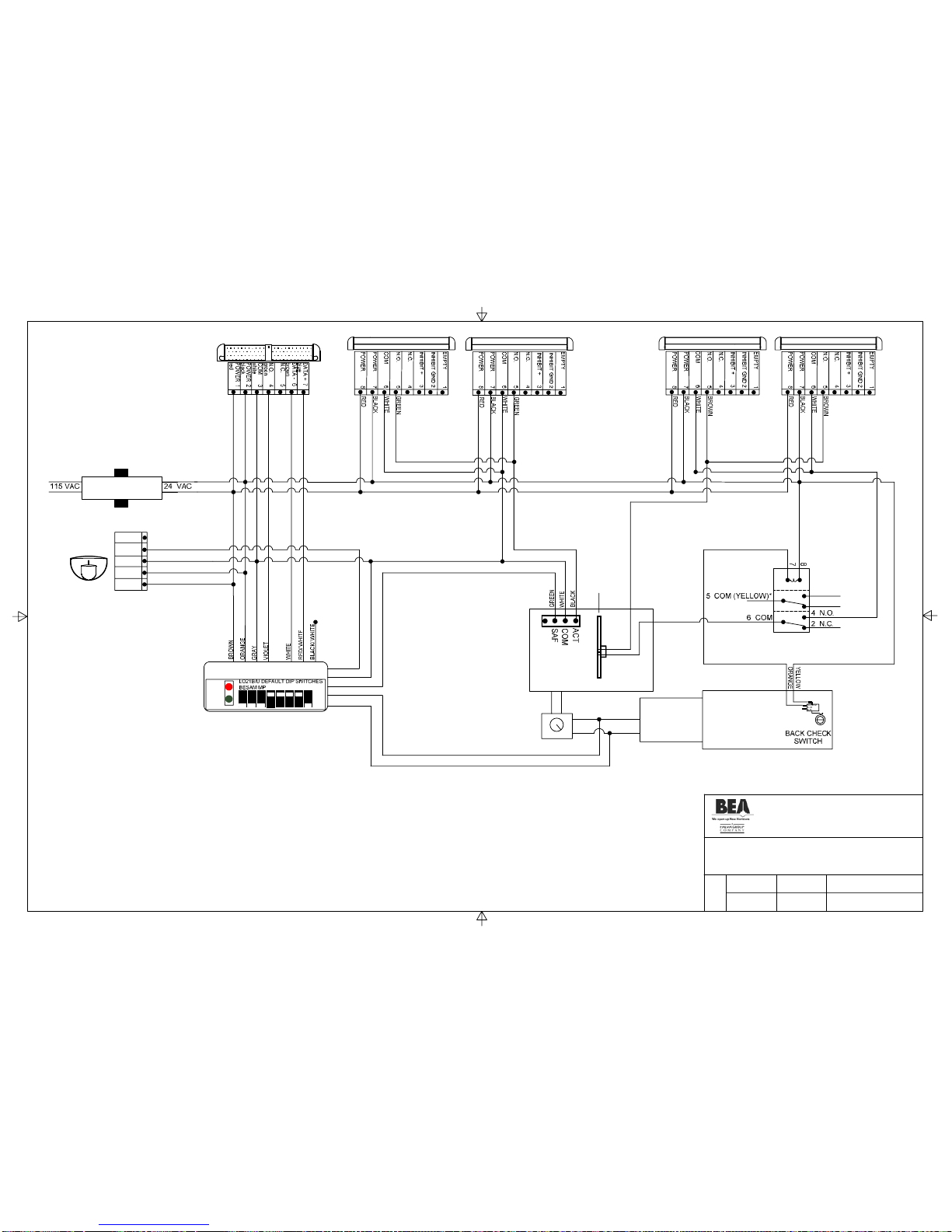
BROWN
ORANGE
VIOLET
RED
BLACK
GREEN
YELLOW
BLUE
DATA + 7
blue
DATA - 6
brown
N.C. 5
N.O. 4
green
COM 3
white
POWER 2
black
POWER 1
red
BODYGUARD
GRAY
WHITE
RED/WHITE
24 V
TRANSFORMER
BLACK/ WHITE
HORTON 4160-1,2
DOOR
CONTROL
ACTIVATE
(BLACK)
COMMON
(WHITE)
SAFETY
(GREEN)
OPERATOR
MOTOR
MOTOR VOLTAGE
+-
NOTES: 1 ) BEA RECOMMENDS USING THE LO-21
2 ) LO-21 RED AND BLACK WIRES MUST CONNECT TO THE CORRECT MOTOR POLARITY, RED=POSITIVE, BLACK=NEGATIVE.
3 ) WHEN USING DC VOLTAGE, POLARITY MUST BE MAINTAINED AS ORANGE: (-) BROWN: (+)
4 ) NOTE REF LO21: CONNECT THE DASHED LINES
GREEN,BLUE,BLACK/WHITE,PURPLE, & GRAY IF SBK BEAMS ARE USED. IF DRY CONTACT BEAMS (MICROCELL BEAMS)
ARE USED CONNECT MICROCELL COM. & N.O. TO PURPLE & GRAY RESPECTIVLEY, THEN BLUE & GREEN TO DOOR CONTROL COM. & SAFETY RESPECTIVLEY.
RED
GREEN OFF
ON
LO21 DEFAULT DIP SWITCHES
BROWN
ORANGE
BLUE
RED
BLACK
EMITTER
RECEIVER
+- +-
BROWN
GREEN
WHITE
WHITE
BROWN
24 V
TRANSFORMER
BLACK/ WHITE
PURPLE
GRAY
DATA + 7
blue
DATA - 6
brown
N.C. 5
N.O. 4
green
COM 3
white
POWER 2
black
POWER 1
red
BODYGUARD
GREEN
RED/WHITE
WHITE
HORTON 4160-1,2
DOOR
CONTROL
OPERATOR
MOTOR
MOTOR VOLTAGE
+-
ACTIVATE
(BLACK)
COMMON
(WHITE)
SAFETY
(GREEN)
IF AFTER TROUBLESHOOTING A PROBLEM, A SATISFACTORY SOLUTION CANNOT BE ACHIEVED, PLEASE CALL B.E.A., INC. FOR FURTHER ASSISTANCE DURING EASTERN STANDARD TIME
AT 1-800-523-2462 FROM 8AM - 5PM. FOR AFTER-HOURS, CALL EAST COAST: 1-866-836-1863 OR 1-800-407-4545 / MID-WEST: 1-888-308-8843 / WEST COAST: 1-888-419-2564. DO NOT LEAVE
ANY PROBLEM UNRESOLVED. IF YOU MUST WAIT FOR THE FOLLOWING WORKDAY TO CALL B.E.A., LEAVE THE DOOR INOPERABLE UNTIL SATISFACTORY REPAIRS CAN BE MADE. NEVER
SACRIFICE THE SAFE OPERATION OF THE AUTOMATIC DOOR OR GATE FOR AN INCOMPLETE SOLUTION.WEB: WWW.BEASENSORS.COM
RED
GREEN OFF
ON
LO21B/U
RA WH 1
RA BL 2
EA WH 3
EA BL 4 5 NC
4 NO
3 COM
2 12-24 VAC/DC
1 12-24 VAC/DC
RB WH 1
RB BL 2
EB WH 3
EB BL 4
* RECEIVER (A), EMITTER (A)
RECEIVER (B), EMITTER(B)
WH= WHITE,BL= BLACK
MICROCELL ONE
ON
1 2 3 4