8 / 18 P/N 466-5570 (EN) • REV E • ISS 22MAR22
relevant standards for safety, emission, and immunity to
environmental electrical and electromagnetic interference.
If the following guidelines are followed, the system will give
many years of reliable service.
In addition to the following guidelines, during the installation of
the Advisor Advanced control panel, it is essential to follow any
country-dependent local standard requirements applicable to
the installation. Only a qualified electrician or other suitably
trained and qualified person should attempt to wire this system
to the AC mains or to the public telephone network.
•Ensure that there is a good earth available for the alarm
system.
•Maintain a separation between low voltage and mains
supply cables. Use separate points of cable entry to the
control panel cabinet.
•If the upper and/or lower cabinet entry cable holes are
used to route wiring into the control panel, always use
a proper pipe fitting system by means of an appropriate
conduit and junction box. For this purpose, use only
materials of suitable flammability class (HB or better).
•For mains power connection, use the mains connector
terminal either through a permanent wiring or a flexible
mains cable to an earthed mains outlet. Always use cable
ties to fix the mains cable at the dedicated fixing point
provided near the mains terminal connector.
- When installing permanent, fixed wiring, insert an easily
accessible, dedicated all-pole circuit breaker in the power
distribution network.
- Never attempt to solder mains connection wires at the
ends where they will be wired to the terminal connectors.
•Avoid loops of wire inside the control panel cabinet and
route cables so that they do not lie on top or underneath of
the printed circuit board. The use of cable ties is
recommended and improves neatness of the wiring within
the box.
•The battery used with this unit, must be made of materials
of suitable flammability class (HB or better).
•Any circuit connected either directly to the onboard relay
contacts or to the external relay contacts through the
onboard electronic output must be rated as a SELV (safety
extra-low voltage) operating circuit.
- A mains switching relay must not be fitted inside the
control panel cabinet.
- Always place a suppression diode (e.g. a 1N4001)
across the relay coil.
- Use only relays with good insulation between the
contacts and the coil.
- Maximum cable length for open collector output
connection may not exceed 30 m. For longer distances,
use relay output expansion (for example, ATS624 four-
relay expander).
•The minimum clearance between equipment closures is
50 mm (between equipment vents).
•Only use these units in a clean environment and not in
humid air. Environmental requirements are given in
“Specifications” on page 9.
•For the panel terminal connections, the recommended
torque is 0,3 to 0,4 N·m. This torque setting is
independent from the AWG (thickness) of the wires used.
A value of 0,4 N·m is also the maximum allowed torque for
this connector.
Earthing
WARNING: The correct earthing procedures must be followed.
Earthing of one cabinet containing several devices
All devices designed for the system have earth connections via
metal studs to the metal housing. Make sure that these metal
studs make good connection to the housing (beware of paint).
The earth connections of every piece of equipment in the
system can be used for connecting the screen of shielded
cables. Ensure that all internal protective bonding wires make
reliable connection with the building protective earthing wire.
Earthing panels in a single building
In one building several cabinets or devices are earthed to
a safety ground.
The safety ground for the building must be checked by
a licensed contractor.
Earthing panels in more buildings
If the wiring extends to separate buildings, more than one
common earth system will be used. Use ATS1740
isolator/repeaters to isolate the system databus. In this way the
system is protected against variations in earth potential.
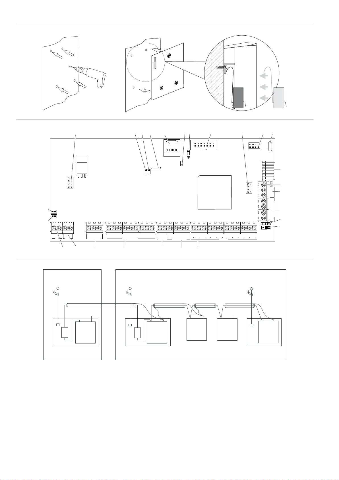
Shielding
The shielding of all shielded cables used in the system should
only be connected at one side to one common earthing point in
a building (see Figure 9). If a shielded databus cable is routed
via more than one plastic device the shielding from incoming
and outgoing cable must be connected.
In case the IP connection is used, take care that the Ethernet
FTP cable remains within a single building. Do make use of
a proper router or switcher to isolate Ethernet cables between
various buildings.
Figure 9: System shielding
(1) Building 1
(2) Building 2
(3) Mains power with local earth
(4) Earth and shielding
(5) Mains power connector
(6) Advisor Advanced control panel
(7) System databus
(8) Device in plastic housing
(9) Device in metal housing
Cabling
System databus preferred wiring
The terminator jumper (also called TERM link), or DIP switch
must be ON, or a 470 Ωresistor must be fitted at each of the
devices at the extreme ends of the daisy chained databus. In
a star-wiring configuration, the TERM link is only fitted on the
devices at the ends of the two longest system databus cable
runs.