
- 4 - HubSat4Di Installation Guide
7. Plug the RJ45 connector at one end of the CAT-5 or higher structured cable into the RJ45 jack marked
[PVD1] on HubSat4Di (Fig. 1i, pg. 6). Plug the RJ45 connector at the opposite end of the CAT-5 or
higher structured cable into the RJ45 jack of the Video Balun/Combiner to be installed at camera 1.
• For 24VAC cameras use Altronix model HubWayAv/HubWayAv2 Video Balun/Combiner
(Figs. 2a, 2b, 2e. pg. 7).
• For 12VDC cameras use Altronix model HubWayDv Video Balun/Combiner (Figs. 2c, 2d, pg. 7).
The total cable distance must not exceed 750 ft. for video transmission between the HubSat4Di and each
camera. Repeat this step for all other camera channels [PVD2-4].
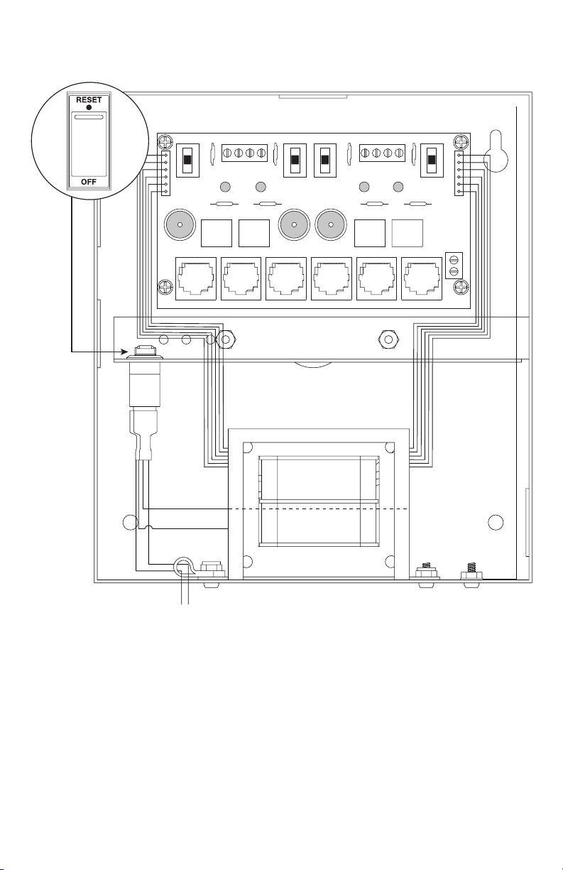
8. Set illuminated master power disconnect circuit breaker to the RESET (ON) position (Fig. 4a, pg. 8).
Power LEDs (Green) of the HubSat will illuminate when AC power is present (Fig. 1e, pg. 6) and
HubWayAv and HubWayDv Video Balun/Combiner LEDs will illuminate indicating power is present
(Fig. 2b, 2d, pg. 7).
9. Measure the output voltage at each Video Balun/Combiner (Figs. 2b, 2d, pg. 7) before making connections
to each camera to ensure proper operation and avoid possible damage.
10. Set illuminated master power disconnect circuit breaker to the (OFF) position (Fig. 4a, pg. 8).
11. Connect power outputs of HubWayAv, HubWayAv2 or HubWayDv Video Balun/Combiners to power
inputs of cameras (Figs. 2a-2e, pg. 7). Polarity must be observed.
• HubWayAv/HubWayAv2 - Terminals marked [AC POWER] (Figs. 2a, 2b, 2e, pg. 7).
• HubWayDv - Terminals marked [– 12VDC +] (Figs. 2c, 2d, pg. 7).
12. Connect the terminals marked [+ DATA –] of HubWayAv, HubWayAv2v or HubWayDv Video Balun/
Combiners to the data input terminals of cameras for PTZ control (Figs. 2b-2d, pg. 7). Polarity must be
observed. When using fixed cameras disregard this step.
13. Connect the BNC connector of HubWayAv, HubWayAv2 or HubWayDv Video Balun/Combiners to the
BNC video outputs of cameras (Figs. 2b-2d, pg. 7).
14. Set illuminated master power disconnect circuit breaker to the RESET (ON) position (Fig. 4a, pg. 8).
15. The power LEDs (Green) of the HubSat4Di will illuminate when AC power is present (Fig. 1e, pg. 6).
Note: If any of the power LEDs are not illuminated the cause may be due to the following:
a. AC mains fail.
b. Illuminated master power disconnect circuit breaker is tripped.
c. An individual power output voltage switch is set to the OFF position (Fig. 1d, pg. 6).
d. A PTC is tripped due to a short circuit or overload condition for one or more channels/power outputs.
To reset the PTC:
1. Set the voltage output selector switch for that corresponding channel to the OFF position.
Switch must remain in the OFF position for approximately 2 minutes in order for the PTC to reset
(Fig. 1d, pg. 6).
2. Eliminate the trouble condition (short circuit or overload).
3. Set the voltage output selector switch for either 24VAC or 28VAC (Fig. 1d, pg. 6).
HubSat4Di for use as a Remote Accessory Module with HubWay/HubWayLD/HubWayLDH UTP
Transceiver Hubs.
After completing steps 1-4 of Installation Instructions for HubSat4Di Passive UTP Transceiver Hub with Integral
Isolated Camera Power proceed with the following.
1. For fixed cameras, run a single CAT-5 cable between HubSat4Di and HubWay, HubWayLD or
HubWayLDH to allow video transmission of up to four (4) cameras. For PTZs, run two (2) CAT-5 cables
between HubSat4Di and HubWay, HubWayLD or HubWayLDH (Fig. 6, pg. 9).
a. Connect one (1) of the CAT-5 cables to the RJ45 jack marked [Video 1-4] on HubSat4Di. Connect the
opposite end of this CAT-5 cable into the RJ45 jack marked [CH 1-4] of HubWay, HubWayLD or
HubWayLDH unit (Fig. 6, pg. 9).
b. For data (PTZ), connect the second CAT-5 cable to the RJ45 jack marked [Data 1-4] on HubSat4Di.
Connect the opposite end of this CAT-5 cable into any unused RJ45 jack marked [1-16] of HubWay,
HubWayLD or HubWayLDH unit (Fig. 6, pg. 9).
Note: Data inputs of HubWay, HubWayLD or HubWayLDH units must be wired in parallel for proper
operation. When using fixed cameras disregard this step.