
Overview:
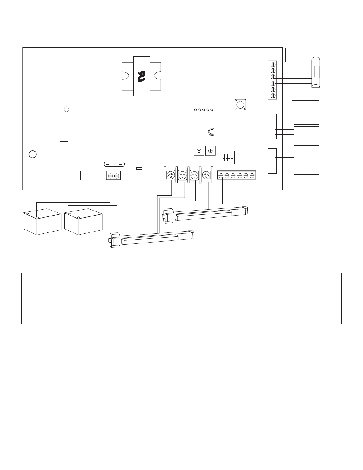
StrikeIt1 will operate up to two (2) 24VDC panic hardware devices simultaneously. It is designed to handle the high current
surge panic hardware locking devices demand. Each lock output has an adjustable relock delay timer. It will control a pair of
doors simultaneously or independently control two individual doors. It has a follower relay for each output to trigger external
relays, ADA push plate switches, etc. Delayed follower relays control automatic door operators for doors that are always locked
or for doors that are unlocked during the business day. In addition, two un-switched auxiliary voltage outputs are provided for
powering card readers, keypads, REX PIRs, electronic timers, relays, etc. A configurable FACP interface will either provide
power or remove power to the lock outputs when activated. LED status indicators are provided to monitor AC power, FACP
status and for lock output wiring supervision. Intelligent logic provides protection against accidental shorting of lock outputs.
Specifications:
Agency Approval:
• UL 294 - Access Control Unit Power Supply.
• ULC-S319 - Access Control Unit Power Supply. Class 1.
• CSFM - California State Fire Marshal Approved.
Input:
• Input 115VAC 60Hz, 6.3A.
• Two (2) NO trigger inputs.
• Input fuse rating: 6.3A.
Outputs:
• Power options:
- Two (2) 20VDC to 26.4VDC individually controlled
lock outputs for applications with battery back-up.
24VDC for applications without battery back-up
(US applications only). Current rating 15A for
300ms, 0.75A continuous supply current.
- 5V holding voltage with 20VDC to 26.4VDC initial
100ms pulse.
Maximum total 5V holding current of both outputs
is 0.74A.
• One (1) 20VDC to 26.4VDC for applications with
battery back-up, 24VDC for applications in US not
requiring battery back-up. Auxiliary output rated
@ 0.75A continuous supply current
(Not affected by FACP trigger).
• One (1) 12VDC filtered regulated auxiliary output
rated @ 0.75A in alarm, 0.5A stand-by current
(Not affected by FACP trigger).
• Two (2) follower form “A” SPST relay outputs rated @
0.6A/28VDC. Relays energize while input is closed.
• Two (2) delayed follower Normally Open relay outputs
rated @ 0.6A/28VDC. Delay time is selectable
0.5 seconds or 1 second. Energized duration is 1 second.
• Trouble relay output indicating low DC output voltage.
Battery Backup:
• Battery leads included.
• Battery fuse rating: 25A/32V.
• Maximum charge current 650mA.
• Built-in charger for sealed lead acid or gel type batteries.
• Automatic switch over to stand-by battery when AC fails.
• When 7AH batteries are used, battery capacity
for emergency stand-by is 30 minutes.
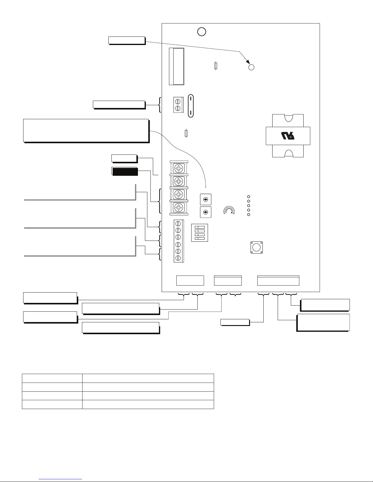
Visual Indicators:
• Green AC Power LED indicates 115VAC present.
• Red trigger input LEDs indicate panic device status
/trouble (activated, short or open circuit).
• Green Fire Alarm Interface (FAI) LED indicates FACP
disconnect is activated.
• Red Battery LED indicates low battery during
AC failure and manual test.
• Green AC LED indicates loss of AC trouble
(not active during manual test sequence).
Fire Alarm Disconnect:
• Normally Closed FACP trigger input.
• Programmable Fire Alarm Disconnect options:
- Removes power to outputs and disables delayed
follower relays.
- Connects power to lock outputs and enables
delayed follower relays.
Additional Features:
• Manual testing to allow to tests battery conditions.
• Adjustable panic release from 1 sec. to 30 secs.
Note: Follower and Delay relay turns off when the
potentiometer selected time elapses after release of the
input trigger.
• Cam lock included.
Enclosure Dimensions (H x W x D approx.):
13.5” x 13” x 3.25” (342.9mm x 330.2mm x 82.55mm)
Strikelt1 Installation Instructions:
Wiring methods shall be in accordance with the National Electrical Code/NFPA 70/NFPA 72/ANSI, and with all local codes
and authorities having jurisdiction. Product is intended for indoor use only. For Canadian installations - shielded wiring of
appropriate gauge must be used. Unit is to be serviced by authorized personnel and de-energized prior to opening.
1. Mount unit in desired location within protected premises (Maximum Wiring Distance, pg. 6). Mark and predrill holes
in the wall to line up with the top two keyholes in the enclosure. Install two upper fasteners and screws in the wall
with the screw heads protruding. Place the enclosure’s upper keyholes over the two upper screws, level and secure.
Mark the position of the lower two holes. Remove the enclosure. Drill the lower holes and install the two fasteners.
Place the enclosure’s upper keyholes over the two upper screws. Install the two lower screws and make sure to tighten
all screws (Enclosure Dimensions, pg. 8). Secure cabinet to earth ground.
2. Hard wire unit: Connect unswitched AC power (115VAC 60Hz) to terminals marked [L, N]. Use 14 AWG or larger
for all power connections. Secure green wire lead to earth ground.
Keep power-limited wiring separate from non power-limited wiring (115VAC 60Hz Input, Battery Wires).
Minimum 0.25” spacing must be provided (Fig. 4, pg. 8).
CAUTION: Do not touch exposed metal parts. Shut branch circuit power before installing or servicing equipment.
There are no user serviceable parts inside. Refer installation and servicing to qualified service personnel.
- 2 - StrikeIt1
Available from A1 Security Cameras