
P
S1
S2
S3
S4
S5
S6
S7
S8
S9
EP
VIDEOPORTERO DIGITAL - DIGITAL VIDEO DOOR ENTRY SYSTEMS - VIDEOPORTIER NUMÉRIQUE
5
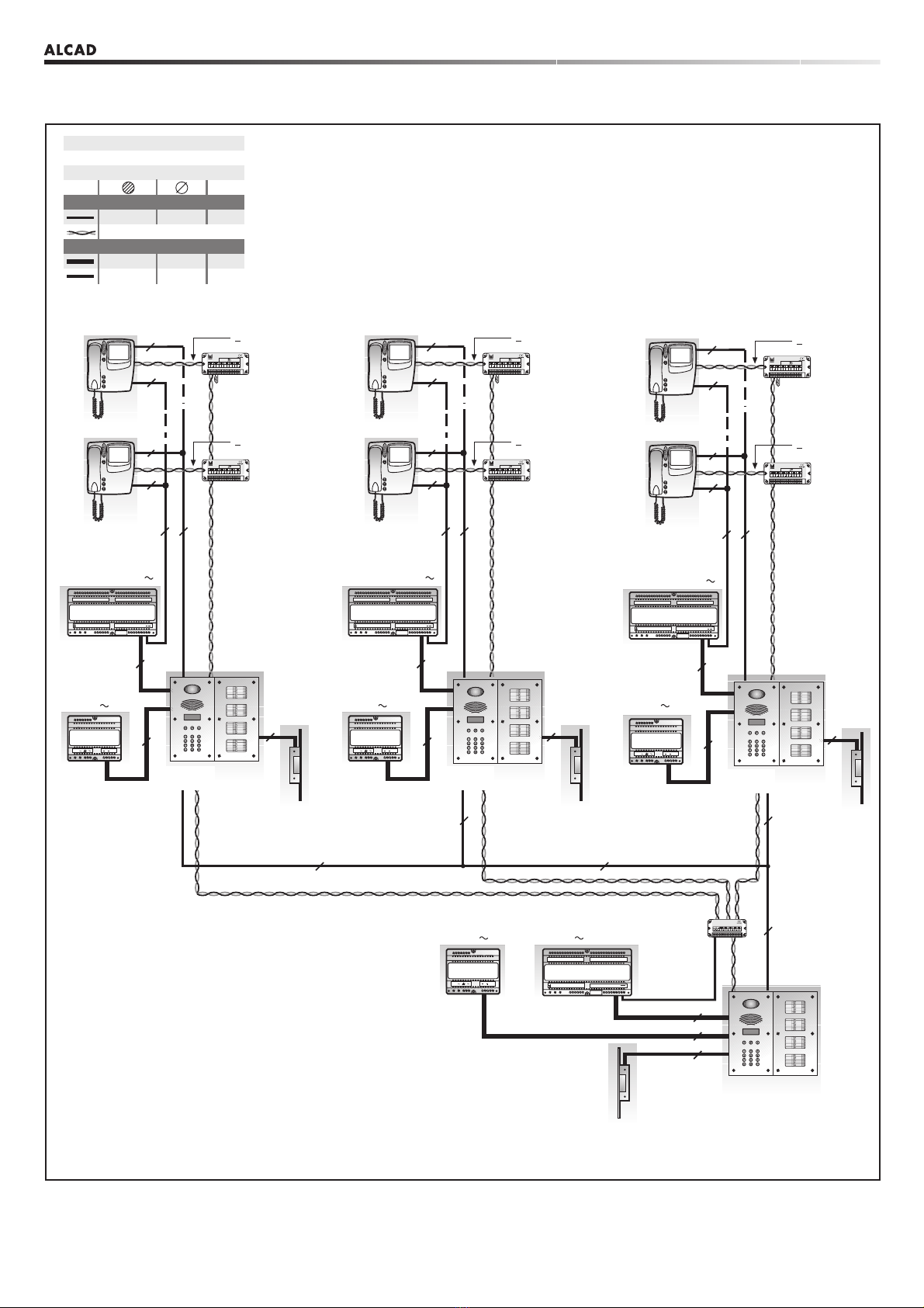
FUNCIÓN DE AUTOENCENDIDO EN ANILLO
THE LOOPED A TO-SWITCH-ON F NCTION
FONCTION DAUTOALLUMAGE EN BOUCLE
The auto-switch-on function makes it possible to see the image on the monitor, communicate with the entrance panel and open
the door without having received a call. In installations with several points of entry and in housing estates, this function can be
activated sequentially in the different entrance panels of the installation (looped auto-switch-on), by repeatedly pressing the auto-
switch-on button. In housing estates, before the loop is completed and the main entrance panel is reactivated, the external panel
defined as the main panel will be activated. Thus (See picture below), when the auto-switch-on button is first pressed, the main
entrance panel will be activated (P); then, as the button is pressed again and again, each of the secondary entrance panels of
the building will be activated in turn (S1,S2,S3,...,S9), until eventually the loop is completed and the main entrance panel is
activated once again. In housing estates, before the loop is completed and the main entrance panel is reactivated, the external
panel defined as the main panel will be activated (E P).
Le système dautoallumage permet dactiver sur lécran les fonctions de visualisation de limage, de communication avec la plaque
de rue et douverture de gâche, sans avoir reçu dappel.
Dans des installations avec plusieurs accès et dans des résidences, cette fonction peut être activée de manière séquentielle dans
les différentes plaques de rue de linstallation (autoallumage en boucle), en appuyant de manière séquentielle sur le bouton
dautoallumage.
Dans ce cas, en appuyant sur le bouton dautoallumage la plaque de rue principale (P) sactivera en premier et si le bouton
reste appuyé, chacune des plaques de rue secondaire du bâtiment ensuite (S1,S2,S3...S9), à la fin la plaque principale sactivera
de nouveau.
Dans des résidences, avant de retourner à la plaque principale, la plaque extérieure sactivera comme plaque définitive (EP).
El sistema de autoencendido permite activar en el monitor las funciones de visualización de imagen, comunicación con la placa
de calle y apertura de puerta, sin haber recibido llamada.
En instalaciones con varios accesos y en urbanizaciones, puede activar dicha función de manera secuencial en las diferentes
placas de calle de la instalación (autoencendido en anillo), pulsando de manera secuencial el botón de autoencendido.
En este caso (Vea dibujo inferior), al pulsar el botón de autoencendido primero se activará la placa principal (P) y posteriormente,
y a medida que vaya pulsando dicho botón, cada una de las placas de calle secundarias del edificio (S1,S2,S3,..,S9); volviendo
finalmente a activar la placa principal. En urbanizaciones, y antes de volver a la placa principal, se activará la placa exterior
definida como principal (E P).
Temporización
Si el auricular está colgado, el tiempo que el monitor permanece activada coincidirá con el valor que haya configurado en la
placa de calle para el tiempo de contestación (Posición 7 del menú de configuración).
Descolgado el auricular, el monitor quedará activado durante el tiempo que haya configurado para el tiempo de conversación
(Posición 6 del menú de configuración).
Timer
If the user replaces the receiver, the period of time that the monitor remains activated will be the same as the value which has
been configured in the entrance panel as the time period for answering the call (Position 7 on the configuration menu). Once
the receiver has been picked up, the monitor will remain activated for the period of time which has been configured as the time
limit for conversation (Position 6 on the configuration menu).
Minuterie
Si le combiné est raccroché, le temps pendant lequel le écran est active coïncide avec la valeur configurée dans la plaque de
rue pour le temps de réponse (Position 7 du menu de configuration). Décrocher le combiné, lécran restera inactif pendant le
temps attribué pour le temps de conversation (Position 6 du menu de configuration).