6
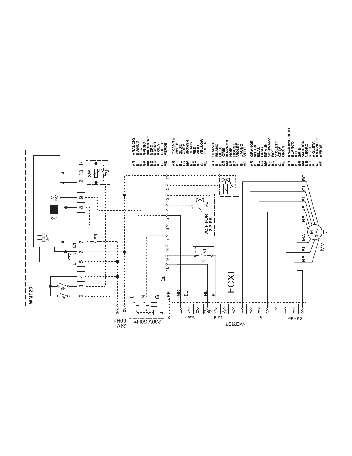
Fig. 7: Lo schema mostra il pilotaggio delle valvole in un impianto a 4
tubi con zona neutra. Analogamente, l’uscita valvola caldo (OUT
HEAT) di un sistema a 2 tubi verrà pilotata allo stesso modo, in
questo caso la Ts (temperatura di setpoint) coinciderà con Ts ris
in inverno e Ts raf in estate.
Lo schema non tiene conto dell’eventuale azione del tempo
integrativo e presuppone che l’uscita proporzionale del ventilatore
(V FAN) sia configurata per azione diretta (P07=0) e segnale
0..10V (P33=0; P34=100).
L’uscita proporzionale del ventilatore viene sempre spenta (0V)
quando l’uscita della valvola, OUT COOL o OUT HEAT, è spenta
(caso non visibile sullo schema).
The scheme shows the valve control in a 4-pipe unit with neutral
zone. Similarly, the heating valve output (OUT HEAT) in a 2-pipe
system will be controlled in the same way. In this case, the Ts
(setpoint temperature) will correspond to Ts ris in winter time,
and to Ts raf in summer time.
The scheme shall not consider the integrating time action, if any,
and shall suppose the fan proportional output (V FAN) is
configured for the direct action (P07=0) and 0..10V signal (P33=0; P34=100).
The fan proportional output is always turned off (0V) when the valve output, OUT COOL or OUT HEAT, is off (not shown on the scheme).
Le schéma montre le pilotage des vannes dans un système à 4 tuyaux avec zone neutre. De façon analogue, la sortie de la vanne chaude (OUT
HEAT) d’un système à 2 tuyaux sera pilotée de la même manière ; dans ce cas-là, la Ts (température du point de consigne) coïncidera avec la Ts
ris en hiver et avec la Ts raf en été.
Le schéma ne tient pas compte de l’action éventuelle du temps d’intégration et présuppose que la sortie proportionnelle du ventilateur (V FAN) est
configurée pour action directe (P07 = 0) et pour un signal 0-10 V (P33 = 0, P34 = 100).
La sortie proportionnelle du ventilateur est toujours éteinte (0 V) quand la sortie de la vanne (OUT COOL ou OUT HEAT) est éteinte (ce cas n’est
pas visible sur le schéma).
El esquema muestra el pilotaje de las válvulas en una instalación a 4 tubos con zona neutra. Análogamente, la salida válvula calor, (OUT HEAT) de un
sistema a 2 tubos será pilotada del mismo modo, en este caso la Ts (temperatura de setpoint) coincidirá con Ts ris en invierno y Ts raf en verano.
ist ist
Ts ris Ts rafTs
Bp ris Bp raf
ZN
P26 P20 P27
ta
Ta
Ta
OFF
OFF
ON
ON
OUT
COOL
OUT
HEAT
V
FAN
10V
0V
5V
PILOTAGGIO USCITE / OUTPUT DRIVING / ANSTEUERUNG AUSGÄNGE / PILOTAGE DES SORTIES / PILOTAJE SALIDAS