
Anschlüsse • Connections • Raccordements • Aansluitingen •
Tilslutninger • Collegamenti
2
1
1
3
4
5 6 7 8
4
9
3
10
11
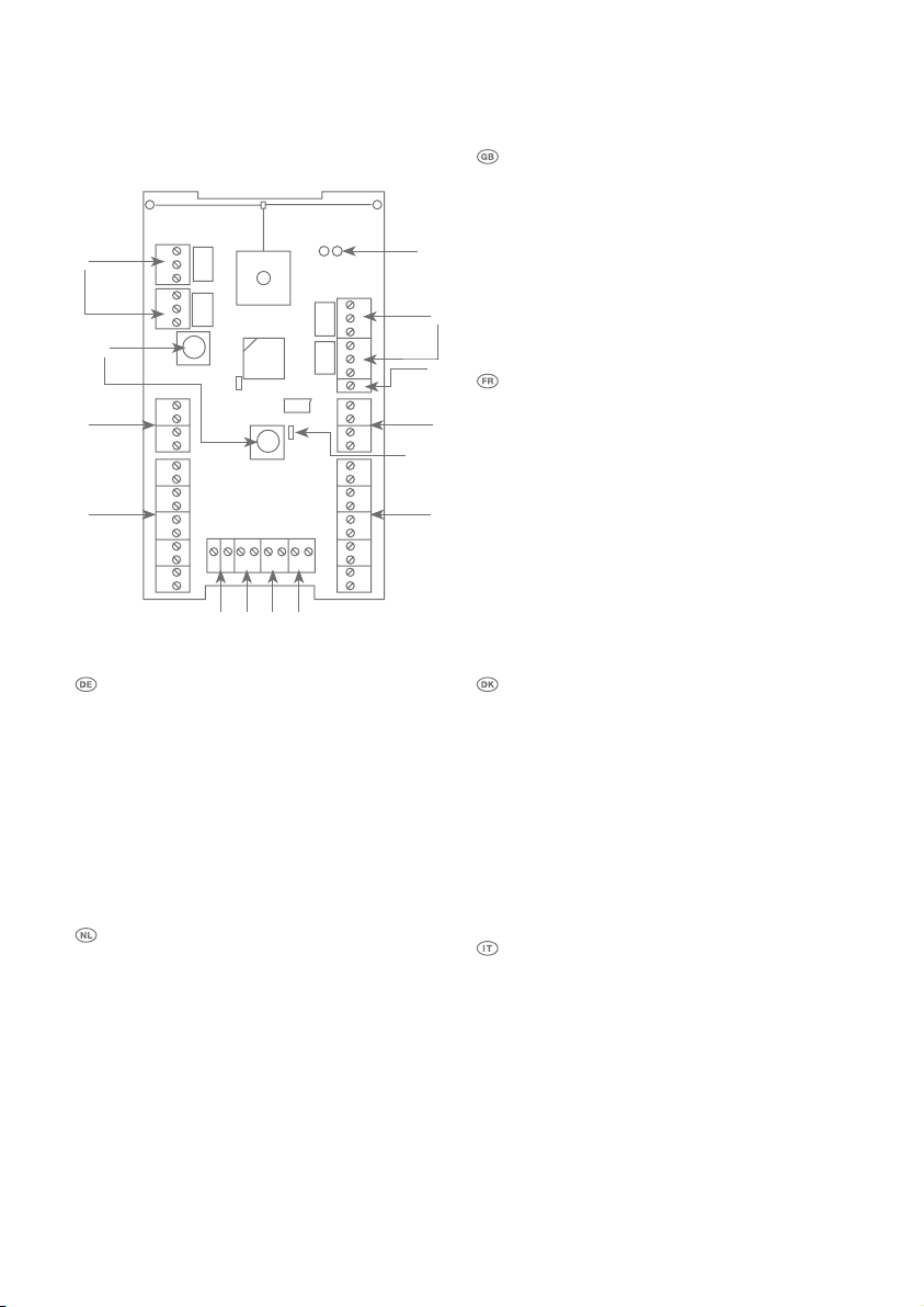
1. OP1, OP2, OP3, OP4: Schaltausgangsklemme (NO, C, NC)
2. Sabotagekontakt
3. 0-V-, 12-V-AUX-Klemme: Spannungsausgang
4. Z1, Z2, Z3, Z4, Z5, Z6, Z7, Z8, Z9, Z10: Drahtzonenklemme
5. 0V, 12V IN: Spannungsversorgungsklemme 0 V, 12 V
6. MAINS FAIL: Netzausfall-Klemme für externes Netzteil
7. LOW BATT: Klemme „Batterie schwach“
für externes Netzteil
8. -LS+: Klemme für 16-Ohm-Lautsprecher
9. Rückseitigen Sabotageschutz: Steckbrücke zum
Deaktivieren des rückseitigen Sabotageschutzes
10. TR: negativer Sabotageingang für Drahtsirene
11. TX TEST: Anzeige-LED für Senden und Test
1. OP1, OP2, OP3 OP4: Switching outputs terminal (NO, C, NC)
2. Tamper switch
3. 0V, 12V Aux terminal: voltage output
4. Z1, Z2, Z3, Z4, Z5, Z6, Z7, Z8, Z9, Z10: Wired zones terminal
5. 0V, 12V IN: Terminal for power supply 0V, 12V
6. MAINS FAIL: Mains fail terminal for external PSU
7. LOW BATT: Low battery terminal for external PSU
8. -LS+: Terminal for 16 Ohm loudspeaker
9. Disable rear tamper: Jumper for deactivating rear tamper
10. TR: negative tamper input for wired siren
11. TX TEST: Indicator LED for sending and test
1. OP1, OP2, OP3, OP4: Borne de sortie de
commutation (NO, F, NF)
2. Interrupteur anti-vandalisme
3. Borne AUX 0 V, 12 V: tension de sortie
4. Z1, Z2, Z3, Z4, Z5, Z6, Z7, Z8, Z9, Z10: Borne
de zones câblées
5. 0 V, 12 V IN: Borne pour tension d’alimentation 0 V, 12 V
6. PANNE SECTEUR: Borne panne secteur pour
bloc d’alimentation externe
7. BATTERIE FAIBLE: Borne batterie faible pour
bloc d’alimentation externe
8. -LS+: Borne pour haut-parleur 16 ohms
9. Désactivation interrupteur anti-vandalisme arrière:
Cavalier permettant de désactiver l’interrupteur
anti-vandalisme arrière
10. TR: Entrée négative anti-vandalisme pour sirène câblée
11. TEST TX: Indicateur LED d’envoi et de test
1. OP1, OP2, OP3 OP4: Geschakelde uitgangen
(normaal geopend, gesloten, normaal gesloten)
2. Sabotageschakelaar
3. 0 V-, 12 V-hulpaansluiting: uitgaande spanning
4. Z1, Z2, Z3, Z4, Z5, Z6, Z7, Z8, Z9, Z10: Aansluitblok
voor bedrade zones
5. 0V, 12V IN: Aansluitblok voor 0 V- resp. 12 V-voeding
6. MAINS FAIL: Aansluitblok voor externe voeding
als de netspanning mocht uitvallen
7. LOW BATT: Aansluitblok voor externe voeding
als de acculading laag mocht zijn
8. -LS+: Aansluiting voor een luidspreker met
een impedantie van 16 Ohm
9. Disable rear tamper: Stop voor het buiten werking
stellen van de sabotagefunctie aan de achterzijde
10. TR: negatieve sabotage-ingang voor
draadgebonden sirene
11. TX TEST: LED-indicator voor zenden en testen
1. OP1, OP2, OP3 OP4: Koblingsudgange terminal (NO, C, NC)
2. Sabotagekontakt
3. 0 V, 12 V Aux terminal: spændingsudgang
4. Z1, Z2, Z3, Z4, Z5, Z6, Z7, Z8, Z9, Z10: Trådforbundne
zoner terminal
5. 0 V, 12 V IN: Terminal til spændingsforsyning 0 V, 12 V
6. NETSPÆNDINGSFEJL: Netspændingsfejl terminal til
ekstern PSU
7. LAVT BATT: Lavt batteri terminal til ekstern PSU
8. -LS+: Terminal til højtaler på 16 ohm
9. Deaktiver sabotage bag: Jumper til deaktivering
af sabotage bag
10. TR: negativ sabotageindgang til trådforbundet sirene
11. TX TEST: Indikator LED til at sende og teste
1. Terminali di uscita (NO, C, NC) degli
switch OP1, OP2, OP3 OP4
2. Interruttore antimanomissione
3. 0V, 12V terminale Aux: tensione di uscita
4. Z1, Z2, Z3, Z4, Z5, Z6, Z7, Z8, Z9, Z10: Terminali
zone cablate
5. 0V, 12V IN: Terminale per alimentazione di
tensione 0V, 12V
6. MAINS FAIL: (alimentazione assente) Terminale
alimentazione assente per PSU esterna
7. LOW BATT: (batteria scarica) Terminale
batteria scarica per PSU esterna
8. -LS+: Terminale per altoparlante 16 Ohm
9. Disabilita manomissione posteriore Jumper per
disattivare manomissione posteriore
10. TR: Ingresso manomissione negativa per sirena cablata
11. TX TEST: Indicatore LED per invio e test